Büros
ID M0988Provisionsfrei
Aktualisiert
Büroimmobilie - Unterföhring - M0988
85774, Unterföhring, Bayern
15 € / m²
- Fläche1.273 - 6.301 m²
- VerfügbarkeitSofort
- Objekt
- Ausstattung
- Lage und Verkehrsanbindung
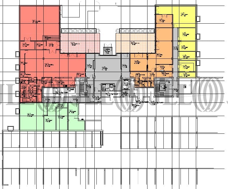
- Grundrisse
- Exposé herunterladen
- Ihr Kontakt
- Anfrage senden
Objekt
Das Gebäude ist für Solitärmieter nutzbar. Die Glas-/Aluminiumfassade ist modern und lädt in die zentrale, repräsentative Eingangshalle ein. Teilweise sind gläserne Aufzüge vorhanden sowie ein Lastenaufzug Die gehobene, moderne Ausstattung besteht z.B. aus Glaselementen und Naturholzeinbauschränken. Im Souterrain befindet sich ein Kinosaal der ideal geeignet für Konferenzen u. ä. ist. Eine Anlieferungszone ist auch vorhanden.
Zertifizierungen
Energieausweis
Für diese Liegenschaft liegt ein Verbrauchsausweis vom 04.02.2020 vom Eigentümer/Vermieter vor. Der wesentliche Energieträger der Liegenschaft ist Fernwärme. Der Endenergieverbrauch Strom beträgt 58 kWh/(m²*a). Der Endenergieverbrauch Wärme beträgt 73,7 kWh/(m²*a).Verfügbare Fläche
Lage und Verkehrsanbindung
Das Objekt ist nordöstlich von München im Medienpark Unterföhring gelegen. Geschäfte des täglichen Bedarfs befinden sich in der näheren Umgebung und sind fußläufig schnell erreichbar. Eine Tankstelle befindet sich in der Nähe.
- Flughafen, München, Fahrzeit: 25 min
- Bundesautobahn, A 99, Fahrzeit: 8 min
- Bundesautobahn, A 9, Fahrzeit: 8 min
- Bundesautobahn, A 94, Fahrzeit: 13 min
- Bundesautobahn, A 92, Fahrzeit: 15 min
- Bus, Heinrich-Hildebrand-Weg Linie 234, Gehzeit: 1 min
- Hauptbahnhof, Hauptbahnhof, Fahrzeit: 25 min
- S-Bahn, Unterföhring, Linie S8, Gehzeit: 13 min
Ihr Kontakt

Nicolai Reichert
Ihr Kontakt

