Büros
ID M0938Provisionsfrei
Büroimmobilie - Ismaning - M0938
85737, Ismaning, Bayern
11 € / m²
- Fläche395 - 11.275 m²
- VerfügbarkeitSofort
- Objekt
- Ausstattung
- Lage und Verkehrsanbindung
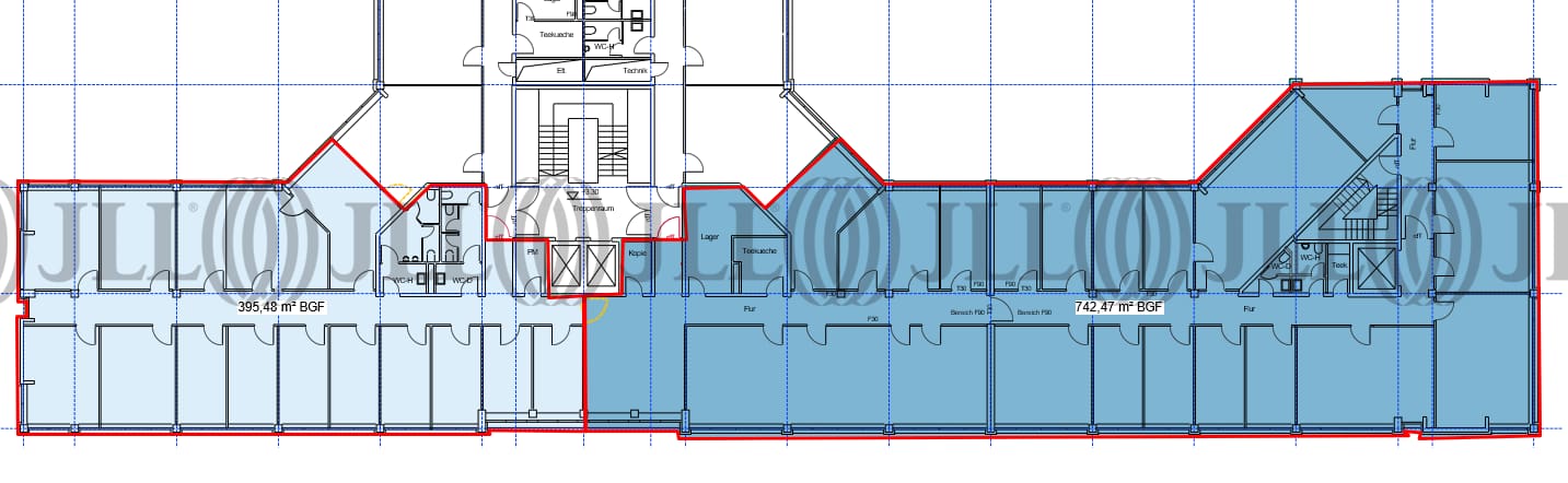
- Grundrisse
- Exposé herunterladen
- Ihr Kontakt
- Anfrage senden
Objekt
Die 1991 in der Oskar-Messter-Straße fertiggestellte Immobilie mit einer zeitlosen Granit-Glas-Fassade verfügt über zwei repräsentative Haupteingänge sowie vier Nebeneingänge. Die Zugangssituation sowie die Grundrisskonfiguration ermöglichen grundsätzlich eine flexible Aufteilung der Mietbereiche. Die Immobilie wurde kontinuierlich instand gehalten und modernisiert. Das ansprechende Gebäude überzeugt durch seine funktionale Architektur und die flexible Raumstruktur.
Zertifizierungen
Energieausweis
Für diese Liegenschaft liegt ein Verbrauchsausweis vom 08.10.2013 vom Eigentümer/Vermieter vor. Der wesentliche Energieträger der Liegenschaft ist Erdgas schwer. Der Endenergieverbrauch Strom beträgt 105.00 kWh/(m²*a). Der Endenergieverbrauch Wärme beträgt 102.00 kWh/(m²*a).Verfügbare Fläche
Lage und Verkehrsanbindung
Das Objekt ist im Nordosten von München in Ismaning gelegen. Ismaning ist einer der größten Bürostandorte im Münchner Umland. Über die B 471 besteht eine direkte Verbindung zum Autobahnring und damit ein sehr guter Anschluss an die Autobahnen. Weiter besticht der Standort durch eine sehr gute Anbindung an die S-Bahn. Eine Bushaltestelle ist direkt am Objekt.
- Hauptbahnhof, München, Fahrzeit: 30 min
- S-Bahn, Ismaning, Linie S8, Gehzeit: 15 min
- Bus, Oskar-Messter-Straße, Linie 230, Gehzeit: 2 min
- Bundesautobahn, A 9, Fahrzeit: 6 min
- Bundesautobahn, A 99, Fahrzeit: 7 min
- Flughafen, München, Fahrzeit: 20 min
Ihr Kontakt

Nicolas Salbeck
Ihr Kontakt






