Büros
ID M0894Provisionsfrei
Büroimmobilie - München, Maxvorstadt - M0894
Maxvorstadt, 80539, München, Bayern
24 € / m²
- Fläche237 - 2.499 m²
- VerfügbarkeitSofort
- Objekt
- Ausstattung
- Lage und Verkehrsanbindung
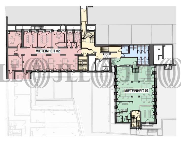
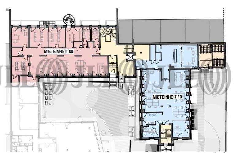
- Grundrisse
- Exposé herunterladen
- Ihr Kontakt
- Anfrage senden
Objekt
Das Objektensemble besteht aus drei Gebäudeteilen, welche im Unter- und Erdgeschoss miteinander verbunden sind. Es ist sowohl eine vertikale als auch eine häuserübergreifende Anordnung der Mietflächen denkbar. Die Raumaufteilung ermöglicht außerdem unterschiedliche Arbeitsplatzkonzepte.
Das Vordergebäude an der Königinstraße 9 ist ein Verwaltungsgebäude aus den 50er Jahren, welches 2021 aufwändig saniert und durch ein repräsentatives Foyer sowie eine zweigeschossige Bebauung im Innenhof ergänzt wurde. Durch die attraktive Architektur und den hochwertigen Flächenausbau (inklusive Kühldecken) stehen hier moderne Flächen zur Anmietung zur Verfügung. In den oberen Geschossen des Vordergebäudes befinden sich exklusive Wohneinheiten.
An die Hofbebauung grenzt das Rückgebäude mit der Adresse Königinstraße 9a. Das Rückgebäude wurde ebenfalls in den 50er Jahren erbaut, im Jahr 2006 grundsaniert und wird 2024 modernisiert.
Bei den Flächen handelt es sich um Netto-Raum-Flächen zzgl. Allgemeinflächenanteil.
Die Mietpreise betragen je nach Fläche: 26,00 - 39,50 EUR/m²/Monat.
Das Vordergebäude an der Königinstraße 9 ist ein Verwaltungsgebäude aus den 50er Jahren, welches 2021 aufwändig saniert und durch ein repräsentatives Foyer sowie eine zweigeschossige Bebauung im Innenhof ergänzt wurde. Durch die attraktive Architektur und den hochwertigen Flächenausbau (inklusive Kühldecken) stehen hier moderne Flächen zur Anmietung zur Verfügung. In den oberen Geschossen des Vordergebäudes befinden sich exklusive Wohneinheiten.
An die Hofbebauung grenzt das Rückgebäude mit der Adresse Königinstraße 9a. Das Rückgebäude wurde ebenfalls in den 50er Jahren erbaut, im Jahr 2006 grundsaniert und wird 2024 modernisiert.
Bei den Flächen handelt es sich um Netto-Raum-Flächen zzgl. Allgemeinflächenanteil.
Die Mietpreise betragen je nach Fläche: 26,00 - 39,50 EUR/m²/Monat.
Zertifizierungen
Energieausweis
Für diese Liegenschaft liegt ein Bedarfsausweis vom 22.04.2021 vom Eigentümer/Vermieter vor. Die wesentlichen Energieträger der Liegenschaft sind Fernwärme, Heizwerk, fossil, KWK, Nahwärme, Strom. Der Endenergiebedarf Strom beträgt 17.00 kWh/(m²*a). Der Endenergiebedarf Wärme beträgt 103.00 kWh/(m²*a).Verfügbare Fläche
Lage und Verkehrsanbindung
Das Objektensemble befindet sich in der Königinstraße im Stadtteil „Maxvorstadt“ und ist ruhig und dennoch zentral - mit bester Anbindung an den Individual- und Personennahverkehr - gelegen. Egal was das Herz begehrt, alles ist fußläufig und schnell erreichbar, vom Lieblingsrestaurant über den schnellen Einkauf, einen Friseurbesuch oder einer Erholungspause im Grünen. Die Königinstraße gilt - durch den unverbaubaren Blick auf Münchens grüne Lunge, den Englischen Garten - als eine der begehrtesten und exklusivsten Adressen.
- Flughafen, München, Fahrzeit: 35 min
- Bundesautobahn, A 9, Fahrzeit: 10 min
- Bundesautobahn, A 9, Fahrzeit: 15 min
- Bundesautobahn, A 8, Fahrzeit: 20 min
- Bundesautobahn, A 99, Fahrzeit: 20 min
- Bus, Von-der-Tann-Straße, Linien 58, 100, 153, Gehzeit: 5 min
- U-Bahn, Odeonsplatz, Linien U3, U4, U5, U6, Gehzeit: 8 min
- Hauptbahnhof, München, Fahrzeit: 10 min
Ihr Kontakt

Carla Siegelin
Ihr Kontakt
Marktinformationen
Mietmarkt
Maxvorstadt, München
Gew. Ø-Miete
24 € / m²
siehe 27 passende MietobjekteErfahren Sie mehr* Durchschnittspreis auf Grundlage historischer Transaktionen.












