Büros
ID M0753Provisionsfrei
Büroimmobilie - München, Maxvorstadt - M0753
Maxvorstadt, 80335, München, Bayern
Kontaktieren Sie uns für den Preis
- Fläche250 - 4.034 m²
- VerfügbarkeitSofort
- Objekt
- Ausstattung
- Lage und Verkehrsanbindung
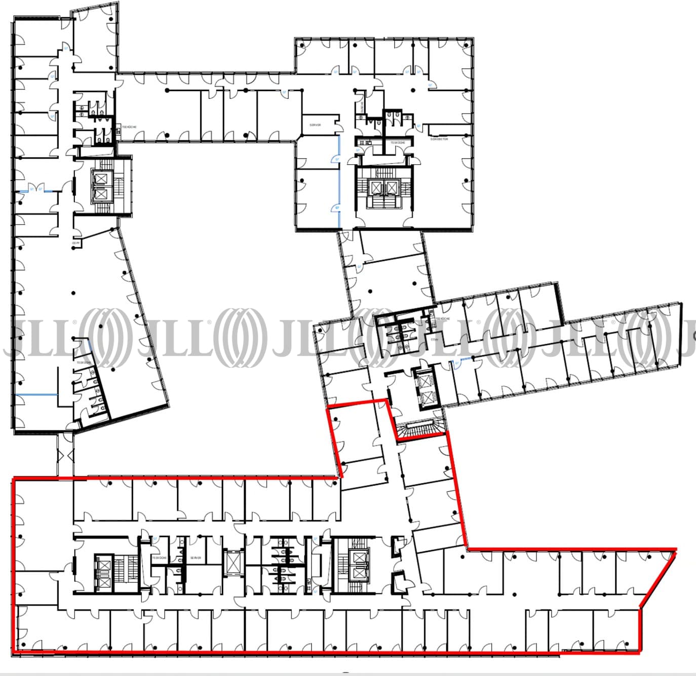
- Grundrisse
- Exposé herunterladen
- Ihr Kontakt
- Anfrage senden
Objekt
Der attraktive Bürohausneubau mit Metallfassade ist ein 6-geschossiger Komplex mit zahlreichen Gestaltungsmöglichkeiten. 4 eigenständige Gebäude mit separaten Eingangsbereichen und Hausnummern sowie Innenhöfe als Grünzonen, die durch Passagen miteinander verbunden sind. Jeweils 2 Personenaufzüge pro Haus und ein zentraler Lastenaufzug in Haus 2 stehen dem Mieter zur Verfügung.
Verfügbare Fläche
Lage und Verkehrsanbindung
Das Objekt liegt direkt am Stiglmaierplatz, westlich der Innenstadt. Herausragende Lage nah am Hauptbahnhof und der Altstadt, top zentral, in bester Gegend und Gesellschaft vis a vis des neuen Apple Campus.
- Flughafen, München, Fahrzeit: 35 min
- Bundesautobahn, A 94, Fahrzeit: 15 min
- Bundesautobahn, A 96, Fahrzeit: 10 min
- Bundesautobahn, A 9, Fahrzeit: 12 min
- Bundesautobahn, A 8, Fahrzeit: 20 min
- Bus, Bushaltestelle Königsplatz Buslinien 100, Gehzeit: 5 min
- Hauptbahnhof, München, Gehzeit: 5 min
Ihr Kontakt

Nicolas Harmuth
Ihr Kontakt
Marktinformationen
Mietmarkt
Maxvorstadt, München
siehe 27 passende MietobjekteErfahren Sie mehr
* Durchschnittspreis auf Grundlage historischer Transaktionen.




