Büros
ID M0705Provisionsfrei
Büroimmobilie - München, Schwabing-Nord - Alte Heide - M0705
Schwabing-Nord - Alte Heide, 80807, München, Bayern
20,50 € / m²
- Fläche362 - 1.682 m²
- VerfügbarkeitSofort
- Objekt
- Ausstattung
- Lage und Verkehrsanbindung
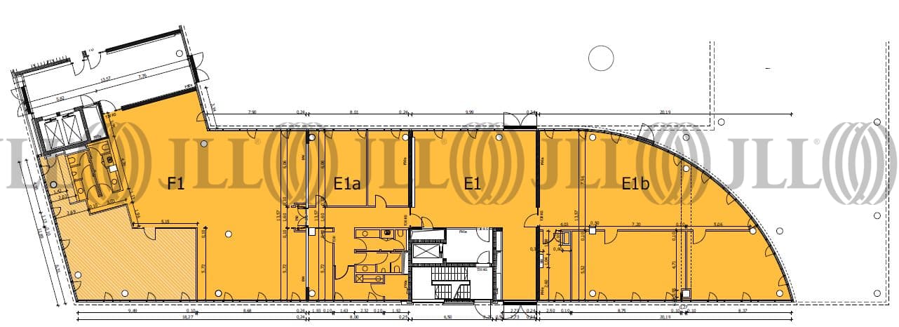
- Grundrisse
- Exposé herunterladen
- Ihr Kontakt
- Anfrage senden
Objekt
Das moderne 5-geschossiges Gebäude mit seinem repräsentativen Eingangsbereich verfügt über begrünte Dächer mit begehbaren Dachterrassen. Die gartenarchitektonisch gestaltete Außenanlage und bepflanzte Innenhöfe laden zum Verweilen ein.
Zertifizierungen
Energieausweis
DGNB: GoldFür diese Liegenschaft liegt ein Verbrauchsausweis vom 11.06.2024 vom Eigentümer/Vermieter vor. Der wesentliche Energieträger der Liegenschaft ist Fernwärme. Der Endenergieverbrauch Strom beträgt 40,6 kWh/(m²*a). Der Endenergieverbrauch Wärme beträgt 49,6 kWh/(m²*a).
Verfügbare Fläche
Lage und Verkehrsanbindung
Das Objekt befindet sich im Norden von München, im Stadtteil „Schwabing“, am Nordwest-Rand der Parkstadt Schwabing gelegen (neu entstandener Büro- und Wohnstandort). Über den nahgelegenen Mittleren Ring sind alle umliegenden Autobahnen schnell und bequem zu erreichen. Über die unmittelbare Nähe der Leopoldstraße ist die Innenstadt gut erreichbar. Das „Parkstadt-Center“ befindet sich in der direkten Umgebung. Dienstleister des täglichen Bedarfs befinden sich in der Nähe.
- Hauptbahnhof, Hauptbahnhof, Fahrzeit: 12 min
- Straßenbahn/Tram, Domagkstraße, Linie 23, Gehzeit: 1 min
- Bus, Domagkstraße, Linien 50, 150, Gehzeit: 2 min
- Bundesautobahn, A 9, Fahrzeit: 3 min
- Bundesautobahn, A 94, Fahrzeit: 12 min
- Bundesautobahn, A 99, Fahrzeit: 10 min
- Bundesautobahn, A 92, Fahrzeit: 15 min
- Flughafen, München, Fahrzeit: 25 min
Ihr Kontakt

Nicolas Salbeck
Ihr Kontakt






