Büros
ID M0589Provisionsfrei
Büroimmobilie - Feldkirchen - M0589
85622, Feldkirchen, Bayern
9,50 € / m²
- Fläche362 - 5.538 m²
- VerfügbarkeitAuf Anfrage
- Objekt
- Ausstattung
- Lage und Verkehrsanbindung
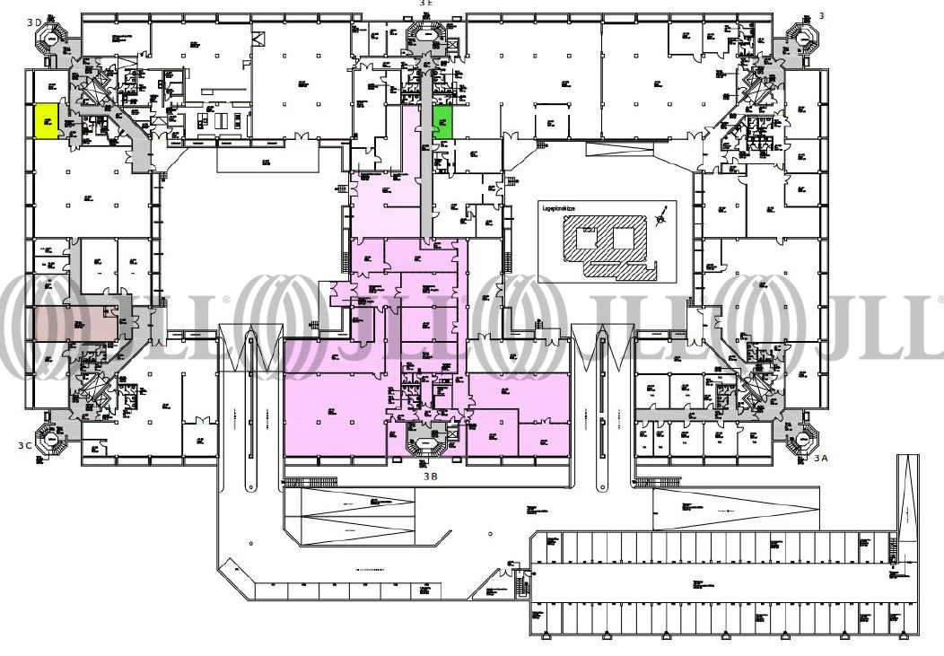
- Grundrisse
- Exposé herunterladen
- Ihr Kontakt
- Anfrage senden
Objekt
Es handelt sich um ein modernes Büro- und Geschäftshaus mit äußerst effizienten Grundrissen. Aufgrund großer Fensterflächen wirken die Räume hell und freundlich. Die einzelnen Etagen werden über Personenaufzüge und großzügige Treppenhäuser erschlossen. Zusätzlich stehen 4 Lastenaufzüge in den Ecktreppenhäusern mit Zugang zum Be- und Entladebereich in den Innenhöfen zur Verfügung. Flexibilität wird hier großgeschrieben. Eine Nutzung als Großraumbüro ist ebenso möglich, wie eine kleinteilige Parzellierung in eine Vielzahl von Einzelbüros.
Zertifizierungen
Energieausweis
Für diese Liegenschaft liegt ein Bedarfsausweis vom 2010-12-14 vom Eigentümer/Vermieter vor. Die wesentlichen Energieträger der Liegenschaft sind Strom,Erdgas schwer. Endenergiebedarf: 236.80000 kWh/(m²*a).Verfügbare Fläche
Lage und Verkehrsanbindung
Das Objekt ist im Osten von München am Ortsrand von Feldkirchen gelegen. Der Landkreis München ist integraler Bestandteil der Metropolregion München. Vor allem Unternehmen aus der Medizintechnik haben sich in Feldkirchen angesiedelt, wie zum Beispiel Hitachi, Schiller oder BrainLab. Aber auch andere bekannte Unternehmen wie Intel, T-Systems, Brunel oder Cadence sind hier vertreten. Dienstleister des täglichen Bedarfs befinden sich in der Nähe.
- Hauptbahnhof, München, Fahrzeit: 30 min
- S-Bahn, Feldkirchen, Linie S2, Gehzeit: 10 min
- Bus, Mozartstraße, Linie 234, Gehzeit: 3 min
- Bundesautobahn, A 94, Fahrzeit: 5 min
- Bundesautobahn, A 99, Fahrzeit: 5 min
- Flughafen, München, Fahrzeit: 20 min
Ihr Kontakt

Nicolas Salbeck
Ihr Kontakt







