Büros
ID M0558Premium JLL
Provisionsfrei
Büroimmobilie - München, Neuhausen - M0558
Neuhausen, 80636, München, Bayern
33 € / m²
- Fläche390 - 3.138 m²
- VerfügbarkeitSofort
- Objekt
- Ausstattung
- Lage und Verkehrsanbindung
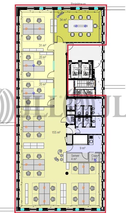
- Grundrisse
- Exposé herunterladen
- Ihr Kontakt
- Anfrage senden
Objekt
Kennzeichnend für das repräsentative Objekt ist die herausragende Architektur in Kombination mit seiner funktionalen Nutzbarkeit. Das Ensemble mit LEED Gold-Zertifizierung und modernen, hochwertig ausgestatteten Büroflächen wird über acht attraktive Eingangshallen erschlossen. Darüber hinaus gewährleisten effiziente Grundrisse die Umsetzung einer flexiblen Raumaufteilung und verschiedenste Arbeitsplatzkonzepte.
Im Untergeschoss stehen auf Anfrage Archivflächen ab ca. 30 bis ca. 150 m² zu einem Mietpreis von EUR 10,00/m²/Monat zur Verfügung.
Im Untergeschoss stehen auf Anfrage Archivflächen ab ca. 30 bis ca. 150 m² zu einem Mietpreis von EUR 10,00/m²/Monat zur Verfügung.
Zertifizierungen
Energieausweis
LEED: Gold WIREDSCORE: SilverFür diese Liegenschaft liegt ein Verbrauchsausweis vom 26.11.2019 vom Eigentümer/Vermieter vor. Die wesentlichen Energieträger der Liegenschaft sind Fernwärme, KWK, Strom. Der Endenergieverbrauch Strom beträgt 71.60 kWh/(m²*a). Der Endenergieverbrauch Wärme beträgt 78.60 kWh/(m²*a).
Verfügbare Fläche
Lage und Verkehrsanbindung
Die Liegenschaft befindet sich in urbaner innerstädtischer Lage im „Arnulfpark“ unweit der Münchener Innenstadt im Stadtteil Schwanthalerhöhe zwischen Hacker- und Donnersbergerbrücke - mit exzellenten Nahversorgungsmöglichkeiten sowie Hotels in direkter Nachbarschaft. Mit dem Pkw gelangt man in nur wenigen Minuten zum Mittleren Ring und somit zu allen umliegenden Autobahnen. Ebenso ist das Objekt mit der Haltestelle „Donnersbergerbrücke“ (BOB, S-Bahn und Bus) hervorragend an den Personenverkehr angebunden. In direkter Nachbarschaft sind u.a. folgende namhafte Unternehmen ansässig: Salesforce.com, Google, Check24, CANCOM, citrix, EY, Mercedes Benz, PWC, Bristol Myers Squibb und Walt Disney.
- Hauptbahnhof, München, Fahrzeit: 2 min
- Straßenbahn/Tram, Donnersbergerstraße, Linien 16, 17, Gehzeit: 2 min
- Bus, Donnersbergerbrücke, Linien 53, 63, 153, Gehzeit: 2 min
- Bundesautobahn, A 96, Fahrzeit: 8 min
- Bundesautobahn, A 95, Fahrzeit: 10 min
- Bundesautobahn, A 9, Fahrzeit: 15 min
- Bundesautobahn, A 8, Fahrzeit: 20 min
- Flughafen, München, Fahrzeit: 45 min
Ihr Kontakt

Pia Winkler
Ihr Kontakt

















