Büros
ID M0520Provisionsfrei
Aktualisiert
Büroimmobilie - München, Maxvorstadt - M0520
Maxvorstadt, 80335, München, Bayern
25 € - 27 € / m²
- Fläche112 - 716 m²
- VerfügbarkeitSofort
- Objekt
- Ausstattung
- Lage und Verkehrsanbindung
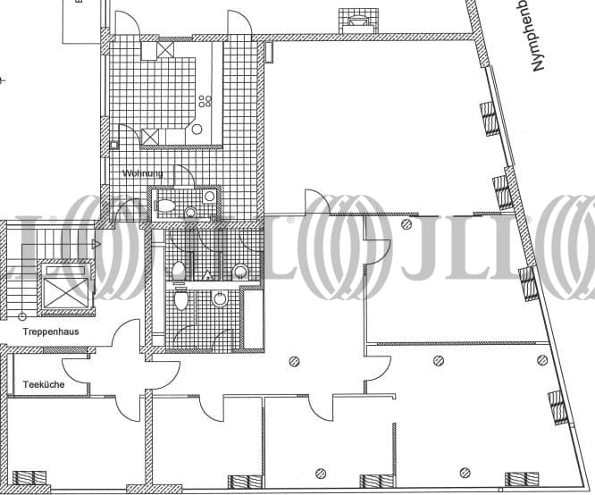
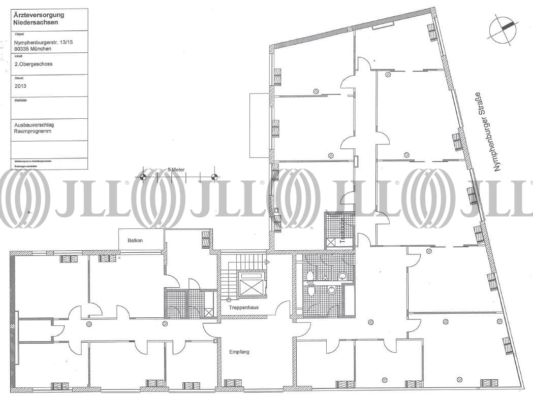
- Grundriss
- Exposé herunterladen
- Ihr Kontakt
- Anfrage senden
Objekt
Das moderne Wohn- und Bürogebäude verfügt über einen repräsentativen Eingangsbereich mit Personenaufzug, eine Lochfassade mit Granitverkleidung und die großflächige Verglasung mit außenliegendem Sonnenschutz.
Verfügbare Fläche
Lage und Verkehrsanbindung
Das Objekt befindet sich direkt am Stiglmaierplatz im Stadtteil Maxvorstadt, in repräsentativer und zentraler Innenstadtlage. Hier finden Sie eine hervorragende Dienstleistungsinfrastruktur (Restaurants, Einzelhandel etc.), optimale Anbindung an den ÖPNV und über den Altstadtring sind alle umliegenden Autobahnen bequem und schnell zu erreichen.
- Flughafen, München, Fahrzeit: 25 min
- Bundesautobahn, A 9, Fahrzeit: 15 min
- Bundesautobahn, A 96, Fahrzeit: 15 min
- U-Bahn, Stiglmaierplatz, Linien U1/U7, Gehzeit: 1 min
- Hauptbahnhof, München, Fahrzeit: 2 min
Ihr Kontakt

Nicolas Salbeck
Ihr Kontakt
Marktinformationen
Mietmarkt
Maxvorstadt, München
Gew. Ø-Miete
25 € - 27 € / m²
siehe 25 passende MietobjekteErfahren Sie mehr* Durchschnittspreis auf Grundlage historischer Transaktionen.

