Büros
ID M0516Provisionsfrei
Aktualisiert
Büroimmobilie - München, Maxvorstadt - M0516
Maxvorstadt, 80636, München, Bayern
36,50 € / m²
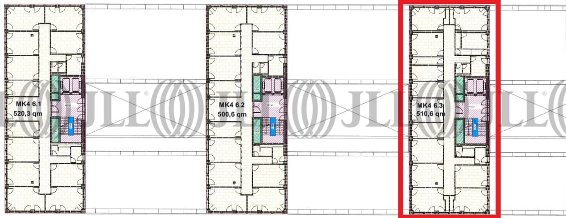
- Fläche511 - 3.679 m²
- VerfügbarkeitSofort
- Objekt
- Ausstattung
- Lage und Verkehrsanbindung
- Grundrisse
- Exposé herunterladen
- Ihr Kontakt
- Anfrage senden
Objekt
Das „Central & Park“ wurde 2011 erbaut. Der Büroteil besteht aus drei 6-geschossigen Zinnen mit Verbindungsbauten. Der Name Central & Park ist anlehnend an die New Yorker Architektur entlang des Central Parks gewählt. Neben der eleganten Außenfassade mit bodentiefen Fenstern und den grünen Innenhöfen, bietet das Objekt auch durch neueste Technik ein angenehmes Arbeitsumfeld.
Zertifizierungen
Energieausweis
DGNB: GoldFür diese Liegenschaft liegt ein Bedarfsausweis vom 30.06.2011 vom Eigentümer/Vermieter vor. Die wesentlichen Energieträger der Liegenschaft sind Fernwärme, Nahwärme, Strom. Endenergiebedarf: 168.50000 kWh/(m²*a)
Verfügbare Fläche
Lage und Verkehrsanbindung
Der Arnulfpark zählt zu den Top-Bürostandorten der Stadt. Hier haben sich internationale Firmen wie Google, Bristol-Myers Squibb und PWC in dem Quartier angesiedelt. Der Arnulfpark hat sich in den vergangenen Jahren als urbane Erweiterung der Innenstadt etabliert.
- Flughafen, München, Fahrzeit: 45 min
- Bundesautobahn, A 96, Fahrzeit: 8 min
- Bundesautobahn, A 95, Fahrzeit: 10 min
- Bundesautobahn, A 9, Fahrzeit: 15 min
- Bus, Donnersbergerbrücke, Linien 53, 63, Gehzeit: 5 min
- S-Bahn, Hackerbrücke, Linien S1-S8, Gehzeit: 5 min
- Hauptbahnhof, München, Fahrzeit: 5 min
Ihr Kontakt

Nicolai Reichert
Ihr Kontakt
Marktinformationen
Mietmarkt
Maxvorstadt, München
Gew. Ø-Miete
36,50 € / m²
siehe 27 passende MietobjekteErfahren Sie mehr* Durchschnittspreis auf Grundlage historischer Transaktionen.





