Büros
ID M0514Aktualisiert
Büroimmobilie - München, Obersendling - M0514
Obersendling, 81379, München, Bayern
Provisionspflichtig: bei Anmietung 3 Netto-Monatsmieten zzgl. gesetzlicher Umsatzsteuer.** der Wert kann je nach Vertragslaufzeit variieren.
17 € / m²
- Fläche34 - 7.371 m²
- VerfügbarkeitSofort
- Objekt
- Ausstattung
- Lage und Verkehrsanbindung
- Grundrisse
- Exposé herunterladen
- Ihr Kontakt
- Anfrage senden
Objekt
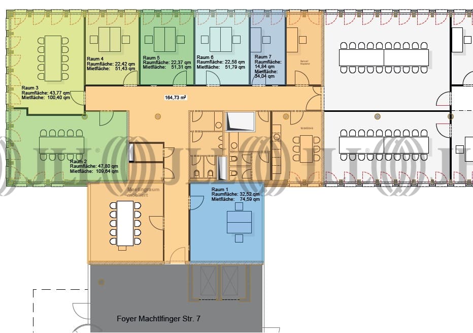
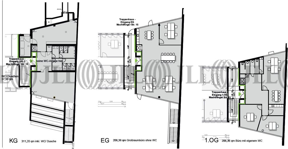
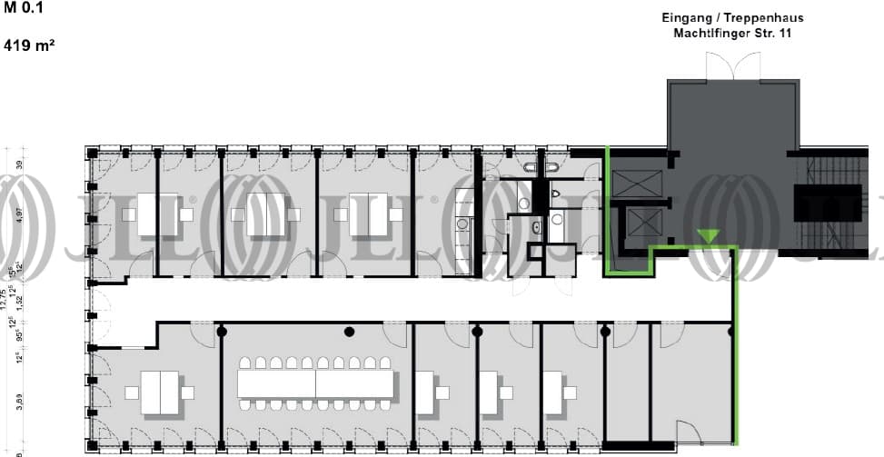
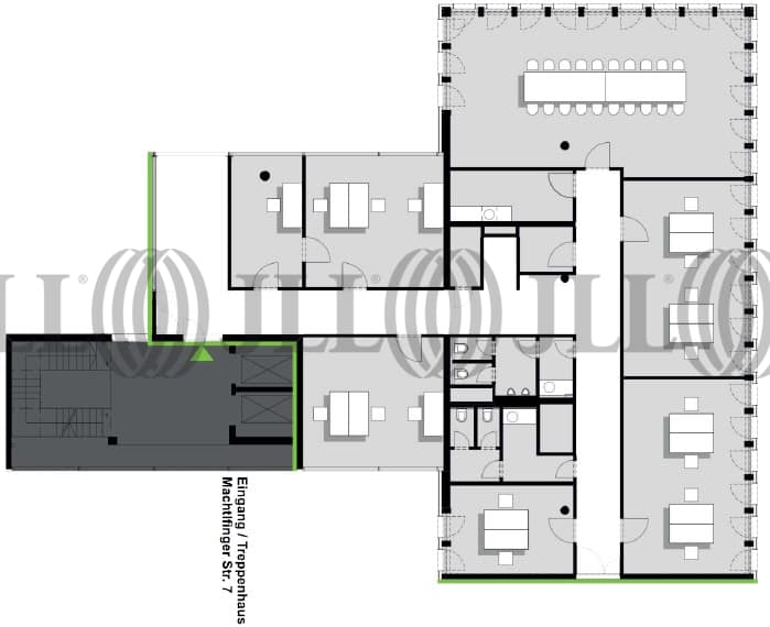
Das repräsentative 5-geschossige Bürogebäude besteht aus 3 Längsbauwerken, die durch 2 transparente Brückenbauten miteinander verbunden sind. Zudem hat das Gebäude 5 großzügige Eingangsbereiche (3 hiervon sind 2-geschossig). Die Fassade besteht aus Naturstein mit raumhohen Fensterelementen bei den Längsbauten. Die Verbindungsbauten sind mit ein Stahl-Glas-Fassade verkleidet. Die Darstellung von Einzel-, Kombi- und Großraumbüros ist auch möglich.
Zertifizierungen
Energieausweis
DGNB: Gold WIREDSCORE: GoldFür diese Liegenschaft liegt ein Verbrauchsausweis vom 24.02.2020 vom Eigentümer/Vermieter vor. Die wesentlichen Energieträger der Liegenschaft sind Fernwärme, Nahwärme. Der Endenergieverbrauch Strom beträgt 71.60 kWh/(m²*a). Der Endenergieverbrauch Wärme beträgt 59.70 kWh/(m²*a).
Verfügbare Fläche
Lage und Verkehrsanbindung
Das Objekt befindet sich im Südwesten von München im Stadtteil Obersendling. Über die Boschetsrieder Straße erreicht man in wenigen Minuten den Mittleren Ring; über den Mittleren Ring besteht eine gute Anbindung an alle umliegenden Autobahnen sowie den Flughafen München und die Neue Messe München.
- Flughafen, München, Fahrzeit: 25 min
- Bundesautobahn, A 95, Fahrzeit: 5 min
- Bundesautobahn, A 96, Fahrzeit: 5 min
- Bundesautobahn, A 8, Fahrzeit: 15 min
- Bus, Machtlfinger Straße, Linie 51, Gehzeit: 1 min
- U-Bahn, Machtlfinger Straße, Gehzeit: 1 min
- Hauptbahnhof, München, Fahrzeit: 12 min
Ihr Kontakt

Nicolas Harmuth
Ihr Kontakt













