Büros
ID M0508Provisionsfrei
Büroimmobilie - München, Schwabing-Nord - Alte Heide - M0508
Schwabing-Nord - Alte Heide, 80807, München, Bayern
20,50 € / m²
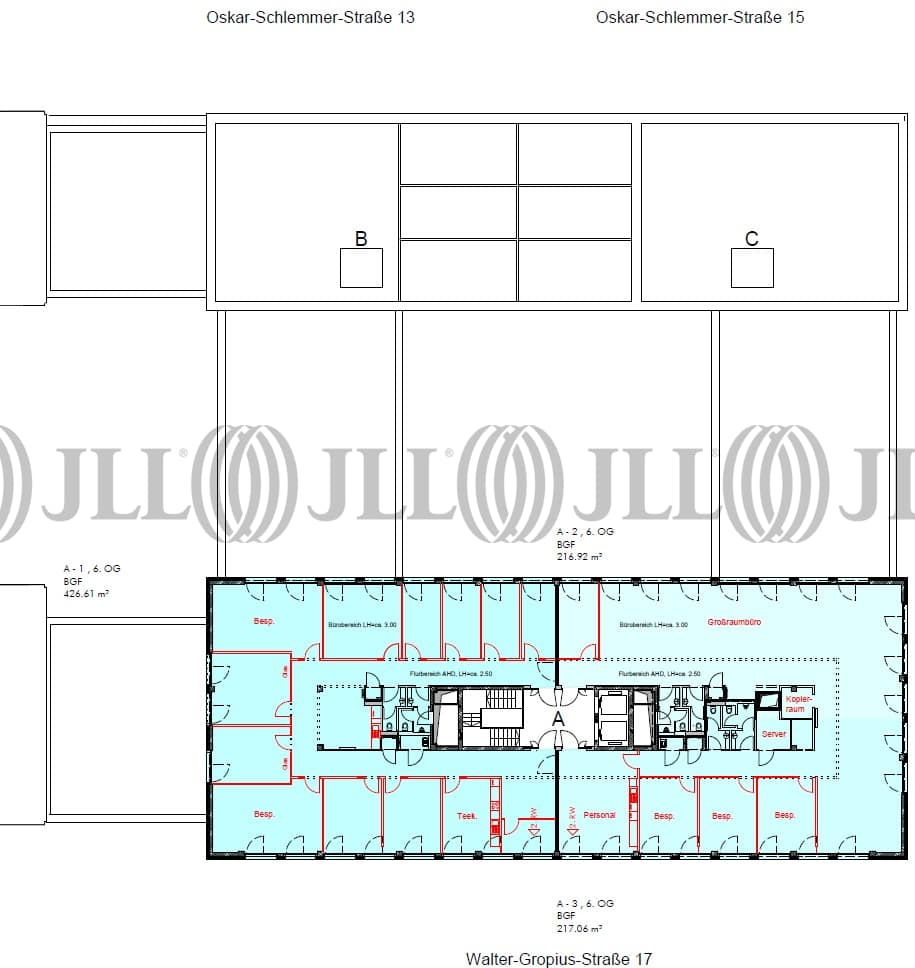
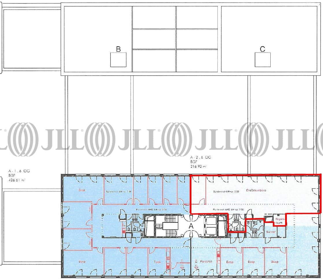
- Fläche242 - 3.054 m²
- VerfügbarkeitAuf Anfrage
- Objekt
- Ausstattung
- Lage und Verkehrsanbindung
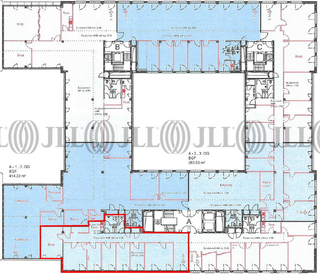
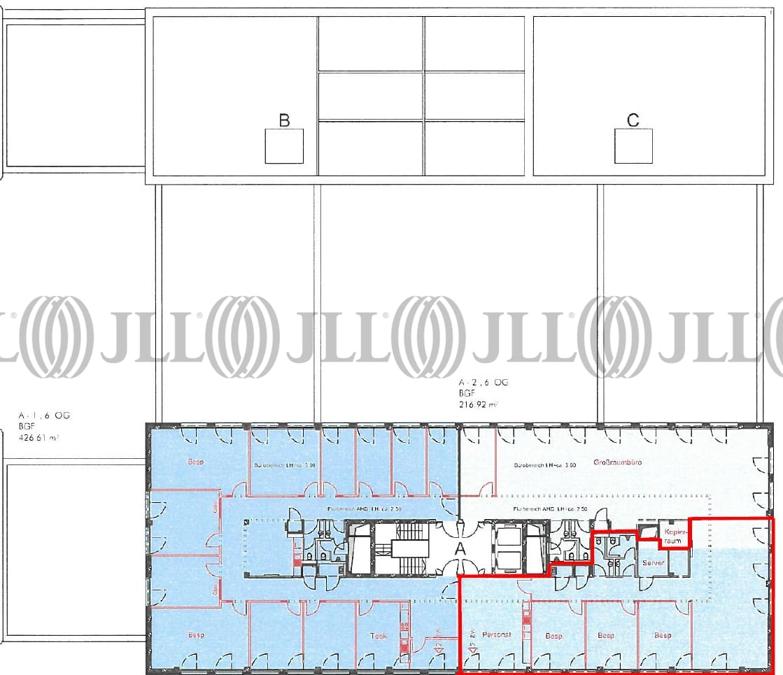
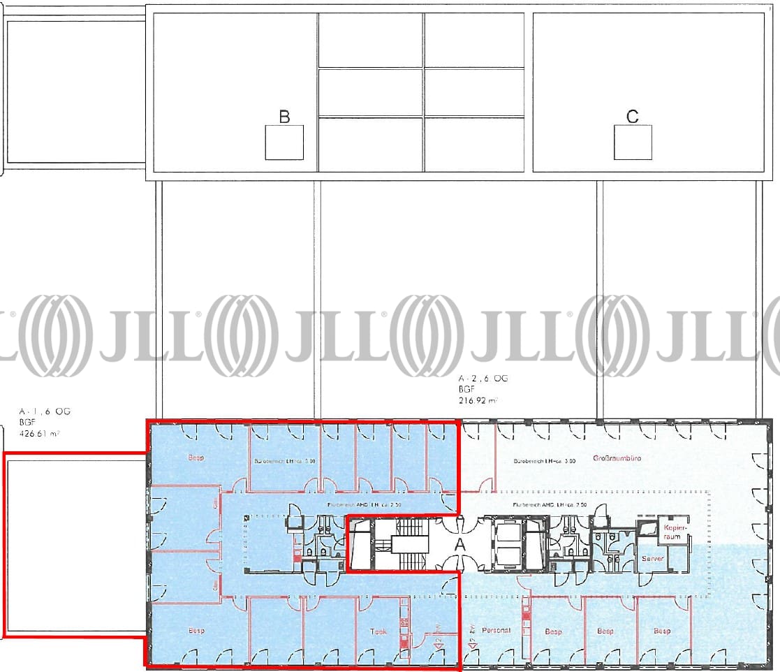
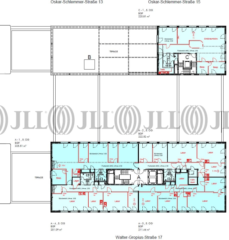
- Grundrisse
- Exposé herunterladen
- Ihr Kontakt
- Anfrage senden
Objekt
- modernes Bürogebäude mit zeitgemäßer Ausstattung
- repräsentatives, zweistöckiges Foyer
- grüne Innenhöfe mit Aufenthaltsqualität
- flexibler Grundriss mit Open-Space Ausrichtung
- repräsentatives, zweistöckiges Foyer
- grüne Innenhöfe mit Aufenthaltsqualität
- flexibler Grundriss mit Open-Space Ausrichtung
Zertifizierungen
Energieausweis
Für diese Liegenschaft liegt ein Bedarfsausweis vom 28.01.2026 vom Eigentümer/Vermieter vor. Die wesentlichen Energieträger der Liegenschaft sind Fernwärme, KWK, Strom. Der Endenergiebedarf Strom beträgt 29 kWh/(m²*a). Der Endenergiebedarf Wärme beträgt 94 kWh/(m²*a).Verfügbare Fläche
Lage und Verkehrsanbindung
Das Objekt ist im Münchner Norden in der Parkstadt Schwabing gelegen, einem der bedeutendsten Bürostandorte Münchens. Das "Parkstadt-Center" liegt in unmittelbarer Nähe und gewährleistet eine hervorragende Nahversorgung. Mehrere Hotels und etablierte Firmen sitzen im direkten Umfeld - zur namhaften Nachbarschaft zählen unter anderem Microsoft, Amazon und Fujitsu. Die Parkstadt Schwabing ist mit dem Auto hervorragend an die Autobahn A9, den Flughafen und den Mittleren Ring angebunden.
- Hauptbahnhof, München, Fahrzeit: 12 min
- Straßenbahn/Tram, Anni-Albers-Straße, Linie 23, Gehzeit: 8 min
- Bus, Gertrud-Grunow-Straße, Linien 50, 150, Gehzeit: 7 min
- Bundesautobahn, A 9, Fahrzeit: 3 min
- Bundesautobahn, A 99, Fahrzeit: 10 min
- Flughafen, München, Fahrzeit: 25 min
Ihr Kontakt

Nicolas Salbeck
Ihr Kontakt

