Büros
ID M0484Provisionsfrei
Büroimmobilie - München, Maxvorstadt - M0484
Maxvorstadt, 80335, München, Bayern
27 € / m²
- Fläche223 m²
- VerfügbarkeitSofort
- Objekt
- Ausstattung
- Lage und Verkehrsanbindung
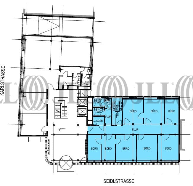
- Grundriss
- Exposé herunterladen
- Ihr Kontakt
- Anfrage senden
Objekt
Das Objekt mit seinem repräsentativen Eingangsbereich verfügt über modern und hochwertig ausgestattete Büroflächen. Außenwerbung am Objekt ist möglich.
Zertifizierungen
Energieausweis
Für diese Liegenschaft liegt ein Bedarfsausweis vom 2020-10-20 vom Eigentümer/Vermieter vor. Die wesentlichen Energieträger der Liegenschaft sind Strom,Fernwärme. Der Endenergiebedarf Strom beträgt 50.00 kWh/(m²*a). Der Endenergiebedarf Wärme beträgt 163.00 kWh/(m²*a).Verfügbare Fläche
Lage und Verkehrsanbindung
Das Objekt liegt im westlichen Teil der Münchener Innenstadt im Stadtteil Maxvorstadt, zwischen Stiglmaierplatz und Hauptbahnhof.
- Hauptbahnhof, München, Fahrzeit: 2 min
- U-Bahn, Stiglmaierplatz, Gehzeit: 4 min
- Bus, Königsplatz, Buslinie 100, Gehzeit: 5 min
- Bundesautobahn, A 96, Fahrzeit: 15 min
- Bundesautobahn, A 95, Fahrzeit: 13 min
- Flughafen, München, Fahrzeit: 35 min
Ihr Kontakt

Tobias Schneider
Ihr Kontakt
Marktinformationen
Mietmarkt
Maxvorstadt, München
Gew. Ø-Miete
27 € / m²
siehe 24 passende MietobjekteErfahren Sie mehr* Durchschnittspreis auf Grundlage historischer Transaktionen.




