Büros
ID M0480Büroimmobilie - München, Thalkirchen - M0480
Thalkirchen, 81379, München, Bayern
Provisionspflichtig: bei Anmietung 3 Netto-Monatsmieten zzgl. gesetzlicher Umsatzsteuer.** der Wert kann je nach Vertragslaufzeit variieren.
28,80 € / m²
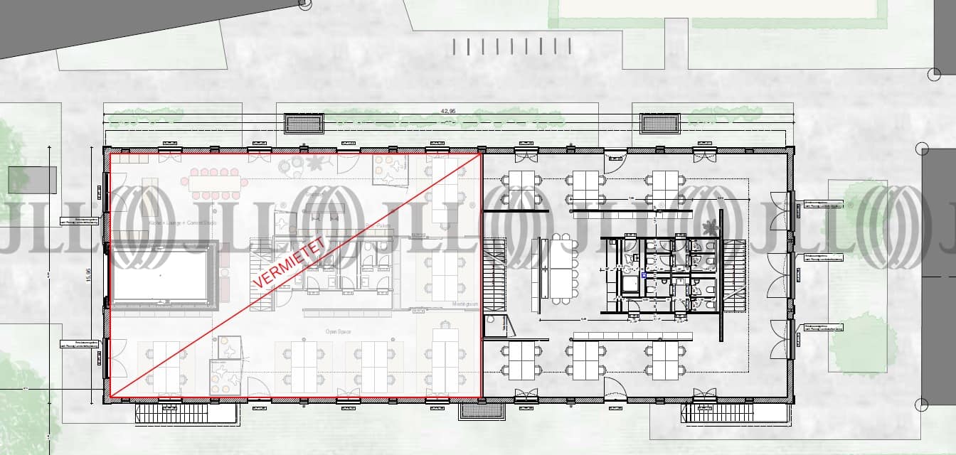
- Fläche520 m²
- VerfügbarkeitI quartal 2026
- Objekt
- Ausstattung
- Lage und Verkehrsanbindung
- Grundrisse
- Exposé herunterladen
- Ihr Kontakt
- Anfrage senden
Objekt
Top ausgestattetes Büro im Neubau eines Backsteinloftgebäudes in einem Mediencampus, bestehend aus historischen, aber top modernen Backsteingebäuden und zwei Neubaulofts.
Einen hellen, offenen Großraumbereich mit vielen Fenstern bietet das Loft sowie auch einzelne Büroräume. Hier haben Sie Raum für kreatives Arbeiten. Eine Terrasse mit Blick ins Grüne gehört zu der Einheit.
Die Atmosphäre des ehemaligen Isartalbahnhofs trifft hier auf exzellente Neubauqualität.
Das Areal verfügt über viel Grün zwischen den Backsteinlofts und lädt zum Verweilen in der Mittagspause einlädt. Sehr angenehmes Umfeld.
Einen hellen, offenen Großraumbereich mit vielen Fenstern bietet das Loft sowie auch einzelne Büroräume. Hier haben Sie Raum für kreatives Arbeiten. Eine Terrasse mit Blick ins Grüne gehört zu der Einheit.
Die Atmosphäre des ehemaligen Isartalbahnhofs trifft hier auf exzellente Neubauqualität.
Das Areal verfügt über viel Grün zwischen den Backsteinlofts und lädt zum Verweilen in der Mittagspause einlädt. Sehr angenehmes Umfeld.
Verfügbare Fläche
Lage und Verkehrsanbindung
Das Objekt ist im Süden von München im Stadtteil „Thalkirchen“ gelegen. Es besteht eine gute Anbindung an den Mittleren Ring über die Boschetsrieder Straße, somit ist man schnell an der Autobahnen A 95 Richtung Garmisch-Partenkirchen und A 96 Richtung Lindau. Die U-Bahn-Station „Thalkirchen“ der Linie U3 ist in wenigen Minuten zu erreichen sowie die S-Bahn-Station „Siemenswerke“ der Linien S7/S20/S27. Geschäfte des täglichen Bedarfs und Restaurants befinden sich in näherer Umgebung.
- Flughafen, München, Fahrzeit: 60 min
- Bundesautobahn, A 95, Fahrzeit: 10 min
- Bundesautobahn, A 995, Fahrzeit: 12 min
- Bundesautobahn, A 995, Fahrzeit: 8 min
- Bus, Bushaltestelle Floßlände, Linie 135, Gehzeit: 5 min
- U-Bahn, Thalkirchen, Linie U3, Gehzeit: 8 min
- Hauptbahnhof, München, Fahrzeit: 15 min
Ihr Kontakt

Nicolas Harmuth
Ihr Kontakt




