Büros
ID M0475Provisionsfrei
Büroimmobilie - Aschheim - M0475
85609, Aschheim, Bayern
Kontaktieren Sie uns für den Preis
- Fläche629 - 9.563 m²
- VerfügbarkeitAuf Anfrage
- Objekt
- Ausstattung
- Lage und Verkehrsanbindung
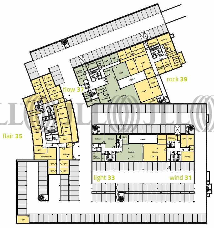
- Grundrisse
- Exposé herunterladen
- Ihr Kontakt
- Anfrage senden
Objekt
Das Objekt besteht aus fünf Gebäuden - ein Ensemble mit exzellenten Eigenschaften. Die lockere Struktur des VÜNF bietet vielfältigen Raum für neue Ideen und zeitgemäße Nutzungsarten (Single-Tenant, Multi-Tenant, Einzelbüros, Kombibüros, Open Space). Das vünf bietet am Teich jede Menge grünen Erholungsraum für ein inspirierendes Time-out.
Zertifizierungen
Energieausweis
DGNB: SilverFür diese Liegenschaft liegt ein Bedarfsausweis vom 11.10.2019 vom Eigentümer/Vermieter vor. Die wesentlichen Energieträger der Liegenschaft sind Erdgas schwer, Strom. Der Endenergiebedarf Strom beträgt 19.00 kWh/(m²*a). Der Endenergiebedarf Wärme beträgt 115.40 kWh/(m²*a).
Verfügbare Fläche
Lage und Verkehrsanbindung
Östlich von München in der Gemeinde Dornach liegt das Objekt im Gewerbepark „Dornach II“. Durch die nahe gelegene Autobahnanbindung zur A94 gibt es eine optimale Anbindung an den Flughafen München. Die unmittelbare Nähe zur Messe, die optimale Infrastruktur und international renommierte Unternehmen in der Nachbarschaft bieten unternehmerische Vorteile, die man andernorts vergeblich sucht. Die Nahversorgung ist über diverse Einkaufsmöglichkeiten am Standort sowie die schnell erreichbaren Riem Arcaden gewährleistet. Dienstleister des täglichen Bedarfs befinden sich in der Nähe.
- Hauptbahnhof, München, Fahrzeit: 33 min
- U-Bahn, Riem, Linie S2, Gehzeit: 11 min
- Bus, Dornach Einsteinring, Linie 264, Gehzeit: 2 min
- Bundesautobahn, A 94, Fahrzeit: 5 min
- Bundesautobahn, A 99, Fahrzeit: 15 min
- Flughafen, München, Fahrzeit: 32 min
Ihr Kontakt

Nicolai Reichert
Ihr Kontakt





