Büros
ID M0260Provisionsfrei
Aktualisiert
Büroimmobilie - München, Maxvorstadt - M0260
Maxvorstadt, 80636, München, Bayern
29,50 € / m²
- Fläche339 - 2.562 m²
- VerfügbarkeitSofort
- Objekt
- Ausstattung
- Lage und Verkehrsanbindung
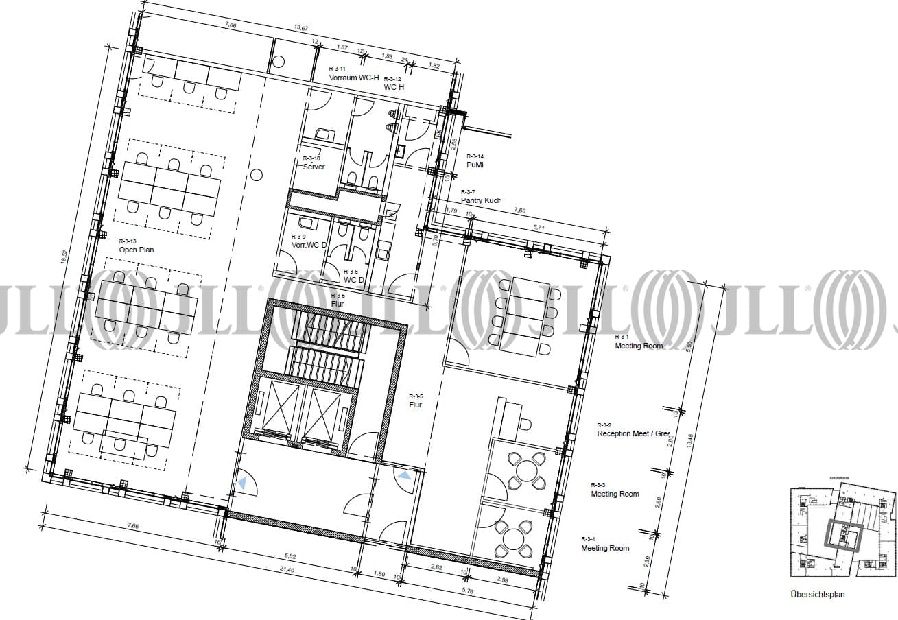
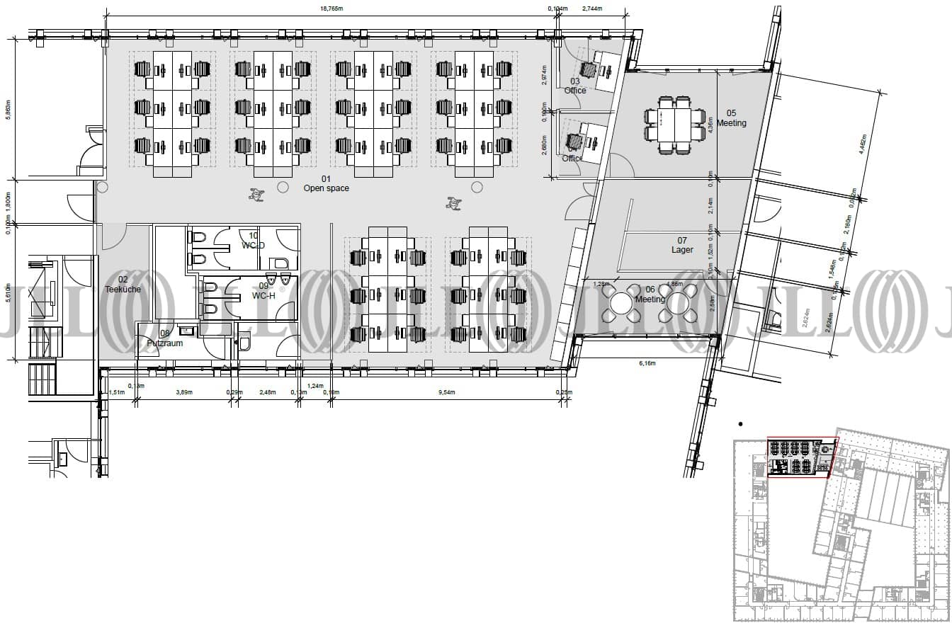
- Grundrisse
- Exposé herunterladen
- Ihr Kontakt
- Anfrage senden
Objekt
Das Objekt ist ein eleganter 5 bis 7-geschossiger Neubau mit leichter transparenter Architektur und einem Innenhof Atrium.
Zertifizierungen
Energieausweis
DGNB: SilverFür diese Liegenschaft liegt ein Bedarfsausweis vom 31.07.2018 vom Eigentümer/Vermieter vor. Die wesentlichen Energieträger der Liegenschaft sind Fernwärme, Strom. Endenergiebedarf: 87.50000 kWh/(m²*a)
Verfügbare Fläche
Lage und Verkehrsanbindung
Das Objekt liegt in sehr guter westlicher Innenstadtlage im Stadtteil Ludwigsvorstadt-Isarvorstadt. Es befindet sich ca. 5 Fahrtminuten vom Hauptbahnhof und vom Mittleren Ring entfernt. Über den Mittleren Ring sind alle umliegenden Autobahnen sowie den Flughafen München schnell und bequem zu erreichen. Der Bereich um den Hauptbahnhof hat sich zunehmend zu einem attraktiven Bürostandort für viele Unternehmen entwickelt, so z. B. Dresdner Bank, Cartier, Bayerische Landesbank, Europäisches Patentamt. Dienstleister des täglichen Bedarfs befinden sich in der Nähe.
- Flughafen, München, Fahrzeit: 33 min
- Bundesautobahn, A 96, Fahrzeit: 7 min
- Bundesautobahn, A 95, Fahrzeit: 10 min
- Bundesautobahn, A 9, Fahrzeit: 15 min
- Hauptbahnhof, München, Fahrzeit: 4 min
- S-Bahn, Hackerbrücke, Stammstrecke, Linien S1-S8, Gehzeit: 1 min
Ihr Kontakt

Nicolas Harmuth
Ihr Kontakt
Marktinformationen
Mietmarkt
Maxvorstadt, München
Gew. Ø-Miete
29,50 € / m²
siehe 24 passende MietobjekteErfahren Sie mehr* Durchschnittspreis auf Grundlage historischer Transaktionen.

