Büros
ID M0139Provisionsfrei
Büroimmobilie - Unterföhring - M0139
85774, Unterföhring, Bayern
14,50 € / m²
- Fläche284 - 5.951 m²
- VerfügbarkeitAuf Anfrage
- Objekt
- Ausstattung
- Lage und Verkehrsanbindung
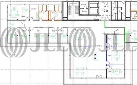
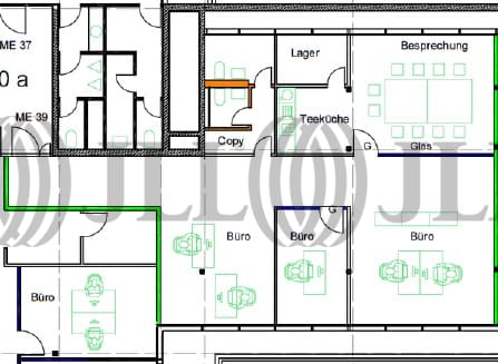
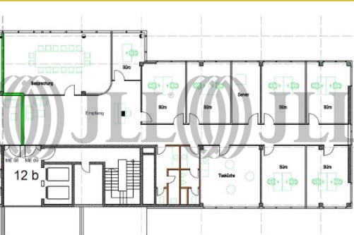
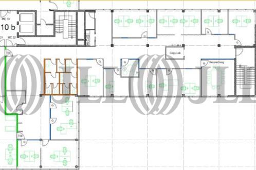
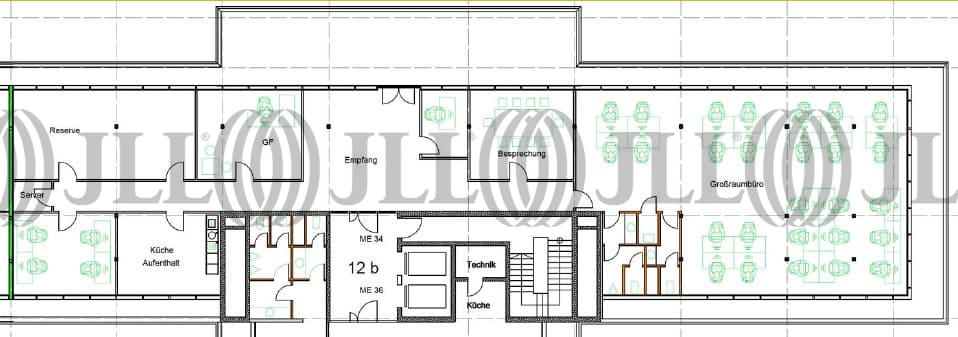
- Grundrisse
- Exposé herunterladen
- Ihr Kontakt
- Anfrage senden
Objekt
Das attraktive und moderne Bürogebäude verfügt über vier repräsentative Eingangsportale. Ebenerdige Anlieferzonen mit Lastenaufzug sind ebenfalls verfügbar.
Zertifizierungen
Energieausweis
BREEAM: Very goodFür diese Liegenschaft liegt ein Verbrauchsausweis vom 12.04.2021 vom Eigentümer/Vermieter vor. Der wesentliche Energieträger der Liegenschaft ist Heizwerk, fossil. Der Endenergieverbrauch Strom beträgt 13.60 kWh/(m²*a). Der Endenergieverbrauch Wärme beträgt 51.70 kWh/(m²*a).
Verfügbare Fläche
Lage und Verkehrsanbindung
Das Objekt liegt nordöstlich von München, in Unterföhring. Die Münchener Innenstadt und die Neue Messe München sind bequem über den Mittleren Ring zu erreichen. Der Englische Garten ist nur ca. 5 Gehminuten entfernt.
- Hauptbahnhof, München, Fahrzeit: 26 min
- S-Bahn, Johanneskirchen, Linie S8, Gehzeit: 29 min
- Bus, Unterföhring, Feringastr. Ost, Linie 232, Gehzeit: 2 min
- Bundesautobahn, A 9, Fahrzeit: 4 min
- Bundesautobahn, A 99, Fahrzeit: 6 min
- Bundesautobahn, A 92, Fahrzeit: 12 min
- Bundesautobahn, A 94, Fahrzeit: 12 min
- Flughafen, München, Fahrzeit: 20 min
Ihr Kontakt

Tobias Schneider
Ihr Kontakt





