Büros
ID M0092Provisionsfrei
Büroimmobilie - München, Moosach - M0092
Moosach, 80992, München, Bayern
20,50 € / m²
- Fläche578 - 1.863 m²
- VerfügbarkeitSofort
- Objekt
- Ausstattung
- Lage und Verkehrsanbindung
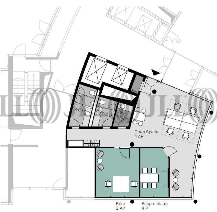
- Grundrisse
- Exposé herunterladen
- Ihr Kontakt
- Anfrage senden
Objekt
Der Dantehof zeichnet sich durch eine ansprechend moderne Architektur mit hoher Designqualität aus. Die exponierte Lage am Kreuzungspunkt Dachauer/Hanauer Straße und die markant geschwungene Stirnseite machen das Gebäude schon von außen einprägsam und unverwechselbar. Großzügige Raumhöhen bis zu 3,40 Metern, bodentiefe Fenster im Erdgeschoss und ein idyllischer Innenhof als grüne Lunge: der Dantehof hat ein eindrucksvoll harmonisches Innenleben.
Zertifizierungen
Energieausweis
Für diese Liegenschaft liegt ein Bedarfsausweis vom 29.09.2020 vom Eigentümer/Vermieter vor. Die wesentlichen Energieträger der Liegenschaft sind Fernwärme, KWK, Nahwärme. Der Endenergiebedarf Strom beträgt 34.00 kWh/(m²*a). Der Endenergiebedarf Wärme beträgt 169.00 kWh/(m²*a).Verfügbare Fläche
Lage und Verkehrsanbindung
Das Objekt ist zwischen Nymphenburg und Olympiapark im Stadtteil „Moosach“ gelegen. Mit dem Auto gelangt man in kürzester Zeit auf den Mittleren Ring, somit sind die Innenstadt, alle umliegenden Autobahnen sowie der Flughafen München und die Neue Messe München schnell und bequem zu erreichen.
- Flughafen, München, Fahrzeit: 25 min
- Bundesautobahn, A 9, Fahrzeit: 12 min
- Bundesautobahn, A 96, Fahrzeit: 15 min
- Bundesautobahn, A 99, Fahrzeit: 12 min
- Bus, Wintrichring, Linie 143, Gehzeit: 9 min
Ihr Kontakt

Tobias Schneider
Ihr Kontakt
Marktinformationen
Mietmarkt
Moosach, München
Gew. Ø-Miete
20,50 € / m²
siehe 10 passende MietobjekteErfahren Sie mehr* Durchschnittspreis auf Grundlage historischer Transaktionen.













