Büros
ID M0010Premium JLL
Provisionsfrei
Aktualisiert
Büroimmobilie - München, Ramersdorf - M0010
Ramersdorf, 81541, München, Bayern
Kontaktieren Sie uns für den Preis
- Fläche161 - 7.122 m²
- VerfügbarkeitAuf Anfrage
- Objekt
- Ausstattung
- Lage und Verkehrsanbindung
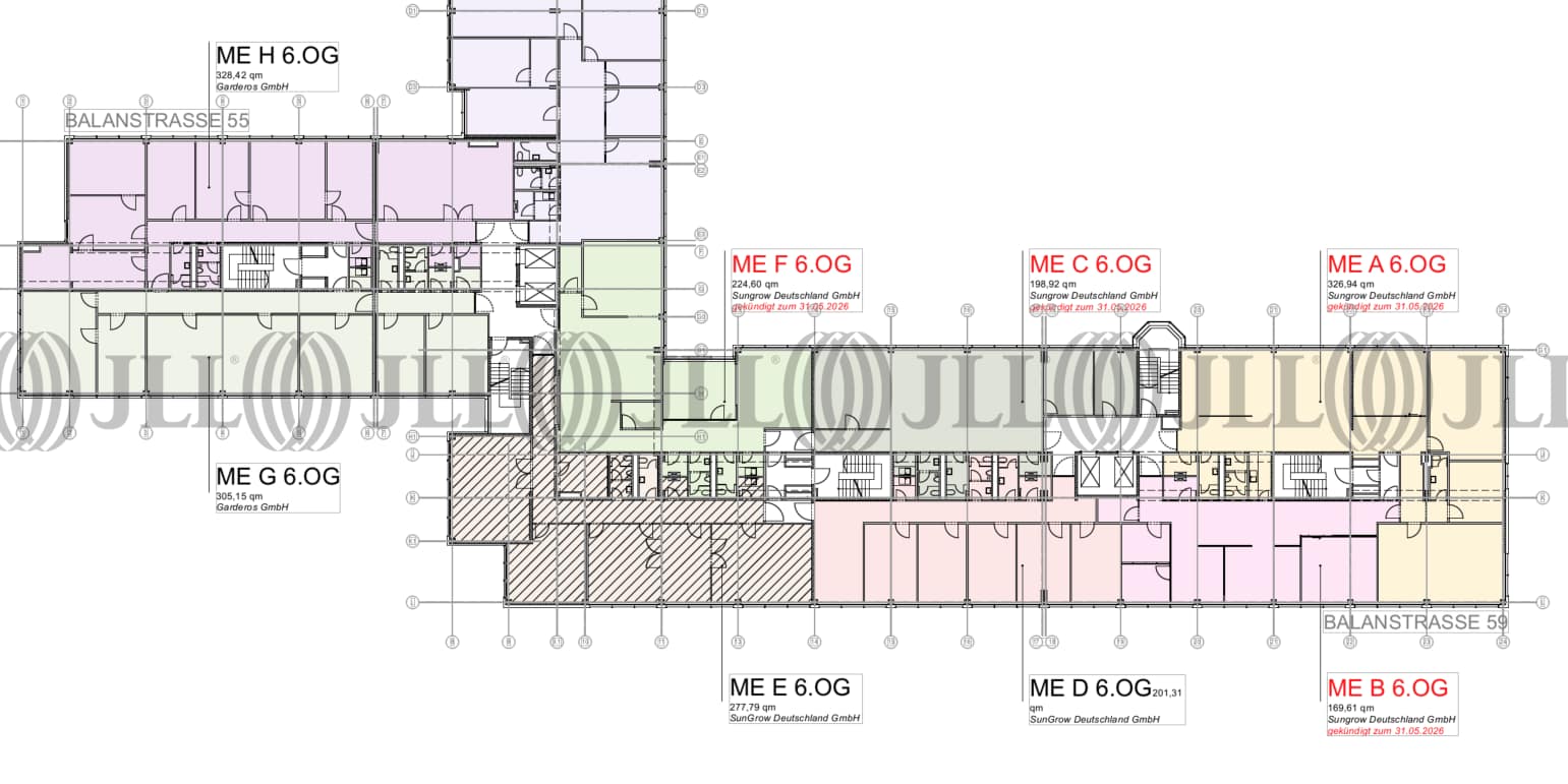
- Grundrisse
- Exposé herunterladen
- Ihr Kontakt
- Anfrage senden
Objekt
Das BLOOM kann dank durchdachter Planung und ambitionierter Architektur mit einer ganzen Reihe erfrischender Fakten und Features aufwarten. Angefangen bei der ausgezeichneten digitalen Infrastruktur – belohnt mit einer WiredScore-Gold-Zertifizierung und einer BREEAM-Zertifizierung für gute Nachhaltigkeit – über flexibel und effizient nutzbare Flächen, bis hin zum grünen und erholsamen Innenhof. In der Gesamtheit des BLOOM zeigt sich erfrischend deutlich, wie wichtig ein ausgewogenes Verhältnis von Funktion und Inspiration ist, um produktiv zu sein. Die Etagen sind aufgrund der kleinteiligen Aufteilung hochflexibel und passen sich den Bedürfnissen von Groß- und Kleinmietern an – ob Open Space, Gruppen- oder Einzelbüros. Die Ausstattung erfolgt nach Mieterwunsch.
Zertifizierungen
Energieausweis
BREEAM: Very goodFür diese Liegenschaft liegt ein Verbrauchsausweis vom 24.05.2024 vom Eigentümer/Vermieter vor. Die wesentlichen Energieträger der Liegenschaft sind Heizwerk, fossil, KWK, Strom. Der Endenergieverbrauch Strom beträgt 8,6 kWh/(m²*a). Der Endenergieverbrauch Wärme beträgt 65,2 kWh/(m²*a).
Verfügbare Fläche
Lage und Verkehrsanbindung
Als stille Oase und Ort der Inspiration ist der Kustermannpark in München ein geschätztes grünes Refugium und ein gefragter Wohlfühlstandort. Direkt angrenzend präsentiert sich ein modernes Büroensemble, bestehend aus RHYTHM und BLOOM, kurz R’N’B IM KUSTERMANNPARK genannt. Ein markantes silbernes B zeigt Ihnen den Weg ins BLOOM in der Balanstraße 55–59. Das BLOOM empfängt Sie mit einer strahlenden Glasfassade und einem stilvoll und üppig gestalteten Vorplatz und entfaltet in seinem eleganten Foyer eine natürlich erfrischende Atmosphäre. Das zentral gelegene Büroensemble R’N’B IM KUSTERMANNPARK im Stadtteil Haidhausen in unmittelbarer Nachbarschaft zum Ostbahnhof besticht besonders durch seine Nähe zur Innenstadt. Die perfekte S-Bahn-Anbindung im komfortablen 4-Minuten-Rhythmus oder die bequeme Anfahrt mit PKW und Fahrrad bieten ideale Voraussetzungen für Unternehmen, denen eine optimale Erreichbarkeit am Herzen liegt. Das BLOOM in der Balanstraße profitiert aber nicht nur von seiner attraktiven grünen Lage, sondern auch von einem kreativen Hotspot in der Nachbarschaft – dem Werksviertel. Eine Vielzahl von Biergärten, Restaurants und Einkaufsmöglichkeiten rund um das BLOOM sowie eine schicke Barista-Bar, die 2021 im BLOOM eröffnen wird, sorgen für eine Aufenthaltsqualität, wie man sie sich nur wünschen kann.
- Flughafen, München, Fahrzeit: 25 min
- Bundesautobahn, A 8, Fahrzeit: 5 min
- Bundesautobahn, A 995, Fahrzeit: 8 min
- Bundesautobahn, A 94, Fahrzeit: 7 min
- Bus, St.-Cajetan-Straße, Linien 54, 190, 191, Gehzeit: 2 min
- U-Bahn, Ostbahnhof, Linie U5, Gehzeit: 10 min
- Hauptbahnhof, München, Fahrzeit: 7 min
Ihr Kontakt

Nicolas Harmuth
Ihr Kontakt
Marktinformationen
Mietmarkt
Ramersdorf, München
siehe 0 passende MietobjekteErfahren Sie mehr
* Durchschnittspreis auf Grundlage historischer Transaktionen.










