Büros
ID M0008Provisionsfrei
Büroimmobilie - Unterschleißheim - M0008
85716, Unterschleißheim, Bayern
11,80 € / m²
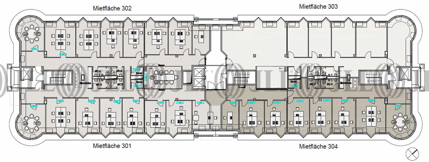
- Fläche305 - 1.305 m²
- VerfügbarkeitSofort
- Objekt
- Ausstattung
- Lage und Verkehrsanbindung
- Grundriss
- Exposé herunterladen
- Ihr Kontakt
- Anfrage senden
Objekt
- repräsentative Eingangsbereiche
- solitäre Lage
- Glasschiebetür
- moderne Schilderanlage
- Zutrittssystem
- teilweise Merbau-Parkettboden
- alle Stellplätze in der Tiefgarage und die oberirdischen Stellplätze können mit einer E-Ladestation ausgestattet werden
- solitäre Lage
- Glasschiebetür
- moderne Schilderanlage
- Zutrittssystem
- teilweise Merbau-Parkettboden
- alle Stellplätze in der Tiefgarage und die oberirdischen Stellplätze können mit einer E-Ladestation ausgestattet werden
Zertifizierungen
Energieausweis
Für diese Liegenschaft liegt ein Verbrauchsausweis vom 2014-04-30 vom Eigentümer/Vermieter vor. Der wesentliche Energieträger der Liegenschaft ist Erdgas schwer. Der Endenergieverbrauch Strom beträgt 22.70 kWh/(m²*a). Der Endenergieverbrauch Wärme beträgt 62.90 kWh/(m²*a).Verfügbare Fläche
Lage und Verkehrsanbindung
Das Objekt ist nördlich von München, in Unterschleißheim im Gewerbegebiet Lohhof gelegen. Die Münchner Innenstadt ist in ca. 20 Minuten mit dem PKW zu erreichen. Unterschleißheim hat sich in den letzten Jahren zu einem attraktiven Standort für High-Tech Firmen entwickelt. Dienstleister des täglichen Bedarfs befinden sich in der Nähe.
- Hauptbahnhof, München, Fahrzeit: 25 min
- S-Bahn, Unterschleißheim, Linie S1, Gehzeit: 10 min
- Bus, Keplerstraße Linie 219, Gehzeit: 1 min
- Bundesautobahn, A 92, Fahrzeit: 3 min
- Bundesautobahn, A 9, Fahrzeit: 11 min
- Flughafen, München, Fahrzeit: 17 min
Ihr Kontakt

Nicolas Salbeck
Ihr Kontakt





















