Büros
ID K1864Büroimmobilie - Köln, Neustadt-Nord - K1864
Neustadt-Nord, 50672, Köln, Nordrhein-Westfalen
Provisionspflichtig: bei Anmietung 3 Netto-Monatsmieten zzgl. gesetzlicher Umsatzsteuer.** der Wert kann je nach Vertragslaufzeit variieren.
Kontaktieren Sie uns für den Preis
- Fläche1.307 m²
- VerfügbarkeitSofort
- Objekt
- Ausstattung
- Lage und Verkehrsanbindung
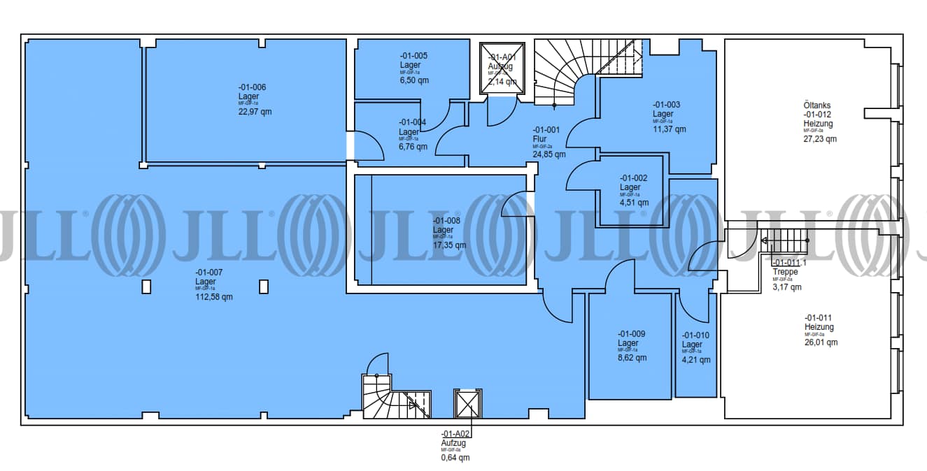
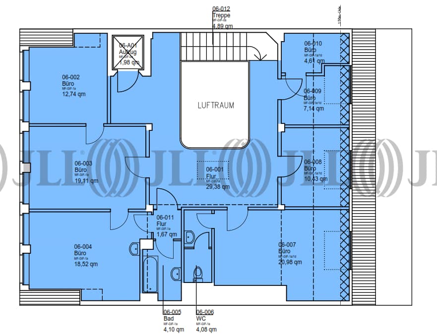
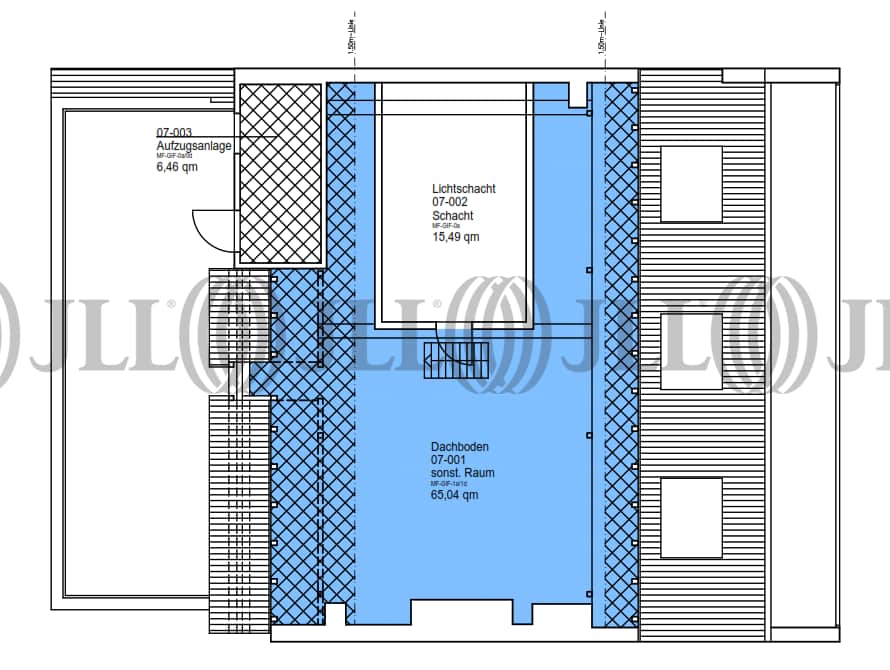
- Grundrisse
- Exposé herunterladen
- Ihr Kontakt
- Anfrage senden
Objekt
Das Bürogebäude überzeugt mit einer durchdachten Kombination aus praktischen und repräsentativen Ausstattungsmerkmalen. Umfangreiche Lagerflächen im Untergeschoss bieten ausreichend Stauraum für verschiedene Bedürfnisse. Klimatisierte Konferenzräume gewährleisten optimale Bedingungen für Besprechungen und Kundentermine.
Ein eleganter Empfangsbereich sorgt für einen professionellen ersten Eindruck bei Mitarbeitern und Besuchern. Die Dachterrasse erweitert das Raumangebot um eine attraktive Außenfläche, die sowohl für entspannte Pausen als auch für Besprechungen im Freien genutzt werden kann.
Eine zeitgemäße CAT-Verkabelung stellt die erforderliche IT-Infrastruktur für moderne Arbeitsplätze sicher. Eine integrierte Duschgelegenheit erhöht den Nutzungskomfort, besonders für umweltbewusste Pendler oder sportlich aktive Nutzer. Auf allen Geschossebenen sind separate WC-Anlagen vorhanden, was den hohen Nutzungsstandard unterstreicht.
Teeküchen in strategisch verteilten Geschossen - Erdgeschoss, 1., 3. und 5. Obergeschoss - komplettieren das ausgewogene Flächenkonzept und fördern die Kommunikation zwischen den Nutzern.
Alle Flächen müssen zusammenhängend angemietet werden.
Ein eleganter Empfangsbereich sorgt für einen professionellen ersten Eindruck bei Mitarbeitern und Besuchern. Die Dachterrasse erweitert das Raumangebot um eine attraktive Außenfläche, die sowohl für entspannte Pausen als auch für Besprechungen im Freien genutzt werden kann.
Eine zeitgemäße CAT-Verkabelung stellt die erforderliche IT-Infrastruktur für moderne Arbeitsplätze sicher. Eine integrierte Duschgelegenheit erhöht den Nutzungskomfort, besonders für umweltbewusste Pendler oder sportlich aktive Nutzer. Auf allen Geschossebenen sind separate WC-Anlagen vorhanden, was den hohen Nutzungsstandard unterstreicht.
Teeküchen in strategisch verteilten Geschossen - Erdgeschoss, 1., 3. und 5. Obergeschoss - komplettieren das ausgewogene Flächenkonzept und fördern die Kommunikation zwischen den Nutzern.
Alle Flächen müssen zusammenhängend angemietet werden.
Verfügbare Fläche
Lage und Verkehrsanbindung
Die Lage des Objekts befindet sich im Herzen von Köln, in der Nähe des beliebten Belgischen Viertels, nur wenige Gehminuten vom Mediapark entfernt. Die Anbindung an den öffentlichen Nahverkehr ist hervorragend: Straßenbahn- und Bushaltestellen sind in rund 3 Gehminuten erreichbar, sodass der Kölner Hauptbahnhof in etwa 5 bis 7 Minuten erreichbar ist. Auch gastronomisch bietet die Umgebung ein vielfältiges Angebot – von stilvollen Cafés über internationale Restaurants bis hin zu angesagten Bars ist alles in unmittelbarer Nähe vorhanden. Die Anfahrt mit dem Auto gestaltet sich ebenso komfortabel: Die nächstgelegene Autobahnauffahrt ist in etwa 10 Minuten erreichbar. Zum Flughafen Köln/Bonn beträgt die Fahrzeit in der Regel rund 20 bis 25 Minuten, abhängig vom Verkehrsaufkommen. Die zentrale Lage kombiniert urbanes Flair mit optimaler Erreichbarkeit und einem breit gefächerten Angebot an Freizeit- und Versorgungsmöglichkeiten.
- Hauptbahnhof, Hauptbahnhof Köln, Fahrzeit: 5 min
- Straßenbahn/Tram, Christophstr./Mediapark 12, 15, Gehzeit: 1 min
- Bundesautobahn, A57, Fahrzeit: 10 min
- Bundesautobahn, A1, Fahrzeit: 14 min
- Flughafen, Köln/Bonn, Fahrzeit: 26 min
Ihr Kontakt

Alexandra Zimmermann
Ihr Kontakt















