Büros
ID K1861Büroimmobilie - Köln, Altstadt-Nord - K1861
Altstadt-Nord, 50668, Köln, Nordrhein-Westfalen
Provisionspflichtig: bei Anmietung 3 Netto-Monatsmieten zzgl. gesetzlicher Umsatzsteuer.** der Wert kann je nach Vertragslaufzeit variieren.
Kontaktieren Sie uns für den Preis
- Fläche487 - 1.081 m²
- VerfügbarkeitSofort
- Objekt
- Ausstattung
- Lage und Verkehrsanbindung
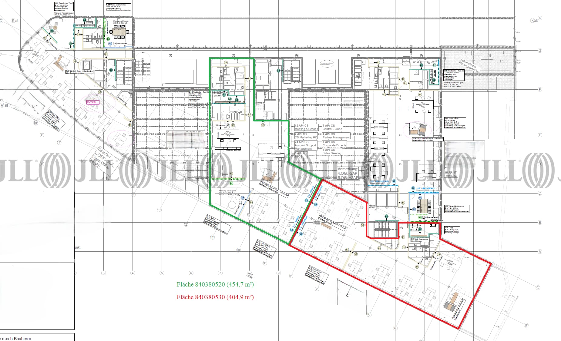
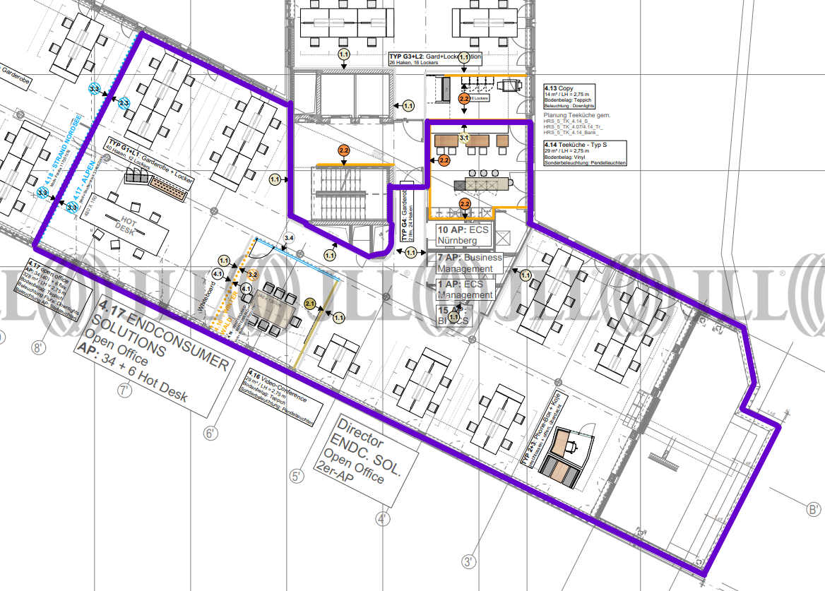
- Grundrisse
- Exposé herunterladen
- Ihr Kontakt
- Anfrage senden
Objekt
Über den repräsentativen Eingang gelangen Sie in die beeindruckende, lichtdurchflutete Lobby, die über eine Deckenhöhe von bis zu 20 m verfügt. Hier befindet sich der zentrale Empfang, wo Sie, Ihre Mitarbeiter und Kunden freundlich von 8:00-16:00 Uhr empfangen werden. Von der Lobby haben Sie Zugang zum Restaurant La Mamounia, welches ausschließlich für die Mitarbeiter im Coeur Cologne zur Verfügung steht. Die ansprechend gestaltete Business Lounge kann ebenfalls von Mietern und Kunden genutzt werden. Im mediterran gestalteten Wartebereich holen Sie Ihre Besucher ab. Die modernen Büroflächen verfügen in vielen Bereichen über einen außergewöhnlichen Domblick. Alle Büroformen lassen sich effizient darstellen und verfügen über eine hochwertige Ausstattung wie Akustikdecken und Schallschutzverglasung. Der hochwertige Skygarden auf dem Dach des Coeur Colognes kann zusätzlich mitbenutzt werden und lädt zum Verweilen ein. Das großzügige Auditorium für bis zu 250 Personen kann bei Bedarf angemietet werden. Das Coeur Cologne verfügt über ein modernes Sicherheitskonzept mit Videoüberwachung und Keyless-Schließsystem. Aus der objekteigenen Tiefgarage, wo zusätzlich ein Fahrradkeller vorhanden ist, gelangen Sie unmittelbar auf Ihre Etage. Die Kaltmiete beträgt 20 €/m² bei Mietbeginn bis spätestens 31.03.2026 mit einer Mindestmietdauer von einem Jahr.
Verfügbare Fläche
Lage und Verkehrsanbindung
Das Landmark Gebäude, Coeur Cologne, befindet sich in bester Citylage, direkt am Hauptbahnhof, im aufstrebenden Kunibertsviertel. Für den Standort haben sich schon diverse renommierte Unternehmen wie beispielsweise HRS, das Institut der deutschen Wirtschaft Köln, PwC oder EASA entschieden. Im Herzen der City profitieren Ihre Mitarbeiter von der berühmten Vielfalt und Lebendigkeit der Stadt Köln und ihrem reichen Angebot an Kultur, Freizeit, Genuss und Einkaufen. Dienstleister des täglichen Bedarfs befinden sich in der Nähe.
Ihr Kontakt

Alexandra Zimmermann
Ihr Kontakt
























