Büros
ID K1860Büroimmobilie - Köln, Altstadt-Nord - K1860
Altstadt-Nord, 50667, Köln, Nordrhein-Westfalen
Provisionspflichtig: bei Anmietung 3 Netto-Monatsmieten zzgl. gesetzlicher Umsatzsteuer.** der Wert kann je nach Vertragslaufzeit variieren.
Kontaktieren Sie uns für den Preis
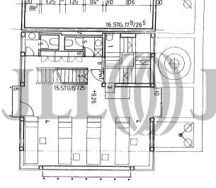
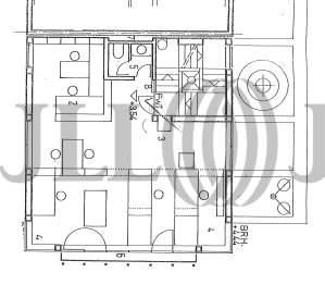
- Fläche398 m²
- VerfügbarkeitSofort
- Objekt
- Ausstattung
- Lage und Verkehrsanbindung
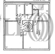
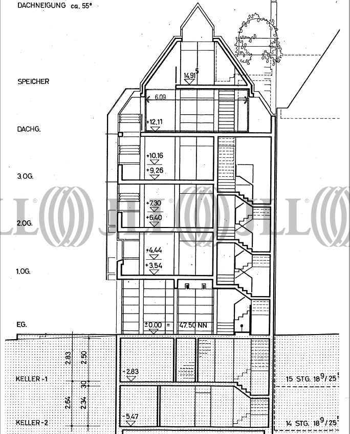
- Grundrisse
- Exposé herunterladen
- Ihr Kontakt
- Anfrage senden
Objekt
Das Objekt befindet sich in exzellenter Innenstadtlage im Herzen der Kölner Altstadt. Die unmittelbare Nähe zu bedeutenden städtischen Landmarks wie dem Alter Markt, dem Heumarkt und dem historischen Rathaus positioniert das Objekt in einem zentralen Bereich Kölns.
Das Umfeld ist geprägt von einer vielfältigen Nutzungsmischung hochwertiger gastronomischer Betriebe, etablierter Einzelhandelsgeschäfte, Büronutzern verschiedener Branchen sowie Geschäften des täglichen Bedarfs. Diese lebendige Mischung trägt maßgeblich zur Attraktivität und Bekanntheit des Standortes bei. Sämtliche Flächen sind nur als Gesamteinheit anmietbar, was eine durchgängige Arbeitsplatzgestaltung und effiziente Raumnutzung ermöglicht.
Dieses Objekt steht auch zum Verkauf.
Das Umfeld ist geprägt von einer vielfältigen Nutzungsmischung hochwertiger gastronomischer Betriebe, etablierter Einzelhandelsgeschäfte, Büronutzern verschiedener Branchen sowie Geschäften des täglichen Bedarfs. Diese lebendige Mischung trägt maßgeblich zur Attraktivität und Bekanntheit des Standortes bei. Sämtliche Flächen sind nur als Gesamteinheit anmietbar, was eine durchgängige Arbeitsplatzgestaltung und effiziente Raumnutzung ermöglicht.
Dieses Objekt steht auch zum Verkauf.
Zertifizierungen
Energieausweis
Für diese Liegenschaft liegt ein Verbrauchsausweis vom 2020-06-17 vom Eigentümer/Vermieter vor. Der wesentliche Energieträger der Liegenschaft ist Fernwärme. Der Endenergieverbrauch Strom beträgt 26.40 kWh/(m²*a). Der Endenergieverbrauch Wärme beträgt 289.90 kWh/(m²*a).Verfügbare Fläche
Lage und Verkehrsanbindung
Die exponierte Lage an der Ostseite des großen Platzes bietet eine hohe Sichtbarkeit und Werbewirksamkeit. Die hervorragende Verkehrsanbindung durch den öffentlichen Personennah- und Fernverkehr sowie die fußläufige Erreichbarkeit verschiedener Parkhäuser innerhalb weniger Minuten gewährleisten eine optimale Erreichbarkeit. Dienstleister des täglichen Bedarfs befinden sich in unmittelbarer Nähe und runden das attraktive Standortprofil ab.
- Flughafen, Köln/Bonn, Fahrzeit: 18 min
- Bundesautobahn, A 3, Fahrzeit: 12 min
- Bundesautobahn, A 4, Fahrzeit: 14 min
- Bus, Bushaltestelle Heumarkt Buslinien 106, 132, 133, 250, 260, 978, Gehzeit: 4 min
- S-Bahn, Station Heumarkt, Gehzeit: 4 min
Ihr Kontakt

Julius Heid
Ihr Kontakt








