Büros
ID K1857Provisionsfrei
Büroimmobilie - Köln, Neustadt-Süd - K1857
Neustadt-Süd, 50677, Köln, Nordrhein-Westfalen
14 € / m²
- Fläche334 m²
- VerfügbarkeitSofort
- Objekt
- Ausstattung
- Lage und Verkehrsanbindung
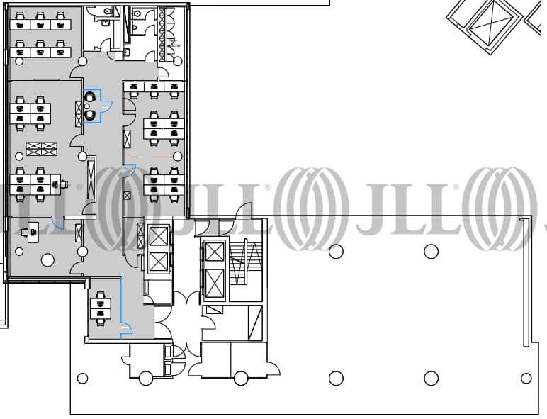
- Grundriss
- Exposé herunterladen
- Ihr Kontakt
- Anfrage senden
Objekt
Das im Jahr 1956 nach Entwürfen des Architekten Ernst Nolte erbaute Gebäude fungiert heute als Mischnutzungsobjekt mit Büroeinheiten und gewerblichen Flächen im Erdgeschoss.
Die denkmalgeschützte Fassade wurde 2023 einer umfangreichen Sanierung und Modernisierung unterzogen, wobei sämtliche Fensterelemente erneuert wurden.
Das markante Eckgebäude liegt direkt am Barbarossaplatz – einem zentralen Knotenpunkt Kölns. Die Gebäudestruktur bietet moderne Büroflächen in mehreren Obergeschossen, optional teilbar und geeignet für Einzel- oder Doppelbüros plus Aufenthaltsbereiche.
Es handelt sich um eine befristete Untervermietung bis maximal Mai 2031.
Die denkmalgeschützte Fassade wurde 2023 einer umfangreichen Sanierung und Modernisierung unterzogen, wobei sämtliche Fensterelemente erneuert wurden.
Das markante Eckgebäude liegt direkt am Barbarossaplatz – einem zentralen Knotenpunkt Kölns. Die Gebäudestruktur bietet moderne Büroflächen in mehreren Obergeschossen, optional teilbar und geeignet für Einzel- oder Doppelbüros plus Aufenthaltsbereiche.
Es handelt sich um eine befristete Untervermietung bis maximal Mai 2031.
Verfügbare Fläche
Lage und Verkehrsanbindung
Das Objekt befindet sich in zentraler Lage direkt am Barbarossaplatz, einem der wichtigsten Verkehrsknotenpunkte Kölns. Von hier aus sind die Kölner Ringe, die Südstadt sowie die Innenstadt in wenigen Minuten erreichbar. Das direkte Umfeld zeichnet sich durch eine lebendige Infrastruktur aus: Zahlreiche Restaurants, Cafés und Einkaufsmöglichkeiten liegen fußläufig entfernt. Banken, Ärzte und Dienstleister aller Art sind ebenfalls in unmittelbarer Nähe angesiedelt.
Ihr Kontakt

Angela Azzarito
Ihr Kontakt










