Büros
ID K1842Provisionsfrei
Büroimmobilie - Köln, Altstadt-Nord - K1842
Altstadt-Nord, 50668, Köln, Nordrhein-Westfalen
26 € / m²
- Fläche235 - 848 m²
- VerfügbarkeitSofort
- Objekt
- Lage und Verkehrsanbindung
- Grundrisse
- Exposé herunterladen
- Ihr Kontakt
- Anfrage senden
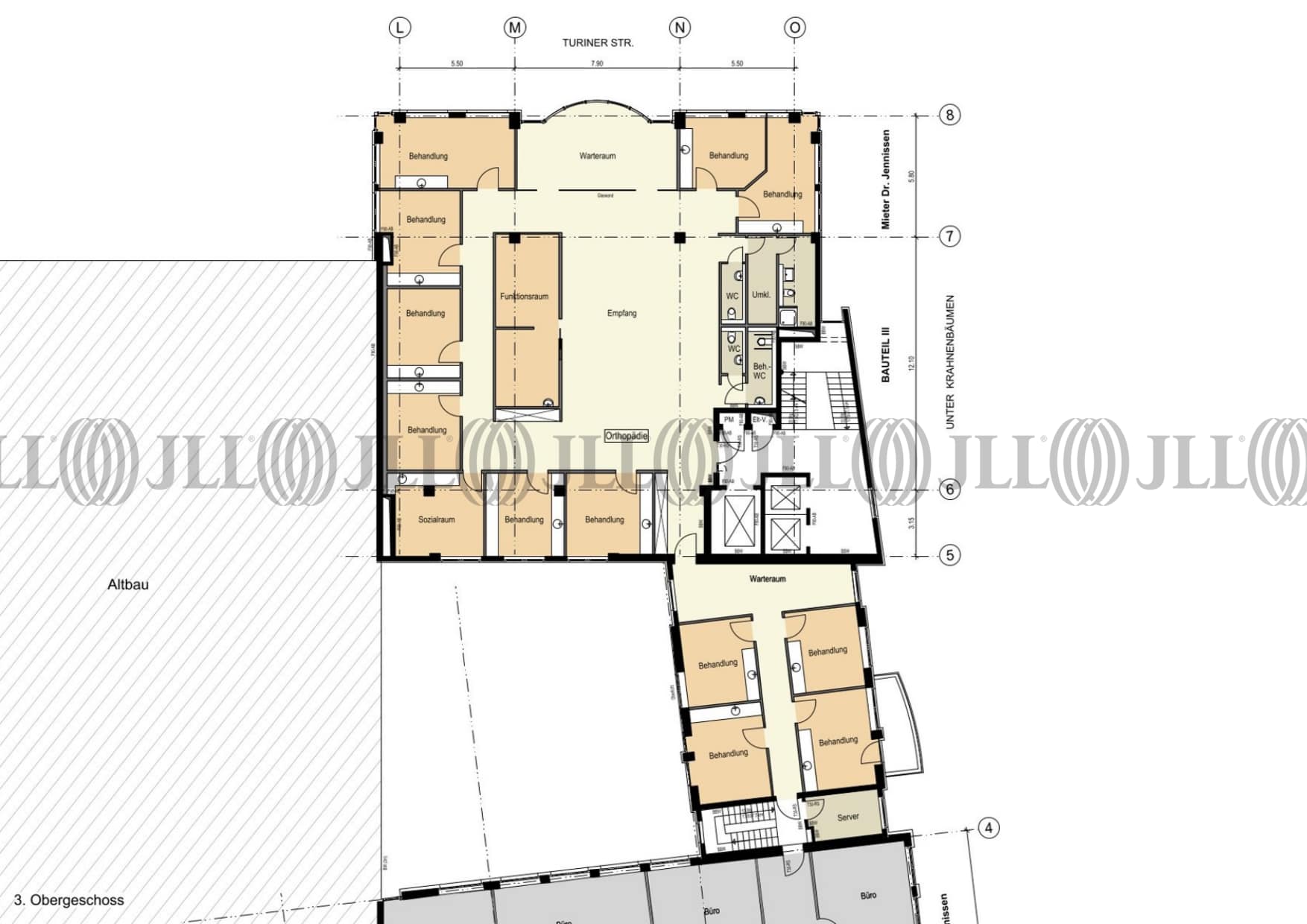
Objekt
Das Gebäude besteht aus zwei Gebäudebereichen, die insgesamt 7.764 m² umfassen. Der erste Bereich erstreckt sich über sieben Stockwerke (1. UG bis 5. OG), während der zweite Bereich aus vier Stockwerken sowie einer Tiefgarage in den ersten und zweiten Untergeschossen besteht. Das Gebäude verfügt über insgesamt 106 Stellplätze und einen Innenhof. Öffentliche Parkhäuser befinden sich in direkter Nachbarschaft. Die Immobilie bietet somit optimale Bedingungen für eine gezielte medizinische Versorgung. Die Eigentümerin plant, bis Mitte 2026 umfangreiche Umbaumaßnahmen durchzuführen, um das Gebäude nicht nur brandschutztechnisch zu ertüchtigen, sondern auch die Gemeinschaftsflächen zu modernisieren. Diese Maßnahmen beinhalten unter anderem eine Dachflächen- und Fassadensanierung.
Verfügbare Fläche
Lage und Verkehrsanbindung
Der Teilmarkt Köln City verfügt über eine ausgezeichnete Verkehrsanbindung. Er ist leicht mit öffentlichen Verkehrsmitteln zu erreichen, da sich hier der Hauptbahnhof Köln befindet, einer der größten Bahnhöfe in Deutschland. Zudem gibt es eine Vielzahl von Bus- und Straßenbahnlinien, die den Teilmarkt mit anderen Teilen der Stadt verbinden. Für Autofahrer gibt es in der Umgebung mehrere Parkhäuser, die bequem zu erreichen sind. Die Autobahn A1 und A3 liegen in unmittelbarer Nähe, was eine gute Anbindung an das überregionale Straßennetz ermöglicht. Die verkehrsgünstige Lage des Teilmarktes Köln City macht ihn zu einem attraktiven und gut erreichbaren Ziel für Besucher aus der ganzen Stadt und darüber hinaus.
- Hauptbahnhof, Köln, Fahrzeit: 4 min
- Straßenbahn/Tram, Breslauer Platz / Hbf 14, 16, 18, Gehzeit: 7 min
- Bus, Breslauer Platz / Hbf 124, 132, 133, 260, 978, Gehzeit: 7 min
- Bundesautobahn, A 559, Fahrzeit: 11 min
- Bundesautobahn, A 4, Fahrzeit: 11 min
- Flughafen, Köln / Bonn, Fahrzeit: 17 min
Ihr Kontakt

Maximilian Olivier
Ihr Kontakt



