Büros
ID K1809Büroimmobilie - Köln, Ehrenfeld - K1809
Ehrenfeld, 50933, Köln, Nordrhein-Westfalen
Provisionspflichtig: bei Anmietung 3 Netto-Monatsmieten zzgl. gesetzlicher Umsatzsteuer.** der Wert kann je nach Vertragslaufzeit variieren.
7 € / m²
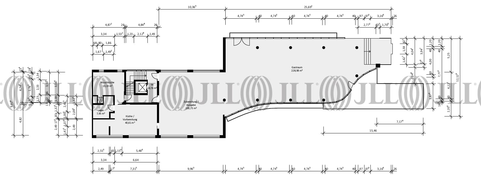
- Fläche480 m²
- VerfügbarkeitSofort
- Ausstattung
- Lage und Verkehrsanbindung
- Grundriss
- Exposé herunterladen
- Ihr Kontakt
- Anfrage senden
Verfügbare Fläche
Lage und Verkehrsanbindung
Das Objekt befindet sich in Kölner Stadtteil Braunsfeld und verfügt aufgrund der Nähe zur Aachener Straße, als Hauptausfallstraße im Kölner Westen, über eine gute Anbindung sowohl in die Innenstadt als auch zum Autobahnnetz. Auch bietet die Aachener Straße und der angrenzende Stadtteil Ehrenfeld eine gute Infrastruktur. Gastronomie, Hotels, Geschäfte des täglichen Bedarfs sind fußläufig zu erreichen. In direkter Nachbarschaft haben sich viele Unternehmen, insbesondere dem Dienstleistungsbereich, angesiedelt.
- Flughafen, Köln/Bonn, Fahrzeit: 24 min
- Bundesautobahn, A 1, Fahrzeit: 5 min
- Bundesautobahn, A 4, Fahrzeit: 9 min
- Hauptbahnhof, Köln, Fahrzeit: 14 min
- Bahnhof, Müngersdorf Technologiepark S12, S19, Gehzeit: 13 min
- Bus, Eupener Straße 172, Gehzeit: 7 min
- Straßenbahn/Tram, Eupener Straße 1, Gehzeit: 7 min
Ihr Kontakt

Maximilian Olivier
Ihr Kontakt











