Büros
ID K1796Büroimmobilie - Köln, Ossendorf - K1796
Ossendorf, 50829, Köln, Nordrhein-Westfalen
Provisionspflichtig: bei Anmietung 3 Netto-Monatsmieten zzgl. gesetzlicher Umsatzsteuer.** der Wert kann je nach Vertragslaufzeit variieren.
Kontaktieren Sie uns für den Preis
- Fläche2.600 - 31.798 m²
- VerfügbarkeitII quartal 2027
- Objekt
- Ausstattung
- Lage und Verkehrsanbindung
- Grundrisse
- Exposé herunterladen
- Ihr Kontakt
- Anfrage senden
Objekt
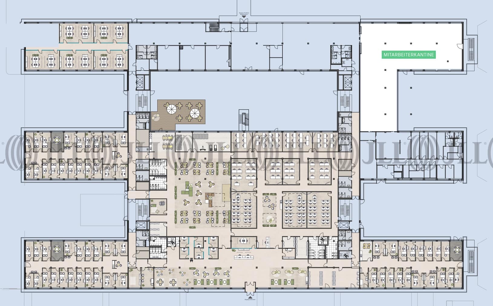
Der fünfgeschossige Bürokomplex besteht aus drei Gebäuderiegeln, welche durch Querriegel miteinander verbunden sind. Im Erdgeschoss befindet sich eine große Kantine, ein begehbarer Innenhof, sowie eine Anlieferung für LKW´s. Im Untergeschoss befinden sich die Tiefgaragenstellplätze sowie kleine Archivräume. Große Fensterfronten sorgen für viel Tageslichteinfall und eine angenehme Arbeitsatmosphäre. Die Büroflächen werden allen Ansprüchen an eine moderne Büronutzung gerecht. Das redundante Glasfasernetz sichert eine jederzeit konstante und schnelle Internetverbindung.
Zertifizierungen
Energieausweis
DGNB: GoldVerfügbare Fläche
Lage und Verkehrsanbindung
Das Objekt liegt im beliebten Medienstandort Butzweiler Hof, der sich als gefragter Bürostandort etabliert hat. Hier haben sich neben bekannten Film- und TV- Produktionsgesellschaften zahlreiche namhafte Unternehmen aus den unterschiedlichsten Branchen angesiedelt. Das Objekt liegt in der Nähe des Autobahnkreuzes Köln-Nord, somit in unmittelbarer Nähe zum Kölner Autobahnring. Über die Stadtautobahn A 57 erreicht man schnell das Kölner Stadtzentrum. Das Stadtteilzentrum von Bickendorf mit seinem reichhaltigen Angebot an Geschäften und Gastronomien liegt nur wenige Minuten entfernt. Eine Tankstelle befindet sich in der Nähe. Dienstleister des täglichen Bedarfs befinden sich in der Nähe.
- Hauptbahnhof, Hauptbahnhof, Fahrzeit: 16 min
- Straßenbahn/Tram, Sparkasse am Butzweilerhof Linie 5, Gehzeit: 2 min
- Bus, Sparkasse am Butzweilerhof Linie 139, Gehzeit: 2 min
- Bundesautobahn, A 3, Fahrzeit: 11 min
- Bundesautobahn, A 1, Fahrzeit: 2 min
- Flughafen, Köln/Bonn, Fahrzeit: 25 min
Ihr Kontakt

Alexandra Zimmermann
Ihr Kontakt






