Büros
ID K1793Büroimmobilie - Köln, Ossendorf - K1793
Ossendorf, 50829, Köln, Nordrhein-Westfalen
Provisionspflichtig: bei Anmietung 3 Netto-Monatsmieten zzgl. gesetzlicher Umsatzsteuer.** der Wert kann je nach Vertragslaufzeit variieren.
21,50 € / m²
- Fläche2.830 - 15.130 m²
- VerfügbarkeitIV quartal 2029
- Objekt
- Ausstattung
- Lage und Verkehrsanbindung
- Grundrisse
- Exposé herunterladen
- Ihr Kontakt
- Anfrage senden
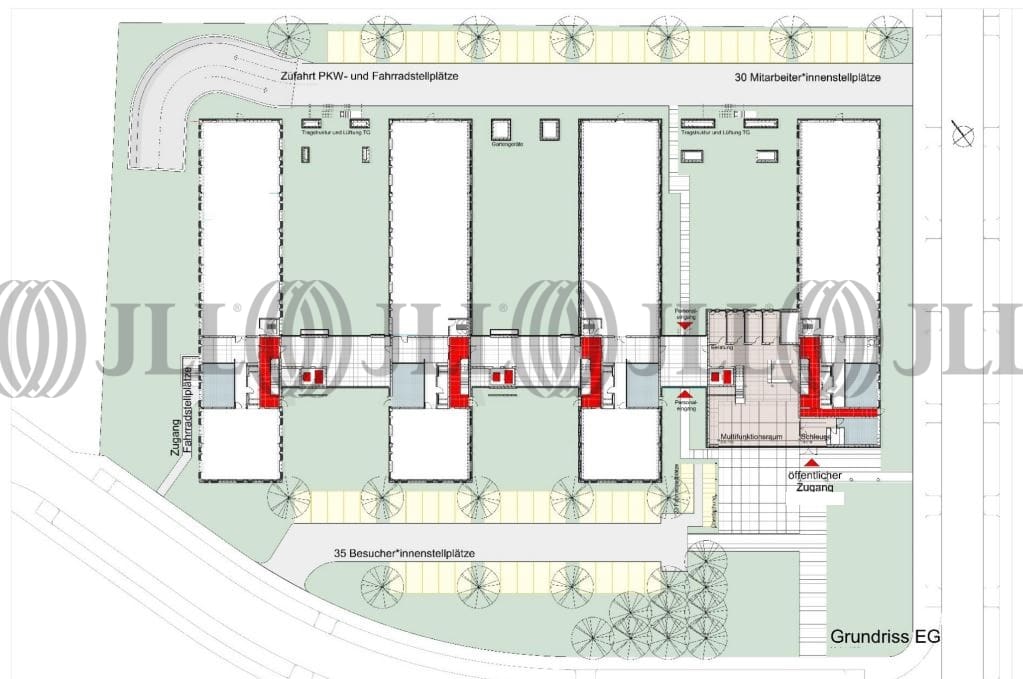
Objekt
Auf dem ehemaligen Flughafengelände Butzweilerhof entsteht in den kommenden Monaten eine fünfgeschossige, hochwertige Büroimmobilie in Form zweier H-Bauten. Es gibt mehrere Eingangsmöglichkeiten, die je nach Bedarf als Haupt- oder Nebeneingang definiert werden können. In jedem Fall verfügen alle über einen Personenaufzug. Durch die modular ähnliche Bauweise lassen sich sämtliche Büronutzungsformen darstellen, wie Einzel-, Doppelbüros, oder auch ganz offene Bereiche. Die Etagen verfügen über kleine Terrassenflächen, welche zum Verweilen einladen, sowie begrünte Dächer.
Zertifizierungen
Energieausweis
DGNB: GoldVerfügbare Fläche
Lage und Verkehrsanbindung
Der Neubau befindet sich an zentraler Stelle im Medien- und Bürostandort Köln-Ossendorf. Der Standort verfügt über eine herausragende Akzeptanz bei renommierten Unternehmen, über eine attraktive Nahversorgung und eine hervorragende Verkehrsinfrastruktur. Ihre Nachbarn sind z. B. Rimowa, QSC, Sparkasse KölnBonn, NetCologne, Akzo Nobel.
- S-Bahn, Longerich, Linien S6, S11, Fahrzeit: 6 min
- Straßenbahn/Tram, IKEA am Butzweilerhof, Linie 5, Gehzeit: 2 min
- Bus, Sparkasse am Butzweilerhof, Linie 139, Gehzeit: 4 min
- Bundesautobahn, A1, Fahrzeit: 5 min
- Bundesautobahn, A57, Fahrzeit: 5 min
- Flughafen, Köln/Bonn, Fahrzeit: 25 min
Ihr Kontakt

Michael Kusen
Ihr Kontakt










