Büros
ID K1758Provisionsfrei
Aktualisiert
Büroimmobilie - Köln, Neustadt-Süd - K1758
Neustadt-Süd, 50674, Köln, Nordrhein-Westfalen
18,50 € / m²
- Fläche430 m²
- Verfügbarkeit2 Monate ab Vertragsunterzeichnung
- Objekt
- Ausstattung
- Lage und Verkehrsanbindung
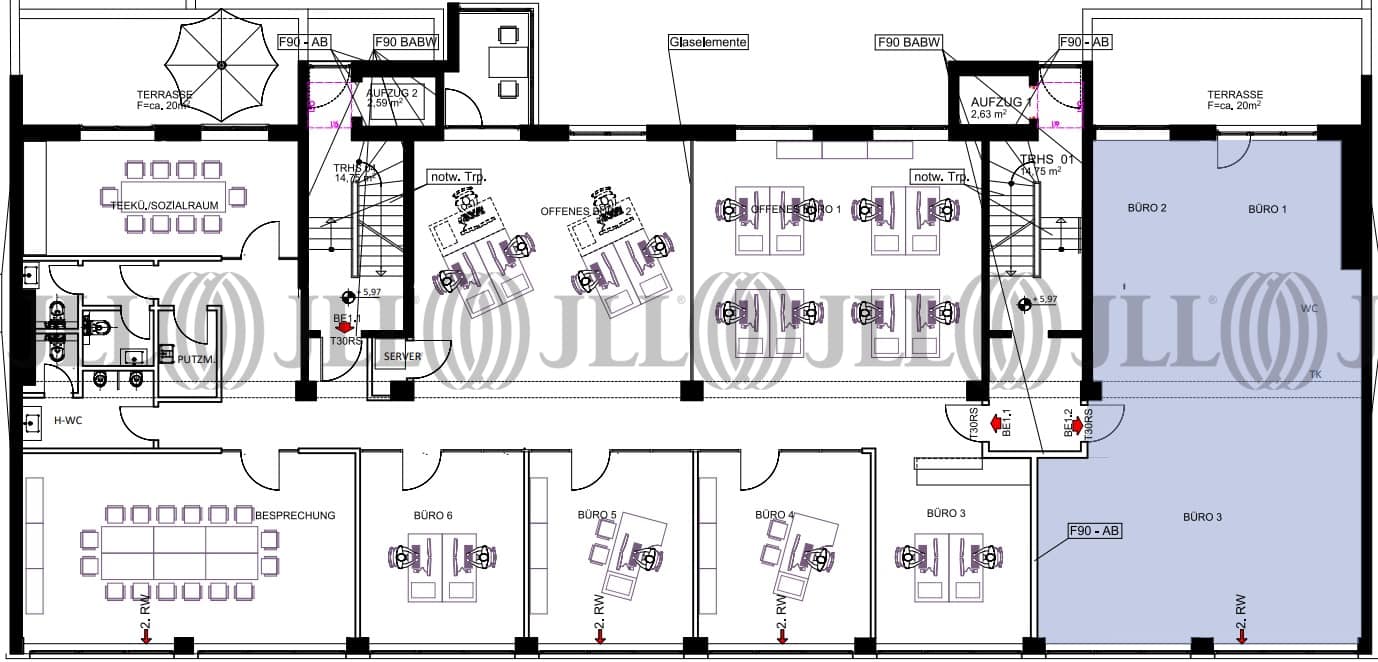
- Grundriss
- Exposé herunterladen
- Ihr Kontakt
- Anfrage senden
Objekt
Das Wohn- und Geschäftshaus wurde im Jahr 1958/1964 erbaut und wird derzeit umfassend saniert, um das Gebäude auf den neuesten Standard zu bringen. Nach Abschluss der Sanierung stehen Ihnen frisch renovierte Flächen zur Verfügung. Diese bieten ein modernes und ansprechendes Design, das den aktuellen Anforderungen an Funktionalität und Ästhetik gerecht wird. Das Haus verfügt über eine hauseigene Tiefgarage für Sie und Ihre Kunden. Ebenfalls verfügt das Haus über 2 Zugänge und 2 Terrassen.
Zertifizierungen
Energieausweis
Für diese Liegenschaft liegt ein Bedarfsausweis vom 29.04.2014 vom Eigentümer/Vermieter vor. Die wesentlichen Energieträger der Liegenschaft sind Erdgas schwer, Strom. Endenergiebedarf: 198 kWh/(m²*a)Verfügbare Fläche
Lage und Verkehrsanbindung
Die angebotene Bürofläche befindet sich in ausgezeichneter Lage am Hohenstaufenring in Köln. Das Objekt profitiert von seiner zentralen Position in der Innenstadt. Der Hohenstaufenring ist eine der bedeutendsten Geschäftsstraßen Kölns und bietet eine exzellente Verbindung zu den wichtigsten Verkehrsadern der Stadt. Die Anbindung an den öffentlichen Nahverkehr ist ebenfalls hervorragend. In unmittelbarer Umgebung befinden sich mehrere Bus- und Straßenbahnhaltestellen, die eine schnelle Anbindung an den Hauptbahnhof und andere Stadtteile ermöglichen. Die Umgebung zeichnet sich durch eine Vielzahl von Unternehmen, Einkaufsmöglichkeiten, Restaurants und Cafés aus. In direkter Nachbarschaft befinden sich renommierte Geschäfte, Banken, Anwaltskanzleien und weitere Bürogebäude. Dadurch entsteht eine lebendige und pulsierende Atmosphäre.
- Flughafen, Köln/Bonn, Fahrzeit: 17 min
- Bundesautobahn, A4, Fahrzeit: 13 min
- Hauptbahnhof, Köln, Fahrzeit: 7 min
- Straßenbahn/Tram, Zülpicher Platz 9, 12, 15, 19, Gehzeit: 1 min
- Bus, Barbarossaplatz 978, Gehzeit: 5 min
- Bundesautobahn, A 57, Fahrzeit: 10 min
Ihr Kontakt

Maximilian Olivier
Ihr Kontakt







