Büros
ID K1737Büroimmobilie - Bonn, Plittersdorf - K1737
Plittersdorf, 53175, Bonn, Nordrhein-Westfalen
Provisionspflichtig: bei Anmietung 3 Netto-Monatsmieten zzgl. gesetzlicher Umsatzsteuer.** der Wert kann je nach Vertragslaufzeit variieren.
12 € / m²
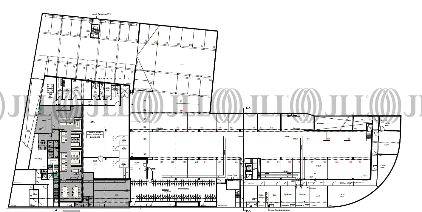
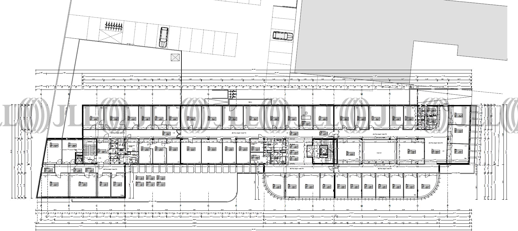
- Fläche184 - 3.388 m²
- VerfügbarkeitAuf Anfrage
- Objekt
- Ausstattung
- Lage und Verkehrsanbindung
- Grundrisse
- Exposé herunterladen
- Ihr Kontakt
- Anfrage senden
Objekt
Das 1973 erbaute Bürogebäude wurde 2022 saniert. Die hellen und kommunikativen Büroflächen verteilen sich über das 1. OG bis zum 4. OG und bieten somit eine optimale Raumnutzung. Im Untergeschoss befinden sich ausreichend PKW- und Fahrradstellplätze für die Mitarbeiter. Jede Etage verfügt zudem über zwei Serverräume, die eine effiziente IT-Infrastruktur ermöglichen. Eine Glasfaseranbindung ist ebenfalls möglich, um eine schnelle und zuverlässige Internetverbindung zu gewährleisten.
Verfügbare Fläche
Lage und Verkehrsanbindung
Das Objekt befindet sich im Stadtteil Bonn-Plittersdorf bei Bad Godesberg. Fahrzeiten zu: Anschlussstelle Bonn-Zentrum (A 562) ca. 3 Fahrminuten Anschlussstelle Bonn Hardtberg (A 565) ca. 12 Fahrminuten Anschlussstelle Bonn Pützchen (A 59) ca. 12 Fahrminuten Dreieck Bonn-Beuel (A 59 / A 565) ca. 15 Fahrminuten Kreuz Bonn-Nord (A565 / A555) ca. 17 Fahrminuten Innenstadt Bad-Godesberg ca. 3 Fahrminuten Innenstadt Bonn ca. 8 Fahrminuten Eine Tankstelle befindet sich in der Nähe.
- Bus, Bushaltestelle Bad Godesberg Plittersdorf Mitte Buslinien 610, 611, 637, 638, N3, N10, Gehzeit: 1 min
- Flughafen, Köln/Bonn Airport, Fahrzeit: 25 min
- Bundesautobahn, A9, Fahrzeit: 5 min
Ihr Kontakt

Bartosz Olszewski
Ihr Kontakt











