Büros
ID K1693Provisionsfrei
Büroimmobilie - Bad Honnef - K1693
53604, Bad Honnef, Nordrhein-Westfalen
13 € / m²
- Fläche206 - 2.358 m²
- VerfügbarkeitSofort
- Objekt
- Ausstattung
- Lage und Verkehrsanbindung
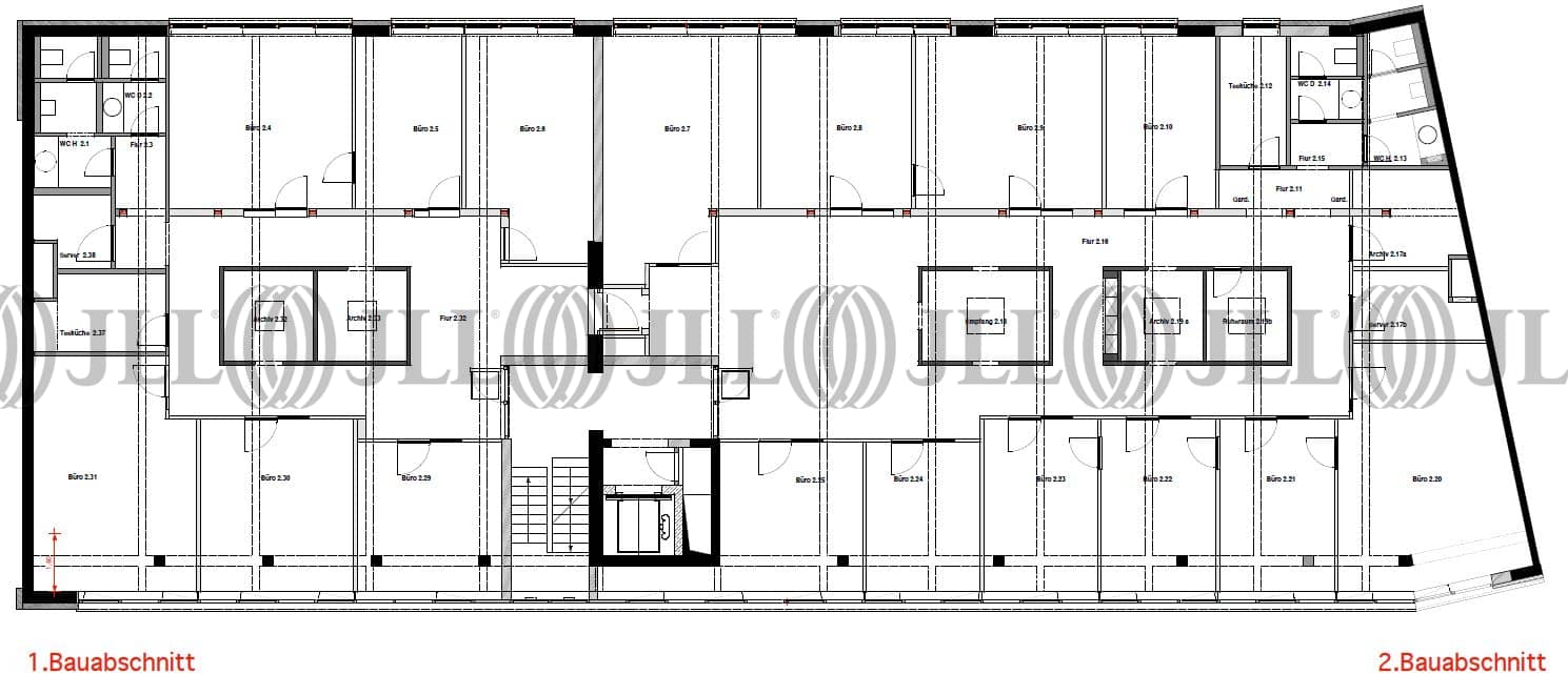
- Grundrisse
- Exposé herunterladen
- Ihr Kontakt
- Anfrage senden
Objekt
Das im Jahr 2002 aufwendig kernsanierte Palettenlager der Firma Penaten ist zu einem modernen Bürogebäude umgebaut worden. Eine Aufteilung der Flächen in Einzel-/ Doppelbüros und Open-Space Flächen ist durch die ideale Gebäudetiefe sehr gut umsetzbar. Die offenen Büroflächen bestechen durch ihre große Funktionalität und die hochwertige Ausstattung, die der Vermieter gerne nach Mieterwunsch anpasst. Auf der großzügigen Dachterrasse im Staffelgeschoss hat man einen ausgezeichneten Blick auf den Drachenfels.
Verfügbare Fläche
Lage und Verkehrsanbindung
Der Honnefer-Business-Park liegt auf dem ehemaligen Penaten Gelände im Norden von Bad Honnef. Hier entsteht die neue Ortsmitte von Rhöndorf mit Miet- und Eigentumswohnungen, Bürogebäuden und Einkaufsmöglichkeiten. Westlich ist der Rhein gelegen der in wenigen Gehminuten erreichbar ist. Eine Tankstelle befindet sich in der Nähe. Dienstleister des täglichen Bedarfs befinden sich in der Nähe.
- Flughafen, Köln/Bonn, Fahrzeit: 26 min
- Bundesautobahn, A 59, Fahrzeit: 12 min
- Bundesautobahn, A 3, Fahrzeit: 20 min
- Bahnhof, Rhöndorf Bf RB27, RE8, Fahrzeit: 3 min
- Bus, Rhöndorfer Straße 565, Gehzeit: 2 min
Ihr Kontakt

Bartosz Olszewski
Ihr Kontakt
















