Büros
ID K1677Provisionsfrei
Büroimmobilie - Köln, Braunsfeld - K1677
Braunsfeld, 50933, Köln, Nordrhein-Westfalen
15,50 € / m²
- Fläche208 - 739 m²
- VerfügbarkeitAuf Anfrage
- Objekt
- Ausstattung
- Lage und Verkehrsanbindung
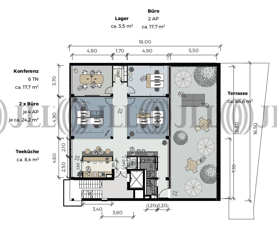
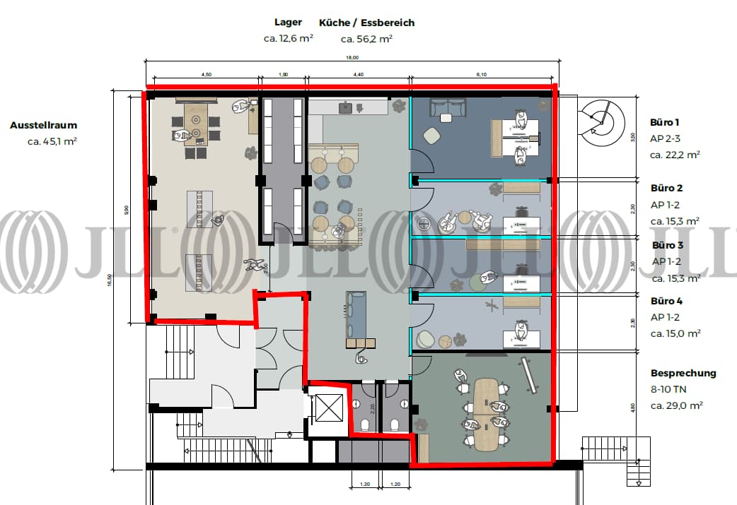
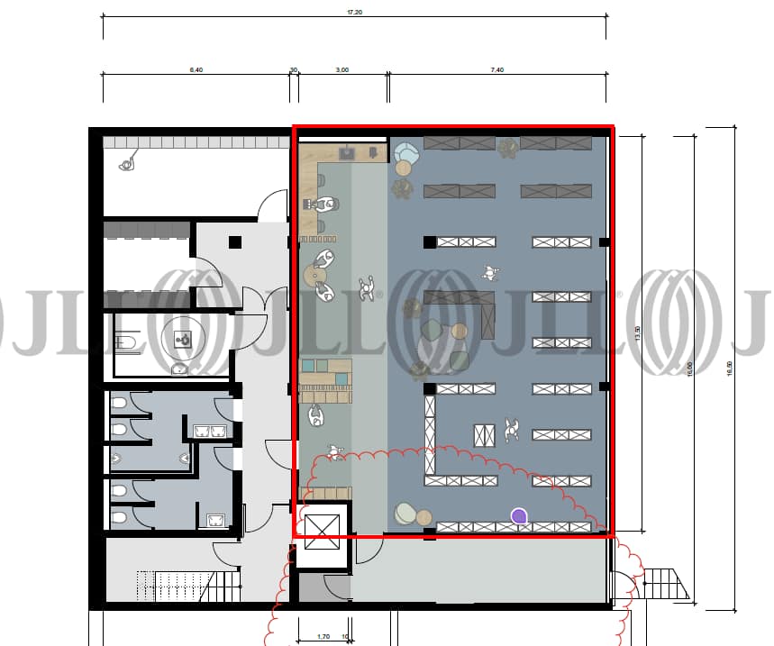
- Grundrisse
- Exposé herunterladen
- Ihr Kontakt
- Anfrage senden
Objekt
Das in den 80er Jahren erbaute Areal auf dem Technologiezentrum Köln wird zum CO-Campus. Der Campus umfasst mehrere Gebäude, die revitalisiert werden und Raum für Bürokonzepte, Werkstätten und Gastronomie schaffen. Es werden Entfaltungsmöglichkeiten für ein Vielfaches an unterschiedlichen Unternehmen geboten. Die Büroflächen passen sich den Vorstellungen einer modernen Arbeitswelt an. Der Campus bietet maximale Flexibilität. Die großzügigen Büroflächen bieten vielfältige Gestaltungsmöglichkeiten. Der Ausbau sowie die Raumaufteilung der einzelnen Mietflächen ist individuell an den Mieter anpassbar.
Verfügbare Fläche
Lage und Verkehrsanbindung
Die Liegenschaft befindet sich im westlichen Stadtteil von Köln-Braunsfeld und ist Teil vom Technologiepark Köln. Das umliegende Autobahnnetz ist über die A1, A4 und B59 erreichbar. Die S-Bahnhaltestelle ist in wenigen Gehminuten erreichbar. Der Dom und der Hauptbahnhof sind nur zwei Haltestellen entfernt gelegen. Dienstleister des täglichen Bedarfs befinden sich in der Nähe.
- Hauptbahnhof, Köln Hbf, Fahrzeit: 12 min
- Bus, Bushaltestelle Josef-Lammerting-Allee Buslinien 140, 141, Gehzeit: 5 min
- Bundesautobahn, A 1, Fahrzeit: 9 min
- Bundesautobahn, A 4, Fahrzeit: 12 min
- Flughafen, Köln/Bonn, Fahrzeit: 25 min
Ihr Kontakt

Julius Heid
Ihr Kontakt




