Büros
ID K1611Provisionsfrei
Büroimmobilie - Köln, Mülheim - K1611
Mülheim, 51063, Köln, Nordrhein-Westfalen
27,50 € / m²
- Fläche850 - 7.265 m²
- VerfügbarkeitIII quartal 2027
- Objekt
- Lage und Verkehrsanbindung
- Grundrisse
- Exposé herunterladen
- Ihr Kontakt
- Anfrage senden
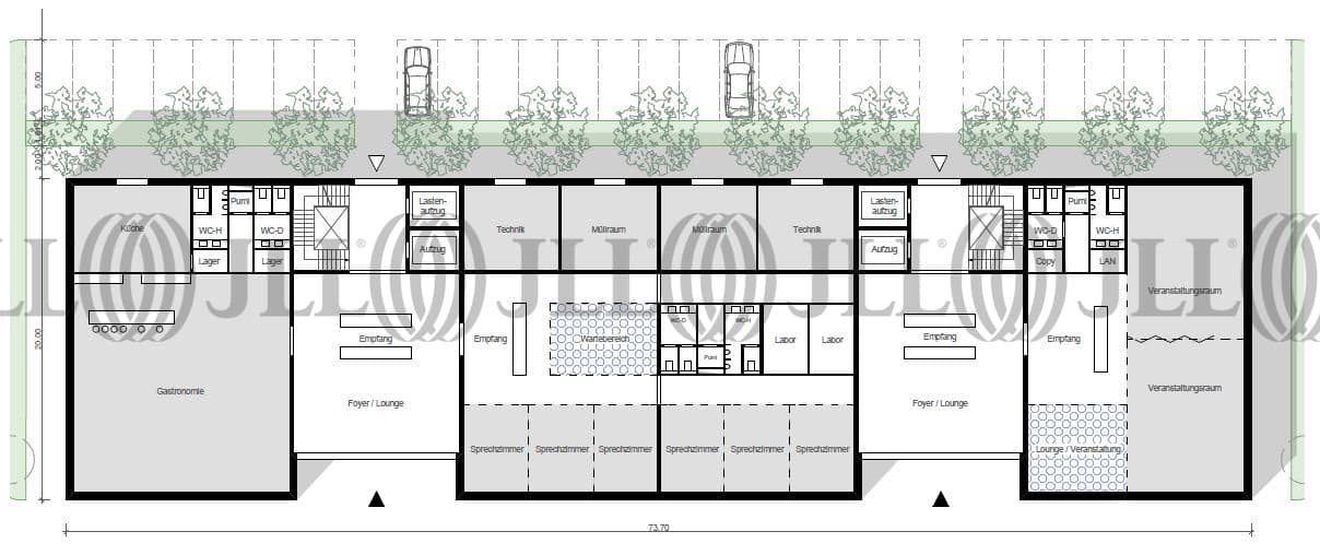
Objekt
Das Carlswerk in der Schanzenstraße verfügt in vielseitigen Quartieren über hochwertige Lofts in historischem Industrie-Ambiente, flexible Büroräume in maßgeschneiderten Dimensionen sowie große industrielle Hallen- und Lagerflächen für Gewerbe, Dienstleistung und Produktion. Bei diesem Objekt handelt es sich um einen geplanten Neubau, der in enger Kundenabsprache zu hochwertigen Büroflächen entwickelt wird, ohne dabei den industriellen Charakter zu zerstören. Zur Zeit basieren die nachfolgenden Informationen auf ersten Studien. Art, Umfang und Ausstattungsmerkmale können sich im Laufe des Planungsprozesses noch verändern.
Verfügbare Fläche
Lage und Verkehrsanbindung
Das einzigartige Areal im Köln-Mülheimer Schanzenviertel hat seinen Ursprung im Jahre 1874, als Felten & Guilleaume mit der Produktion von Kabeln auf dem Gelände begonnen haben. Die charmanten Gebäude wurden nun zu Büro-, Loft-, Service-, Lager- und Produktionsflächen umgebaut. Der Standort bietet eine rasche Anbindung an den ÖPNV und den Individualverkehr. Zahlreiche namhafte Anmietungen (Brainpool, wunderman GmbH, Verlagsgruppe Bastei Lübbe uvm.) durch Firmen verschiedenster Branchen bereichern die Vielfalt des innerstädtischen Gewerbecampus. Das Palladium und das E-Werk tragen, neben weiteren Locations, als Veranstaltungsorte für Konzerte und andere Events zur kulturellen Stärkung des Quartiers bei.
- Flughafen, Köln/Bonn, Fahrzeit: 12 min
- Bundesautobahn, A 3, Fahrzeit: 1 min
- Bundesautobahn, A 4, Fahrzeit: 2 min
Ihr Kontakt

Michael Kusen
Ihr Kontakt



