Büros
ID K1564Provisionsfrei
Büroimmobilie - Köln, Ossendorf - K1564
Ossendorf, 50827, Köln, Nordrhein-Westfalen
Kontaktieren Sie uns für den Preis
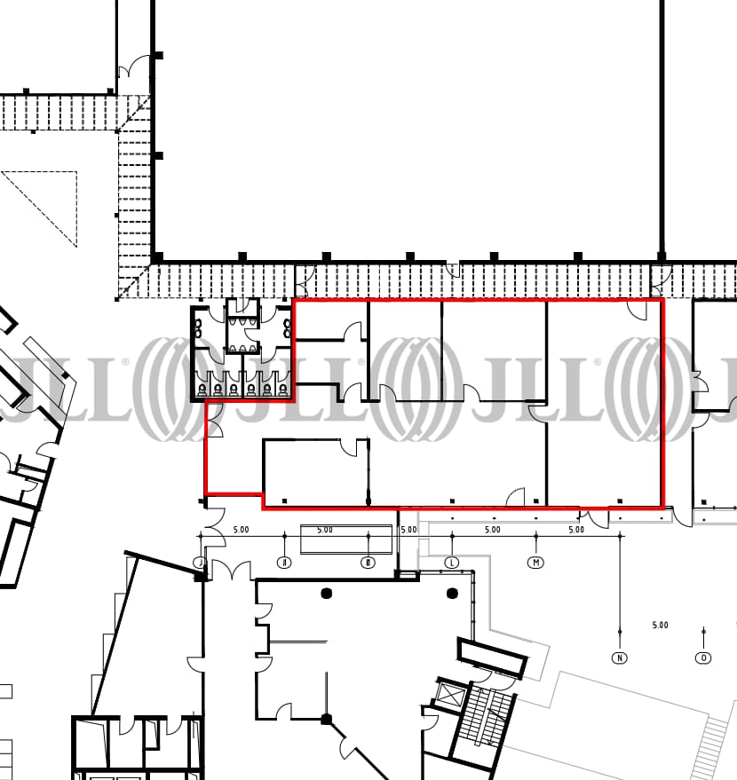
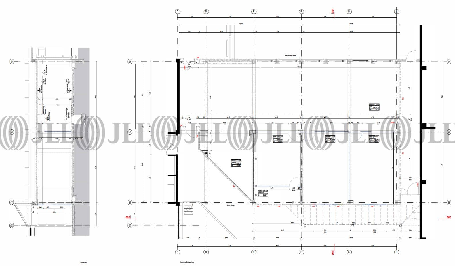
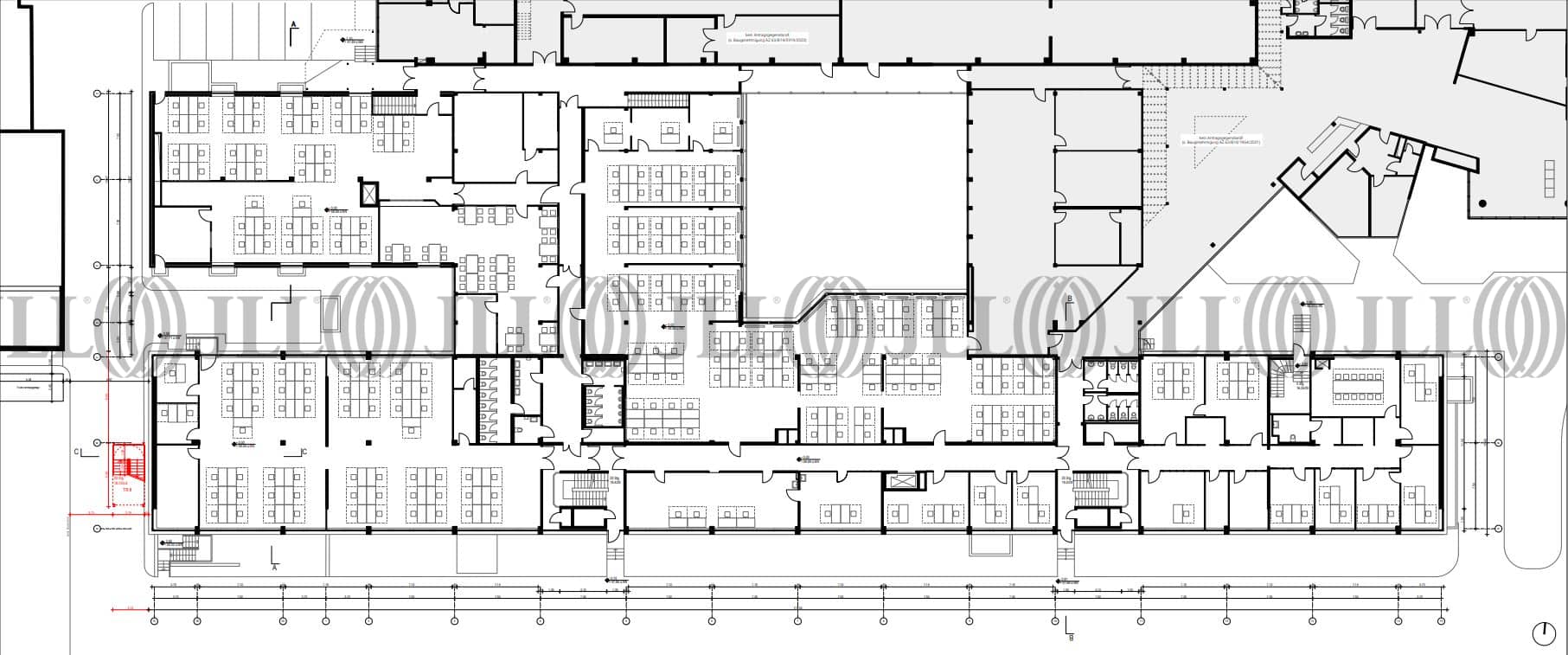
- Fläche309 - 5.302 m²
- VerfügbarkeitSofort
- Objekt
- Ausstattung
- Lage und Verkehrsanbindung
- Grundrisse
- Exposé herunterladen
- Ihr Kontakt
- Anfrage senden
Objekt
Das OTC - Ossendorf Technologie Center befindet sich auf einem abgezäunten Gelände mit drei Zufahrten. Um das Gebäude befinden sich großzügige Grünflächen und Wasseranlagen. Im Innenhof ist ein japanischer Garten mit Teich und Zulauf angelegt. Das Objekt verfügt über einen großzügigen, repräsentativen Haupteingang inkl. besetztem Empfang. Im Anschluss an das Foyer befindet sich eine Cafeteria / Kantine. Es gibt einen Hausmeisterservice für alle Mieter. Im Erdgeschoss befinden sich Konferenzräume zur kostenlosen Nutzung. Die Büroflächen werden in Abstimmung mit dem neuen Mieter als offene Loft-Büros gestaltet.
Zertifizierungen
Energieausweis
Für diese Liegenschaft liegt ein Verbrauchsausweis vom 19.03.2021 vom Eigentümer/Vermieter vor. Der wesentliche Energieträger der Liegenschaft ist Erdgas schwer. Der Endenergieverbrauch Strom beträgt 96.00 kWh/(m²*a). Der Endenergieverbrauch Wärme beträgt 148.00 kWh/(m²*a).Verfügbare Fläche
Lage und Verkehrsanbindung
Das Objekt liegt im Kölner Norden im Stadtteil Ossendorf. In der Nähe des Autobahnkreuzes Köln-Nord und somit nah am Kölner Autobahnring gelegen, erreicht man über die Stadtautobahn A 57 schnell und bequem das Kölner Stadtzentrum. Das Stadtteilzentrum von Bickendorf mit seinem reichhaltigen Angebot an Geschäften und Gastronomie liegt nur wenige Minuten entfernt.
- Flughafen, Köln/ Bonn, Fahrzeit: 20 min
- Bahnhof, Kölnmesse, Fahrzeit: 13 min
- Hauptbahnhof, Friesenplatz, Fahrzeit: 3 min
Ihr Kontakt

Bartosz Olszewski
Ihr Kontakt









