Büros
ID K1540Büroimmobilie - Köln, Altstadt-Nord - K1540
Altstadt-Nord, 50667, Köln, Nordrhein-Westfalen
Provisionspflichtig: bei Anmietung 3 Netto-Monatsmieten zzgl. gesetzlicher Umsatzsteuer.** der Wert kann je nach Vertragslaufzeit variieren.
18,50 € / m²
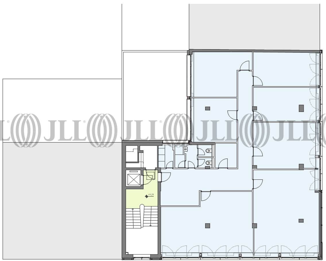
- Fläche258 m²
- Verfügbarkeit01.12.2025
- Objekt
- Ausstattung
- Lage und Verkehrsanbindung
- Grundriss
- Exposé herunterladen
- Ihr Kontakt
- Anfrage senden
Objekt
Das Objekt wurde im Jahre 1960 errichtet und zuletzt 2014 modernisiert. Mit Hilfe der perfekten Lage weiß das Objekt zu überzeugen. Qualitativ und technisch wurden die Freiflächen durch Modernisierungsmaßnahmen an den heutigen Standard angepasst. Durch flexible Gestaltungs- und Aufteilungsmöglichkeiten, werden dem potentiellen Mieter individuelle Eigenkreationen ermöglicht.
Verfügbare Fläche
Lage und Verkehrsanbindung
Die Liegenschaft befindet sich mitten im Herzen der Kölner Innenstadt. In unmittelbarer Nähe befindet sich die Schildergasse, Europas meist frequentierte Einkaufsstraße. Zahlreiche Einkaufsmöglichkeiten und Dienstleister des täglichen Bedarfs befinden sich direkt am Objekt. Zwischen Apellhofplatz und Neumarkt gelegen, bietet die Lage eine rasche Anbindung an den ÖPNV. Darüber hinaus sind die Autobahnen A57, A1 und A3 in nur wenigen Minuten Fahrzeit zu erreichen.
- Flughafen, Köln/Bonn, Fahrzeit: 16 min
- Bundesautobahn, A 57, Fahrzeit: 6 min
- Bundesautobahn, A 1, Fahrzeit: 10 min
- Hauptbahnhof, Köln, Fahrzeit: 5 min
- Straßenbahn/Tram, Neumarkt 1, 3, 4, 7, 9, 14, 16, 18, Gehzeit: 5 min
- Bus, Neumarkt 136, 146, Gehzeit: 5 min
Ihr Kontakt

Hendrik Helmers
Ihr Kontakt






