Büros
ID K1521Aktualisiert
Büroimmobilie - Köln, Westhoven - K1521
Westhoven, 51149, Köln, Nordrhein-Westfalen
Provisionspflichtig: bei Anmietung 3 Netto-Monatsmieten zzgl. gesetzlicher Umsatzsteuer.** der Wert kann je nach Vertragslaufzeit variieren.
14,90 € / m²
- Fläche203 - 2.517 m²
- VerfügbarkeitAuf Anfrage
- Objekt
- Ausstattung
- Lage und Verkehrsanbindung
- Grundrisse
- Exposé herunterladen
- Ihr Kontakt
- Anfrage senden
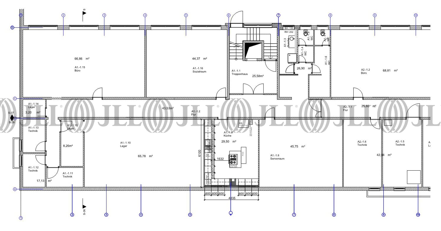
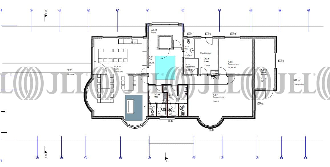
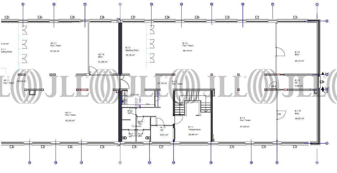
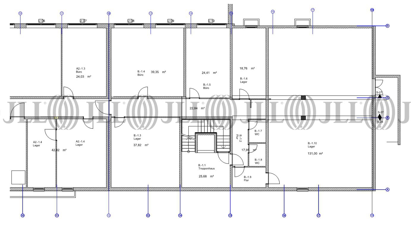
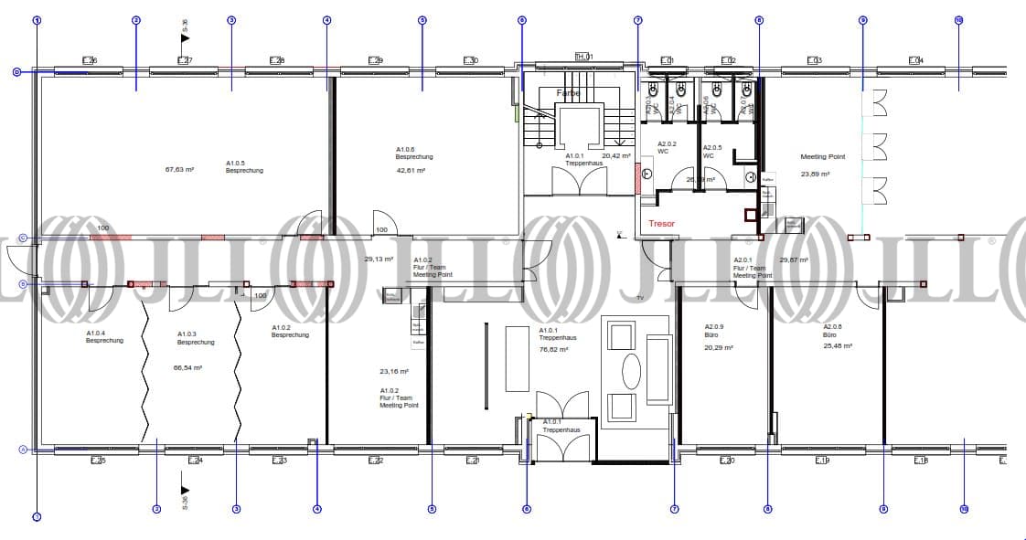
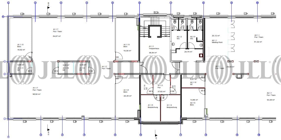
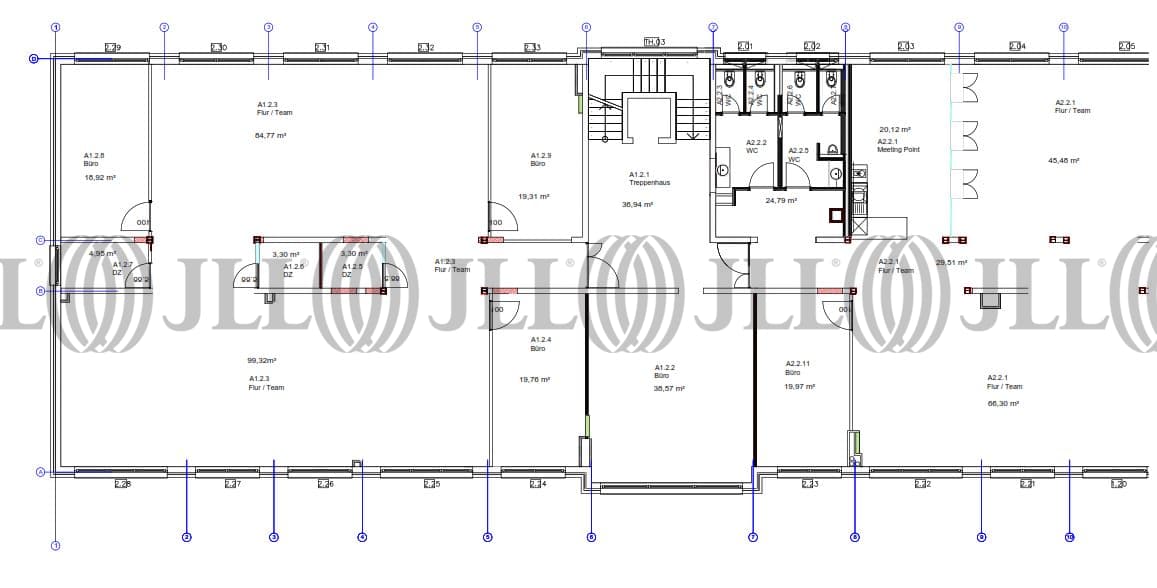
Objekt
Die beiden Gebäudeeingänge können vom hauseigenen Parkplatz betreten werden. Die Flächen sind über einen Aufzug oder zu Fuß über ein eigenes Treppenhaus zu erreichen. Das Gebäude verfügt über zwei Obergeschosse, welche einen annähernd identischen Grundriss aufweisen sowie ein Staffelgeschoss. Von diesem gelangt man auf den großzügigen und sehr gepflegten Dachgarten. Zusätzlich zu den Büroflächen verfügt das Objekt über verschiedene Besprechungsräume und Austauschzonen.
Zertifizierungen
Energieausweis
Für diese Liegenschaft liegt ein Verbrauchsausweis vom 27.02.2020 vom Eigentümer/Vermieter vor. Der wesentliche Energieträger der Liegenschaft ist Erdgas schwer. Der Endenergieverbrauch Strom beträgt 71.10 kWh/(m²*a). Der Endenergieverbrauch Wärme beträgt 66.60 kWh/(m²*a).Verfügbare Fläche
Lage und Verkehrsanbindung
Das Bürogebäude liegt im rechtsrheinischen Stadtteil Westhoven. Sowohl die Kölner Innenstadt als auch der Flughafen Köln/Bonn ist schnell mit dem Auto zu erreichen. Die nächste Bahnstation ist in fußläufiger Entfernung. In unmittelbarer Nachbarschaft befindet sich ein Supermarkt sowie eine attraktive Bürohauskantine, die genutzt werden darf. Eine Tankstelle befindet sich in der Nähe.
- Hauptbahnhof, Köln Hbf, Fahrzeit: 16 min
- Straßenbahn/Tram, Berliner Straße 7, Gehzeit: 8 min
- Bundesautobahn, A 4, Fahrzeit: 4 min
- Bundesautobahn, A 3, Fahrzeit: 7 min
- Flughafen, Köln/Bonn, Fahrzeit: 12 min
Ihr Kontakt

Julius Heid
Ihr Kontakt









