Büros
ID K1513Büroimmobilie - Bonn, Endenich - K1513
Endenich, 53121, Bonn, Nordrhein-Westfalen
Provisionspflichtig: bei Anmietung 3 Netto-Monatsmieten zzgl. gesetzlicher Umsatzsteuer.** der Wert kann je nach Vertragslaufzeit variieren.
Kontaktieren Sie uns für den Preis
- Fläche282 - 14.628 m²
- VerfügbarkeitII quartal 2027
- Objekt
- Ausstattung
- Lage und Verkehrsanbindung
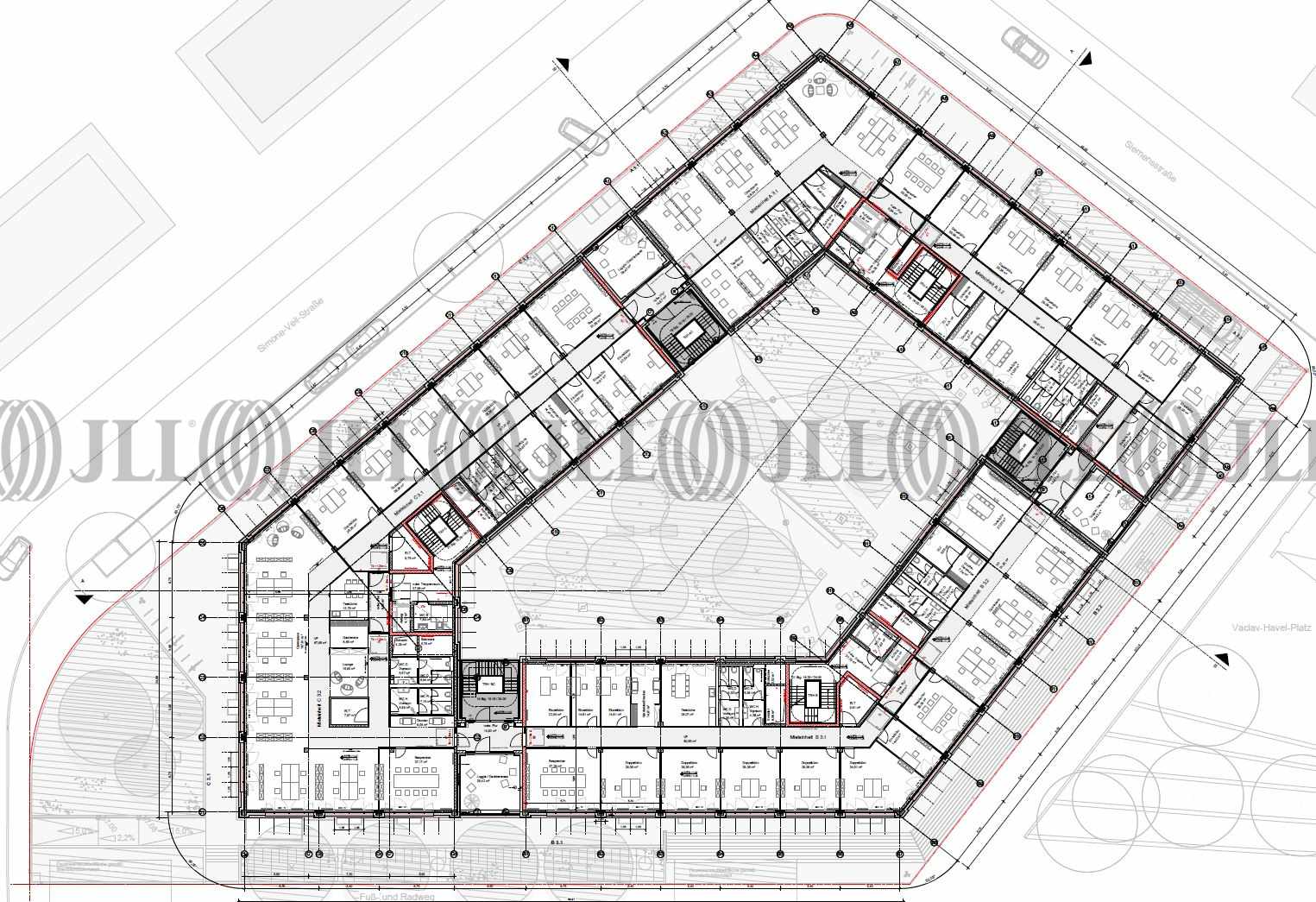
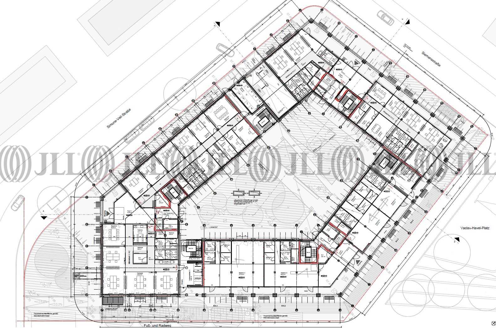
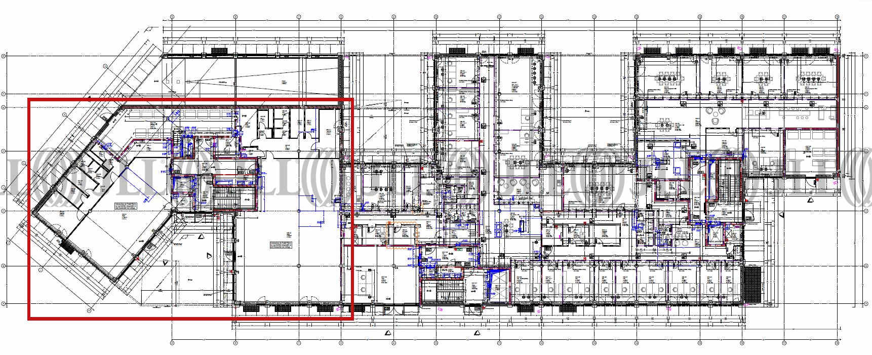
- Grundrisse
- Exposé herunterladen
- Ihr Kontakt
- Anfrage senden
Objekt
Das West.Side in Bonn ist in vielerlei Hinsicht ein besonderes Projekt. Die teilweise revitalisiert, teilweise neu gebauten Gewerbeeinheiten entstehen auf fünft Baufeldern und weisen einen unterschiedlichen Architektonischen Charakter auf. Eindrucksvolle Bestandsgebäude verschmelzen mit Neubauten, die von der Industriearchitektur inspiriert wurden.
Stellplätze sind wie folgt verfügbar:
Baufeld GE 1 - 2-4 Stellplätze
Baufeld GE 2 - 72 Parkhaus-Stellplätze
Baufeld GE 4 / MI 1 - 42 Tiefgaragen-Stellplätze & 55 Parkhaus-Stellplätze
Stellplätze sind wie folgt verfügbar:
Baufeld GE 1 - 2-4 Stellplätze
Baufeld GE 2 - 72 Parkhaus-Stellplätze
Baufeld GE 4 / MI 1 - 42 Tiefgaragen-Stellplätze & 55 Parkhaus-Stellplätze
Zertifizierungen
Energieausweis
DGNB: GoldVerfügbare Fläche
Lage und Verkehrsanbindung
Der Bürocampus befindet sich in einer guten Lage in Bonn- Endenich. Die Nähe zu den umliegenden Autobahnen und die schnelle Erreichbarkeit regionaler und überregionaler Ziele sowie des Bonner Zentrums zeichnen diesen Standort aus. Der Anschluss an Bus- und Bahnhaltestellen ist fußläufig in wenigen Minuten zu erreichen.
- Hauptbahnhof, Bonn, Fahrzeit: 2 min
- Bus, Bonn Probsthof Nord, Linie 632, Gehzeit: 4 min
- Bundesautobahn, A 555, Fahrzeit: 5 min
- Bundesautobahn, A 565, Fahrzeit: 7 min
- Flughafen, Köln/Bonn, Fahrzeit: 20 min
Ihr Kontakt

Bartosz Olszewski
Ihr Kontakt




