Büros
ID K1512Aktualisiert
Büroimmobilie - Köln, Ossendorf - K1512
Ossendorf, 50829, Köln, Nordrhein-Westfalen
Provisionspflichtig: bei Anmietung 3 Netto-Monatsmieten zzgl. gesetzlicher Umsatzsteuer.** der Wert kann je nach Vertragslaufzeit variieren.
14,50 € / m²
- Fläche289 - 3.987 m²
- Verfügbarkeit2029
- Objekt
- Ausstattung
- Lage und Verkehrsanbindung
- Grundrisse
- Exposé herunterladen
- Ihr Kontakt
- Anfrage senden
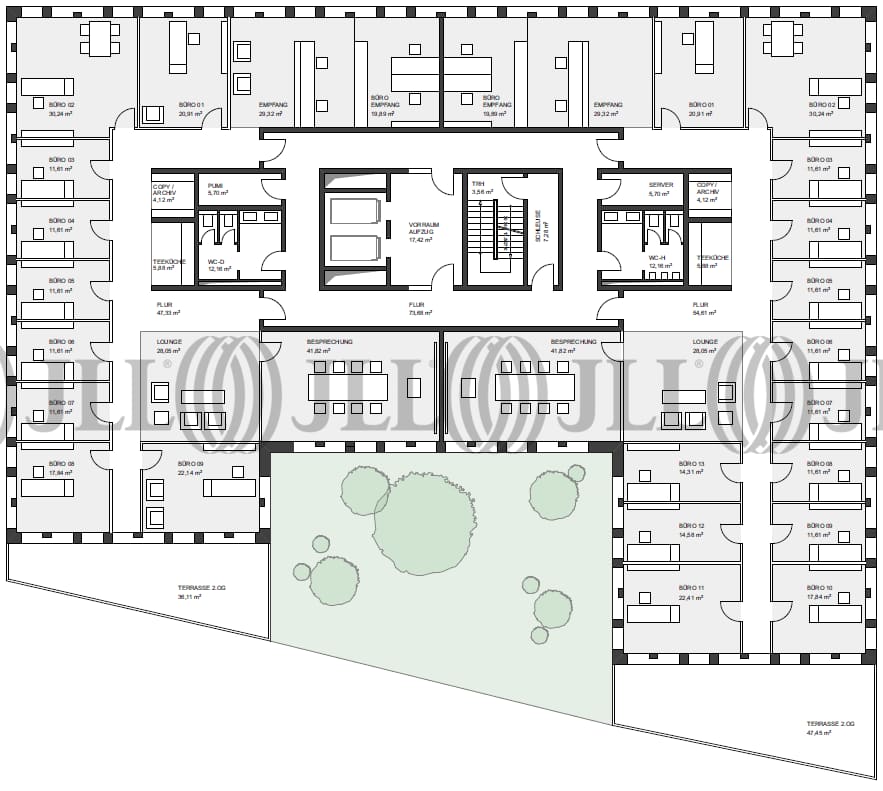
Objekt
Das modern und hochwertig ausgestattete Bürohaus wird über eine effiziente Raumaufteilung, optimale Tagesbelichtung und eine angenehme Arbeitsatmosphäre verfügen. Das Gebäude wird sich auf sechs Etagen erstrecken, welche jeweils mit einer ansprechenden Terrasse ausgestattet werden. Die Ausstattung der Räume kann nach Mieterwunsch individuell gestaltet werden. Das Gebäude eignet sich sehr gut für die Alleinnutzung durch ein größeres Unternehmen. Zudem sind ausreichend Stellplätze auf dem Gelände sowie in der objekteigenen Tiefgarage geplant.
Verfügbare Fläche
Lage und Verkehrsanbindung
Das Projekt befindet sich im linksrheinischen Stadtteil Ossendorf in unmittelbarer Nähe zum Autobahnring (A1 / A3 / A4) und der A 57 sowie zwei fußläufig erreichbare Straßenbahnhaltestellen. Die Lage bietet ein vielfältiges Angebot an unterschiedlichen Branchen im direkten Umfeld. Nur einige 100m entfernt liegt das Gewerbegebiet Ossendorf, wo viele unterschiedliche Projekte von Wohnen, über Büro, bis hin zu Einzelahndel und Industrie entstehen. Dienstleister des täglichen Bedarfs befinden sich in der Nähe.
- Bus, Bushaltestelle Gunther-Plüschow-Str. Buslinien 139, Gehzeit: 5 min
- Bundesautobahn, A 1, Fahrzeit: 5 min
- Bundesautobahn, A 57, Fahrzeit: 5 min
- Flughafen, Köln/Bonn, Fahrzeit: 30 min
Ihr Kontakt

Bartosz Olszewski
Ihr Kontakt


