Büros
ID K1506Provisionsfrei
Aktualisiert
Büroimmobilie - Köln, Marienburg - K1506
Marienburg, 50968, Köln, Nordrhein-Westfalen
21 € / m²
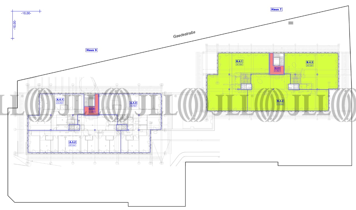
- Fläche261 - 5.470 m²
- VerfügbarkeitSofort
- Objekt
- Ausstattung
- Lage und Verkehrsanbindung
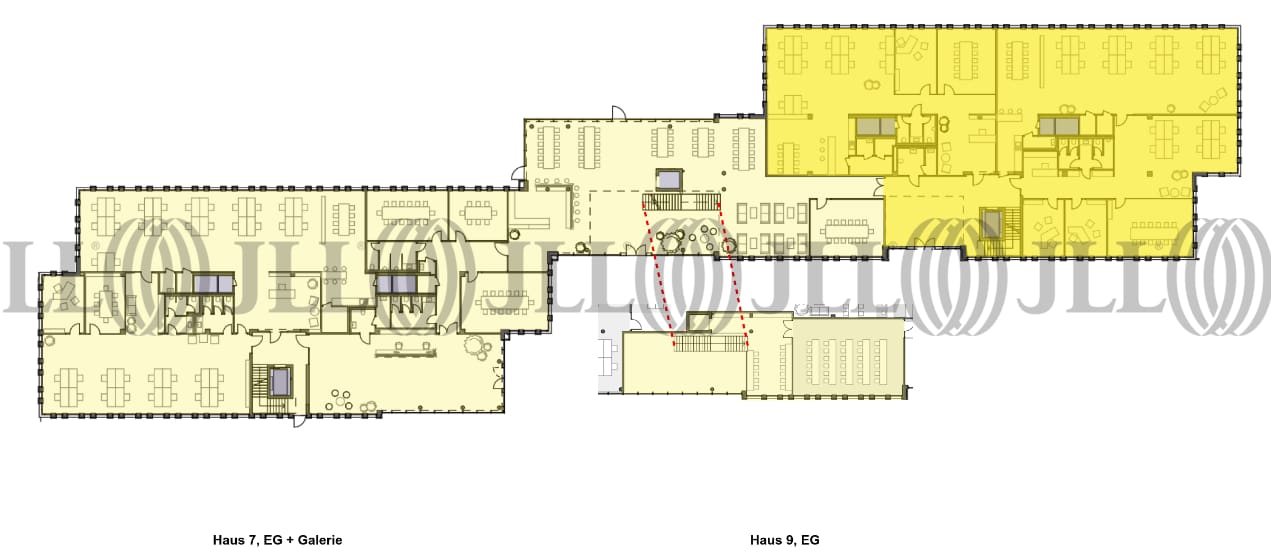
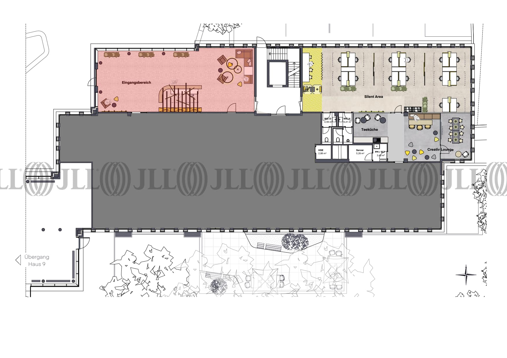
- Grundrisse
- Exposé herunterladen
- Ihr Kontakt
- Anfrage senden
Objekt
Die Reiterstaffel Offices bieten moderne Büroflächen in einem vollständig fertiggestellten Neubau. Der Ausbau der Flächen erfolgt flexibel nach Mieteranforderungen, sodass eine zeitnahe Bezugsfertigkeit direkt im Anschluss an den Ausbau gewährleistet ist. Die nahezu stützenfreien Grundrisse ermöglichen sowohl klassische Zellenbürostrukturen als auch offene Arbeitswelten mit hoher Arbeitsplatzdichte. Die technische Gebäudeausstattung entspricht modernsten Standards. Im ruhig gelegenen Hinterhof befindet sich ein offen gestalteter Gartenbereich, der eine angenehme Atmosphäre schafft und zum Austausch oder zur Erholung in den Pausen einlädt. Über das großzügige Entrée erfolgt der Zugang zu den einzelnen Etagen. Das Gebäude ist mit dem DGNB-Zertifikat in Platin ausgezeichnet und steht für eine nachhaltige Bauweise, hohe Energieeffizienz und langfristige Wirtschaftlichkeit.
Zertifizierungen
Energieausweis
DGNB: PlatinumVerfügbare Fläche
Lage und Verkehrsanbindung
Die Liegenschaft befindet sich im schönen Kölner Süden im Stadtteil Bayenthal. Viele Dienstleister des täglichen Bedarfs liegen in fußläufiger Entfernung. Darüber hinaus sind Bus- und Bahnhaltestellen in nächster Nähe zu erreichen. Der Standort im Kölner Süden ermöglicht ein schnelles Erreichen des Autobahnkreuzes Köln-Süd mit Autobahnanschluss an die Autobahnen A 4 und A 555. Eine Tankstelle befindet sich in der Nähe. Dienstleister des täglichen Bedarfs befinden sich in der Nähe.
- Hauptbahnhof, Köln, Gehzeit: 16 min
- Bus, Gaedestraße 132, Gehzeit: 5 min
- Bundesautobahn, A 555, Fahrzeit: 4 min
- Bundesautobahn, A 4, Fahrzeit: 5 min
- Flughafen, Köln/Bonn, Fahrzeit: 16 min
Ihr Kontakt

Alexandra Zimmermann
Ihr Kontakt









