Büros
ID K1474Aktualisiert
Büroimmobilie - Köln, Dellbrück - K1474
Dellbrück, 51069, Köln, Nordrhein-Westfalen
Provisionspflichtig: bei Anmietung 3 Netto-Monatsmieten zzgl. gesetzlicher Umsatzsteuer.** der Wert kann je nach Vertragslaufzeit variieren.
Kontaktieren Sie uns für den Preis
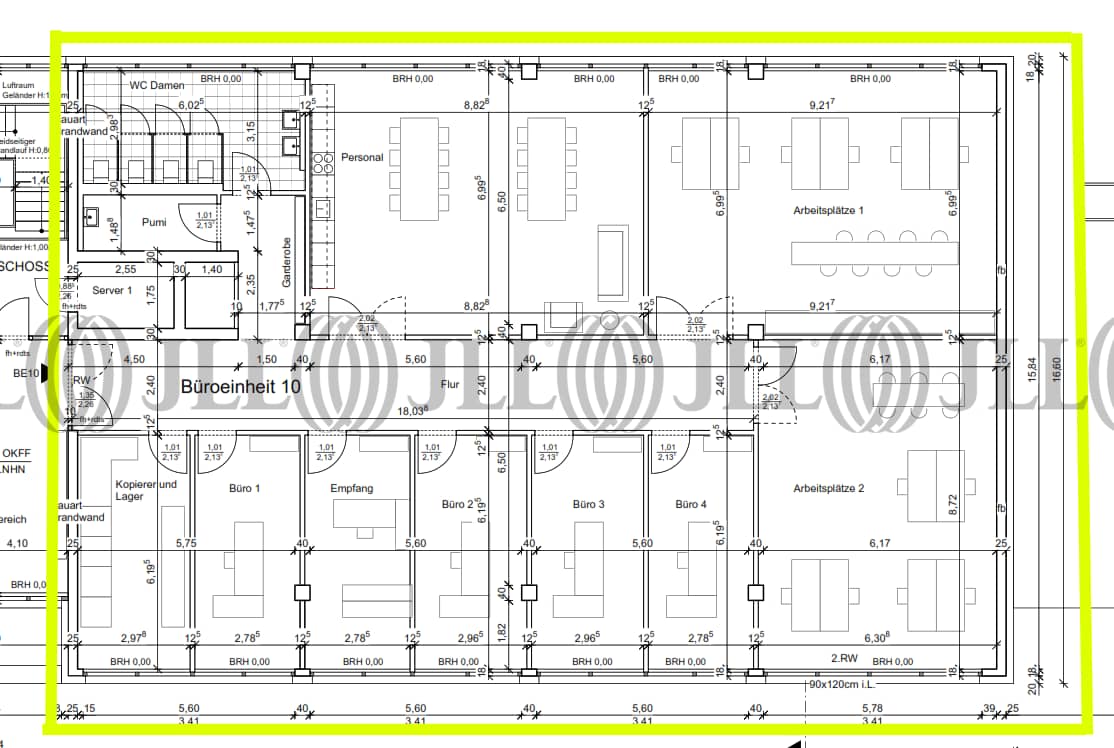
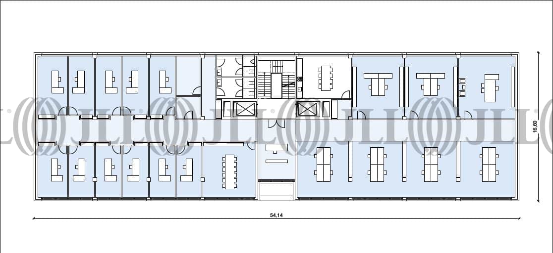
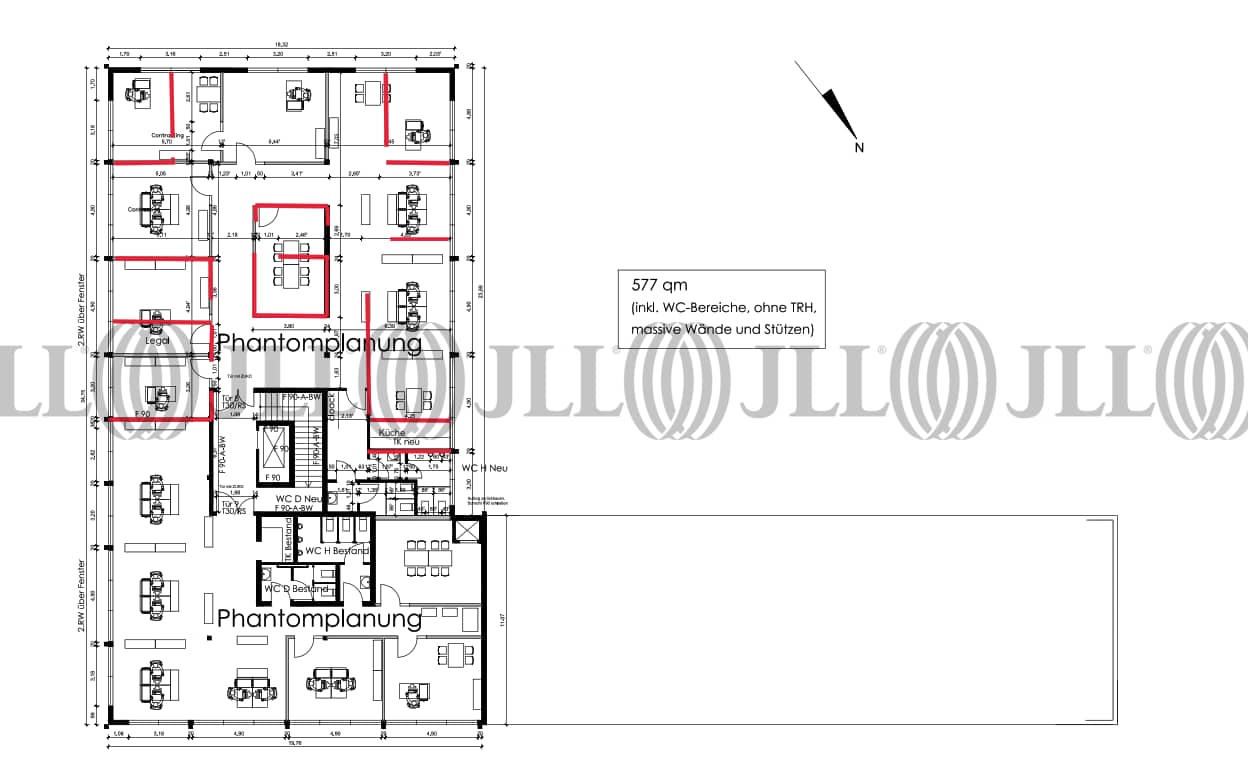
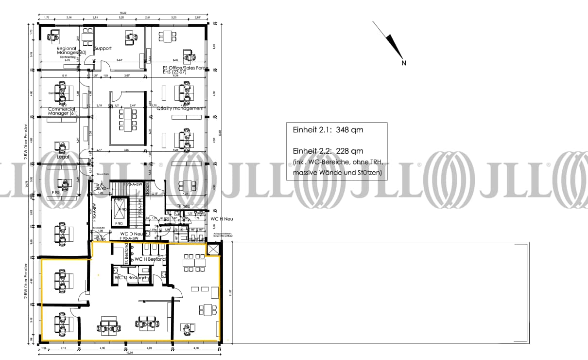
- Fläche282 - 9.879 m²
- VerfügbarkeitSofort
- Objekt
- Ausstattung
- Lage und Verkehrsanbindung
- Grundrisse
- Exposé herunterladen
- Ihr Kontakt
- Anfrage senden
Objekt
Das Areal liegt direkt an der Waltherstraße und erstreckt sich über mehrere Gebäude, die sowohl individuell als auch zusammen angemietet werden können. Die Gebäude bestehen aus denkmalgeschützten Altbauten und Neuentwicklungen. Man findet neben den Bürogebäuden und Industriehallen auf dem Areal auch ein Hotel, ein Seminar- und Schulungszentrum und viele gastronomischen Einrichtungen, welche den Mietern zur Verfügung stehen. Alle Flächen des Areals verfügen über eine moderne Ausstattung und werden optisch als auch technisch allen heutigen Anforderungen der Büronutzer gerecht. Die weitläufigen Grundstücksfreiflächen stehen als Stellplatzangebot zur Verfügung. Die Mieter können darüber hinaus die vorhandenen Ladestationen für PKWs nutzen.
Verfügbare Fläche
Lage und Verkehrsanbindung
Die Liegenschaft befindet sich im Kölner Stadtteil Dellbrück. Der Anschluss an den ÖPNV ist hervorragend. Der Standort gewährleistet zudem einen raschen Anschluss an die Kölner Innenstadt und die umliegenden Autobahnen. Zum Verweilen und Erholen lädt das direkt am Areal liegende Landschaftsschutzgebiet Thurner Wald ein. Der naheliegende Stadtkern von Dellbrück bietet zusätzliche gastronomische Einrichtungen, Dienstleistungen des alltäglichen Bedarfs und Einkaufsmöglichkeiten.
- Flughafen, Köln/Bonn, Fahrzeit: 20 min
- Bundesautobahn, A 3, Fahrzeit: 8 min
- Bundesautobahn, A 4, Fahrzeit: 10 min
- Hauptbahnhof, Köln, Fahrzeit: 22 min
- Bahnhof, Dellbrück S11, Gehzeit: 13 min
- Bus, Diepeschrather Straße 154, Gehzeit: 4 min
Ihr Kontakt

Bartosz Olszewski
Ihr Kontakt



