Büros
ID K1363Büroimmobilie - Bonn, Beuel-Ost - K1363
Beuel-Ost, 53227, Bonn, Nordrhein-Westfalen
Provisionspflichtig: bei Anmietung 3 Netto-Monatsmieten zzgl. gesetzlicher Umsatzsteuer.** der Wert kann je nach Vertragslaufzeit variieren.
Kontaktieren Sie uns für den Preis
- Fläche149 m²
- VerfügbarkeitAuf Anfrage
- Objekt
- Ausstattung
- Lage und Verkehrsanbindung
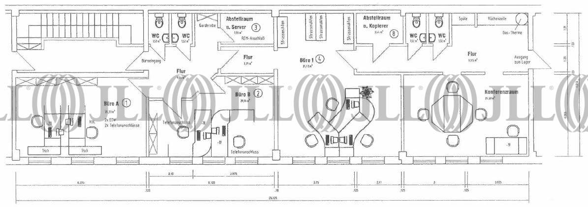
- Grundriss
- Exposé herunterladen
- Ihr Kontakt
- Anfrage senden
Objekt
Diese helle Bürofläche wurde umfassend renoviert und entspricht einem neuwertigen Zustand. Sie verfügt über zwei Eingänge und bietet somit eine flexible Nutzung. Das Objekt verfügt im Erdgeschoss über eine Lagerfläche (ca. 35 m²), die optional angemietet werden kann.
Verfügbare Fläche
Lage und Verkehrsanbindung
Das Objekt befindet sich im Stadtteil Beuel - Pützchen. Die Entfernung zur Bonner Innenstadt beträgt 10 Minuten. In unmittelbarer Nähe befindet sich die Autobahn BAB 59 und BAB 565. Dienstleister des täglichen Bedarfs befinden sich in der Nähe.
- Flughafen, Köln/Bonn, Fahrzeit: 16 min
- Bundesautobahn, A 59, Fahrzeit: 3 min
- Bundesautobahn, A 565, Fahrzeit: 10 min
- Bus, Röhfelderstr. Ost Linien 537, 608, 609, E, N4, Gehzeit: 2 min
- Hauptbahnhof, Hauptbahnhof, Fahrzeit: 20 min
Ihr Kontakt

Bartosz Olszewski
Ihr Kontakt






