Büros
ID K1209Büroimmobilie - Köln, Neustadt-Nord - K1209
Neustadt-Nord, 50670, Köln, Nordrhein-Westfalen
Provisionspflichtig: bei Anmietung 3 Netto-Monatsmieten zzgl. gesetzlicher Umsatzsteuer.** der Wert kann je nach Vertragslaufzeit variieren.
21,50 € / m²
- Fläche518 - 1.044 m²
- VerfügbarkeitSofort
- Objekt
- Ausstattung
- Lage und Verkehrsanbindung
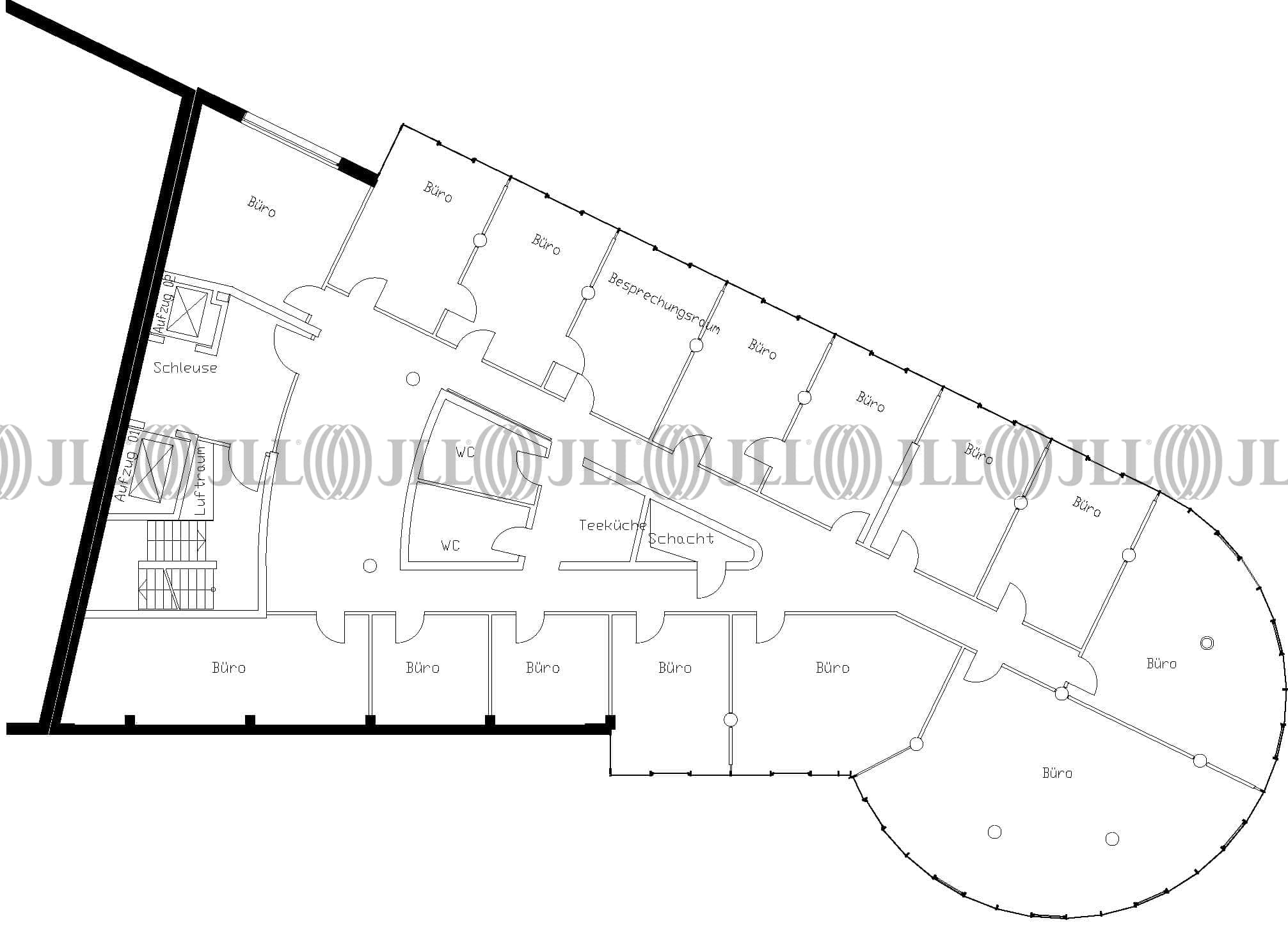
- Grundrisse
- Exposé herunterladen
- Ihr Kontakt
- Anfrage senden
Objekt
Der MediaPark ist zu einem attraktiven, innovativen, lebendigen, vielfältigen und architektonisch herausragenden Standort im Herzen von Köln geworden. Heute bietet der Standort einen bunten Branchenmix aus Medien, IT, Kultur, Bildung, Medizin, Forschung, Gastronomie, Handel und Wirtschaft. Bei dem Gebäude „Im MediaPark 2“ – früher auch als „Musictower“ bekannt – handelt es sich um ein markantes, eigenständiges Gebäude. Das Haus ist einerseits Fortsetzung und Abschluss des Cinedom-Kino, andererseits lässt es die enorme Baumasse seines Nachbarn von der Maybachstraße aus elegant beginnen. Die Übergänge zwischen den beiden angrenzenden Bauten sind fließend. Den massiven, fast komplett geschlossenen Fassadenflächen des Cinedom ist eine Lochfassade aus Tonplatten angeschlossen, die zunächst aufgebrochen, dann gebändert und schließlich im Turmbereich durch eine Glasfassade vollkommen aufgelöst wird. Hier erkennt man vor allem das Gebäude als Schichtung von Ebenen, gehalten von vertikalen Tragelementen, die in Form von über das Gebäude hinausschießenden, symbolisch endlos wirkenden Lichtsteelen künstlerisch die Konstruktionsidee bei Nacht erkennbar machen. Ein modernes Bürogebäude, das sich als Synergiehaus der verschiedensten Branchen versteht und die bereits vorhandenen Nutzungen im MediaPark sinnvoll ergänzt. Die freien Büroflächen werden dem Standard an eine moderne Büronutzung gerecht. Durch intelligente Aufteilung der Räume wird eine qualitativ hohe Arbeitsatmosphäre geschaffen.
Verfügbare Fläche
Lage und Verkehrsanbindung
Das Bürogebäude befindet sich in zentraler Lage im beliebten MediaPark in Köln. Die Adresse bietet eine erstklassige Anbindung an öffentliche Verkehrsmittel. Dank der zentralen Lage sind zahlreiche Restaurants, Cafés und Einkaufsmöglichkeiten fußläufig erreichbar. Die Umgebung ist geprägt von einer lebendigen Kultur- und Kreativszene, wodurch eine inspirierende Arbeitsatmosphäre geschaffen wird. Die Anbindung an den öffentlichen Nahverkehr ist ausgezeichnet. Der Bahnhof Hansaring befindet sich in unmittelbarer Nähe und bietet direkte Verbindungen zum Hauptbahnhof Köln sowie zu anderen wichtigen Stadtteilen. Die Verkehrsanbindung per Auto ist ebenfalls hervorragend. Die Autobahn A57 ist schnell erreichbar und ermöglicht eine schnelle Anbindung an die umliegenden Städte und Flughäfen.
- Hauptbahnhof, Hauptbahnhof, Fahrzeit: 8 min
- S-Bahn, Hansaring Linie S 6, Gehzeit: 7 min
- Straßenbahn/Tram, Christophstraße / Mediapark Linien 12, 15, 19, Gehzeit: 9 min
- Bus, Hansaring Linie 127, Gehzeit: 7 min
- Bundesautobahn, A 4, Fahrzeit: 15 min
- Bundesautobahn, A 3, Fahrzeit: 12 min
- Bundesautobahn, A 57, Fahrzeit: 4 min
- Bundesautobahn, A 1, Fahrzeit: 8 min
- Flughafen, Köln/Bonn, Fahrzeit: 17 min
Ihr Kontakt

Julius Heid
Ihr Kontakt












