Büros
ID K1089Aktualisiert
Büroimmobilie - Köln, Altstadt-Nord - K1089
Altstadt-Nord, 50668, Köln, Nordrhein-Westfalen
Provisionspflichtig: bei Anmietung 3 Netto-Monatsmieten zzgl. gesetzlicher Umsatzsteuer.** der Wert kann je nach Vertragslaufzeit variieren.
20,38 € / m²
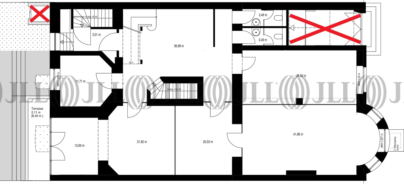
- Fläche379 m²
- VerfügbarkeitAuf Anfrage
- Objekt
- Ausstattung
- Lage und Verkehrsanbindung
- Grundrisse
- Exposé herunterladen
- Ihr Kontakt
- Anfrage senden
Objekt
Das aus dem Jahr 1897 stammende Gebäude besticht durch seinen Charme und verfügt über original erhaltene architektonische Elemente wie ein prachtvolles Treppenhaus, dekorative Stuckdecken und eindrucksvolle Eichenfenster. Die hohen Decken und großen Fenster ermöglichen eine außergewöhnliche Arbeitsatmosphäre. Die Räume zur Rheinseite verfügen über einen unverbauten Blick über den Rhein, die Räume zum Innenhof verfügen über einen Balkon mit zusätzlicher Aufenthaltsqualität.
Verfügbare Fläche
Lage und Verkehrsanbindung
Leben, wohnen, arbeiten und lernen – Mitten drin im Herzen von Köln und nah dran am Rhein. Das Kunibertsviertel erstreckt sich zwischen Rhein, Theodor-Heuss-Ring, Turiner Straße und Hauptbahnhof, also rund um die romanische Kirche Sankt Kunibert, dem Namensgeber des Quartiers. Sankt Kunibert ist die jüngste der romanischen Kirchen Kölns, aber älter als der Kölner Dom. Ein Gunstfaktor des Kunibertsviertels ist seine sehr gute Anbindung an die Verkehrsinfrastruktur. Über öffentliche Verkehrsmittel, die Rheinschifffahrt, ein engmaschiges Autobahnnetz und den Flughafen Köln/Bonn sind Ziele in Nah und Fern bequem und schnell zu erreichen. Dienstleister des täglichen Bedarfs befinden sich in der Nähe.
- Hauptbahnhof, Köln Hbf, Gehzeit: 9 min
- Straßenbahn/Tram, Ebertplatz 12, 15, 16, 18, Gehzeit: 7 min
- Bus, Ebertplatz 118, 127, 140, Gehzeit: 7 min
- Bundesautobahn, A 3, Fahrzeit: 7 min
- Bundesautobahn, A 4, Fahrzeit: 11 min
- Flughafen, Köln/Bonn, Fahrzeit: 17 min
Ihr Kontakt

Julius Heid
Ihr Kontakt














