Büros
ID K1000Provisionsfrei
Büroimmobilie - Köln, Kalk - K1000
Kalk, 51105, Köln, Nordrhein-Westfalen
11 € / m²
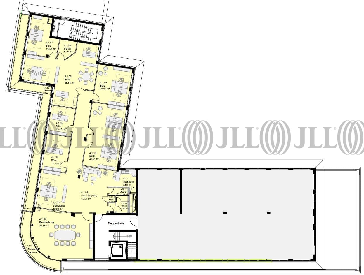
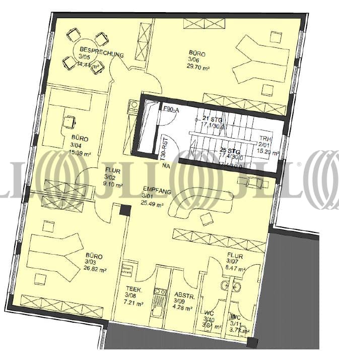
- Fläche148 - 1.354 m²
- VerfügbarkeitAuf Anfrage
- Objekt
- Ausstattung
- Lage und Verkehrsanbindung
- Grundrisse
- Exposé herunterladen
- Ihr Kontakt
- Anfrage senden
Objekt
Das moderne Bürogebäude im Hagen-Campus besticht durch seine zentrale Lage im rechtsrheinischen Köln-Kalk. Die flexibel einteilbaren Büroflächen bieten Unternehmen optimale Voraussetzungen für ein produktives Arbeitsumfeld. Hochwertige Ausstattung mit separatem Zugang, Klimatisierung und moderner technischer Infrastruktur sorgen für maximalen Komfort und Effizienz.
Zertifizierungen
Energieausweis
Für diese Liegenschaft liegt ein Bedarfsausweis vom 25.08.2019 vom Eigentümer/Vermieter vor. Der wesentliche Energieträger der Liegenschaft ist Erdgas schwer. Der Endenergiebedarf Strom beträgt 20.40 kWh/(m²*a). Der Endenergiebedarf Wärme beträgt 107.90 kWh/(m²*a).Verfügbare Fläche
Lage und Verkehrsanbindung
Das Bürogebäude liegt zentral im Hagen-Campus in Köln-Humboldt/Gremberg. Der moderne Technologiepark bietet eine ruhige und repräsentative Arbeitsumgebung mit gepflegtem Campusareal. Die direkte Anbindung an die Autobahnen A4 und A559 sowie die Nähe zum S-Bahnhof Köln-Trimbornstraße gewährleisten eine optimale Erreichbarkeit. Geschäfte des täglichen Bedarfs und gastronomische Einrichtungen befinden sich in unmittelbarer Nähe.
- Flughafen, Köln/Bonn, Fahrzeit: 11 min
- Bundesautobahn, A 559, Fahrzeit: 5 min
- Bundesautobahn, A 4, Fahrzeit: 6 min
- Bus, Gießener Str., Köln-Humboldt/Gremberg, 159, Gehzeit: 3 min
- Hauptbahnhof, Köln, Fahrzeit: 12 min
Ihr Kontakt

Michael Kusen
Ihr Kontakt




















