Büros
ID K0905Büroimmobilie - Köln, Altstadt-Nord - K0905
Altstadt-Nord, 50667, Köln, Nordrhein-Westfalen
Provisionspflichtig: bei Anmietung 3 Netto-Monatsmieten zzgl. gesetzlicher Umsatzsteuer.** der Wert kann je nach Vertragslaufzeit variieren.
15 € / m²
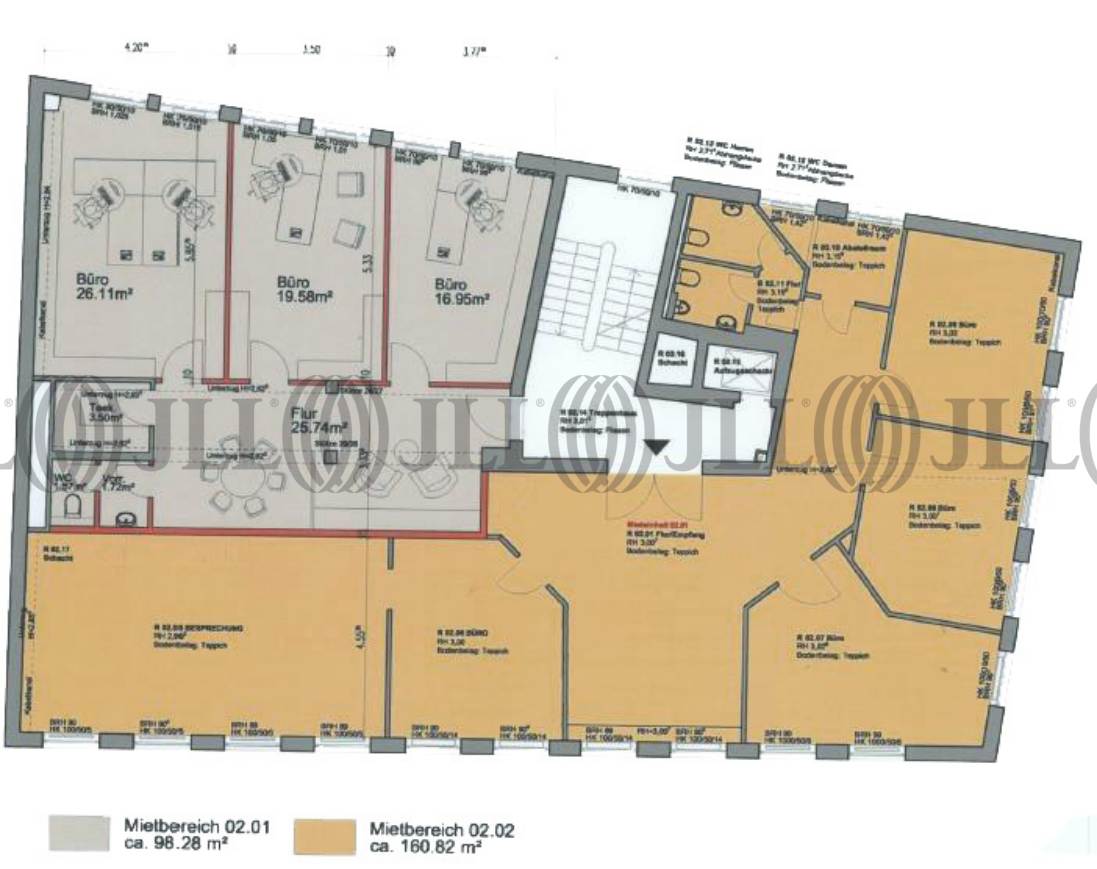
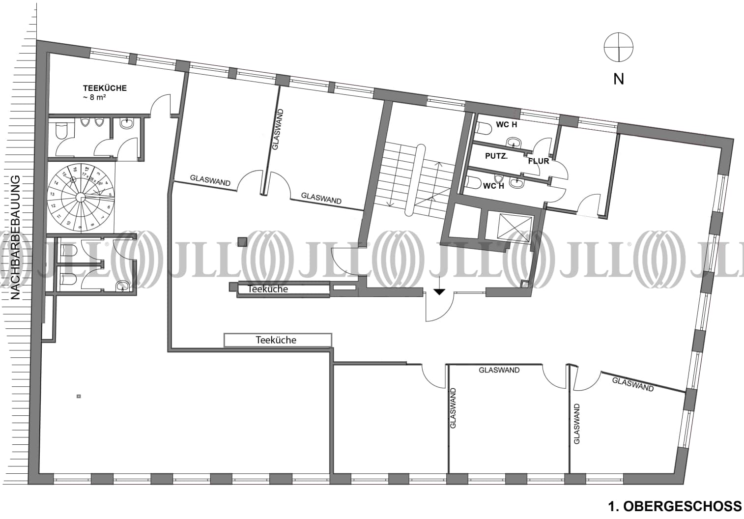
- Fläche98 - 269 m²
- VerfügbarkeitSofort
- Objekt
- Ausstattung
- Lage und Verkehrsanbindung
- Grundrisse
- Exposé herunterladen
- Ihr Kontakt
- Anfrage senden
Objekt
Gürzenichstraße 21a-c in Köln bietet eine attraktive Gewerbefläche . Diese Liegenschaft befindet sich im Herzen der Stadt und bietet eine ideale Umgebung für Unternehmen, die von der zentralen Lage und der hervorragenden Anbindung an öffentliche Verkehrsmittel profitieren möchten. Die Fläche ist flexibel nutzbar und eignet sich für verschiedene Geschäftszwecke. Moderne Ausstattung und eine ansprechende Architektur machen dieses Objekt zu einer gefragten Adresse in Kölns Geschäftsviertel.
Verfügbare Fläche
Lage und Verkehrsanbindung
Die Liegenschaft befindet sich direkt am Gürzenich Köln und somit in der Kölner City. Fußläufig sind der Heumarkt, der Neumarkt, der Dom und der Hauptbahnhof zu erreichen. Das Objektumfeld bietet zahlreiche Einkaufsmöglichkeiten, Restaurants und Hotels sowie öffentliche Einrichtungen und Banken. Über die nahgelegene Deutzer Brücke und die Nord-Süd-Fahrt, wird ein sehr guter Anschluss an den Individualverkehr und somit an alle umliegenden Autobahnen gewährleistet. Der öffentliche Nahverkehr ist über die Haltestellen Heumarkt, Apellhofplatz und Neumarkt sehr gut erreichbar. Dienstleister des täglichen Bedarfs befinden sich in der Nähe.
- Bus, Bushaltestelle Heumarkt Buslinien 106, 132, 133, Gehzeit: 5 min
- Bundesautobahn, A 57, Fahrzeit: 9 min
- Bundesautobahn, A 59, Fahrzeit: 11 min
- Bundesautobahn, A 3, Fahrzeit: 15 min
- Bundesautobahn, A 4, Fahrzeit: 10 min
- Flughafen, Köln/Bonn, Fahrzeit: 25 min
Ihr Kontakt

Julius Heid
Ihr Kontakt







