Büros
ID K0822Provisionsfrei
Büroimmobilie - Köln, Neuehrenfeld - K0822
Neuehrenfeld, 50823, Köln, Nordrhein-Westfalen
12 € / m²
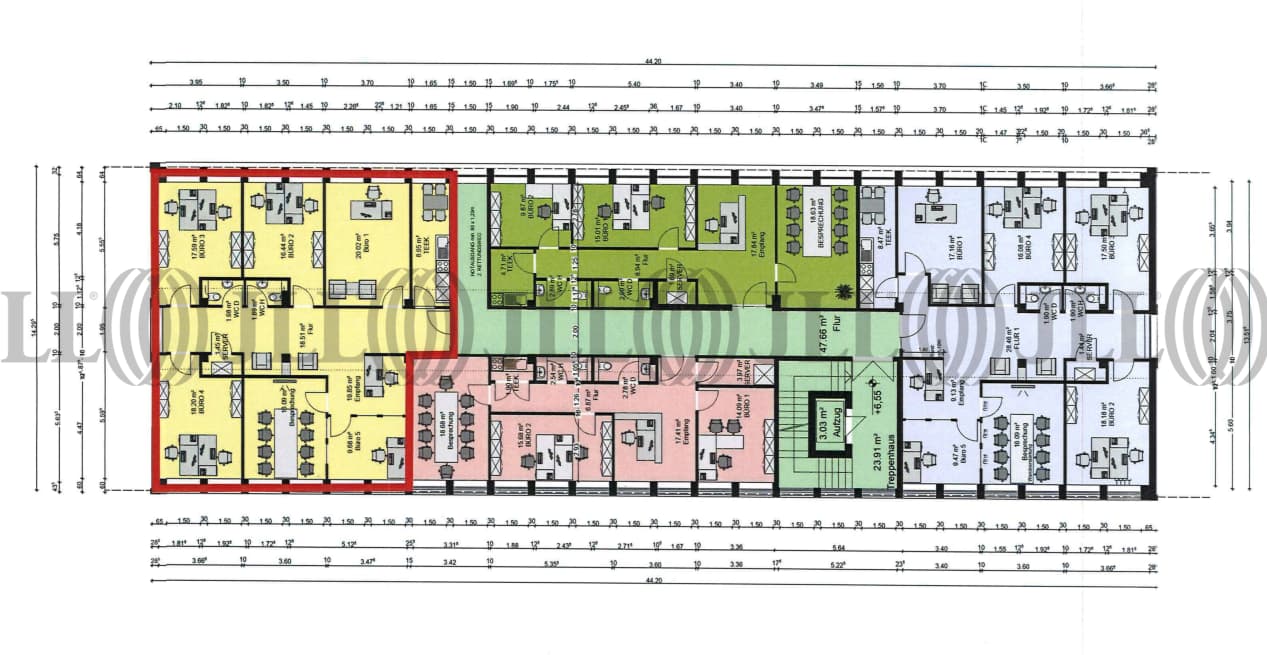
- Fläche101 - 284 m²
- VerfügbarkeitSofort
- Objekt
- Ausstattung
- Lage und Verkehrsanbindung
- Grundrisse
- Exposé herunterladen
- Ihr Kontakt
- Anfrage senden
Objekt
Das Bürogebäude wurde im Zuge einer umfangreichen Renovierung zu einer neuen und modernen Büroimmobilie, die ihren Mietern individuell gestaltbare Flächen bietet. Das Objekt verfügt über eine hauseigene Tiefgarage, die alle Büroetagen miteinander verbindet. Die unteren Mietflächen sind an ein Fitnessstudio sowie eine Digitaldruckerei vermietet.
Zertifizierungen
Energieausweis
Für diese Liegenschaft liegt ein vom 01.01.1970 vom Eigentümer/Vermieter vor. Der wesentliche Energieträger der Liegenschaft ist –. : kWh/(m²*a)Verfügbare Fläche
Lage und Verkehrsanbindung
Das Objekt liegt sehr verkehrsgünstig direkt an einem der Kölner Stadtringe und dem inneren Grüngürtel in Köln-Neuehrenfeld. Die Lage ermöglicht eine schnelle Anbindung an das Autobahnnetz und sorgt für ein schnelles Erreichen der Kölner Innenstadt.
- Hauptbahnhof, Köln, Fahrzeit: 9 min
- Bus, Schirmerstraße 142, Gehzeit: 11 min
- Bundesautobahn, A 1, Fahrzeit: 6 min
- Bundesautobahn, A 57, Fahrzeit: 2 min
- Flughafen, Köln/Bonn, Fahrzeit: 19 min
Ihr Kontakt

Julius Heid
Ihr Kontakt




