Büros
ID K0610Aktualisiert
Büroimmobilie - Köln, Neustadt-Nord - K0610
Neustadt-Nord, 50672, Köln, Nordrhein-Westfalen
Provisionspflichtig: bei Anmietung 3 Netto-Monatsmieten zzgl. gesetzlicher Umsatzsteuer.** der Wert kann je nach Vertragslaufzeit variieren.
25,52 € / m²
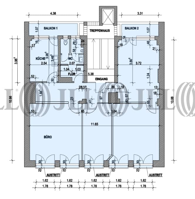
- Fläche145 m²
- VerfügbarkeitAuf Anfrage
- Objekt
- Ausstattung
- Lage und Verkehrsanbindung
- Grundrisse
- Exposé herunterladen
- Ihr Kontakt
- Anfrage senden
Objekt
In bester Ringlage von Köln befindet sich das 1953 erbaute Büro- und Geschäftshaus mit seiner markanten Außenfassade und seiner offenen und hellen Raumgestaltung. Der Eingangsbereich des Hauses ist mit hochwertigem Naturstein und einem Kronleuchter ausgestattet. Sowohl der Eingangsbereich als auch das Treppenhaus werden videoüberwacht und das Betreten der Räumlichkeiten erfolgt über einen schlüssellosen Zugang. Die bodentiefen Fenster bieten lichtdurchflutete und helle Büroräume, die für eine angenehme Arbeitsatmosphäre sorgen.
Zertifizierungen
Energieausweis
Für diese Liegenschaft liegt ein Bedarfsausweis vom 20.09.2009 vom Eigentümer/Vermieter vor. Die wesentlichen Energieträger der Liegenschaft sind Heizwerk, fossil, Strom. Endenergiebedarf: 238.30000 kWh/(m²*a)Verfügbare Fläche
Lage und Verkehrsanbindung
Der Standort liegt in Kölns schönster Bürolage am Kaiser-Wilhelm-Ring im sehr beliebten Belgischen Viertel und dem Friesenviertel. Herrliche Park- und Springbrunnenanlagen sowie hochwertige Möbelhäuser und abwechslungsreiche Gastronomien bilden den Rahmen. In unmittelbarer Nachbarschaft befindet sich das exklusive Premium-Ensemble „Gerling-Quartier“ aus Büros, Gastronomie und Wohnen. Die zentrale Lage direkt an den Kölner Ringstraßen ermöglicht die schnelle Erreichbarkeit aller wichtigen lokalen und überregionalen Verkehrsanbindungen. Eine erstklassige ÖPNV-Anbindung durch die nahe gelegenen U-Bahnstationen ist ebenfalls gewährleistet.
- Flughafen, Köln/Bonn, Fahrzeit: 16 min
- Bundesautobahn, A 57, Fahrzeit: 5 min
- Bundesautobahn, A 1, Fahrzeit: 7 min
- Bundesautobahn, A 3, Fahrzeit: 15 min
- Straßenbahn/Tram, Christophstraße / Mediapark, Linien 12, 15, Gehzeit: 1 min
- Straßenbahn/Tram, Köln West, Linien 3, 4, 5, 16, 18, Gehzeit: 11 min
- Bus, Köln West, Linie 172, Gehzeit: 11 min
Ihr Kontakt

Angela Azzarito
Ihr Kontakt









