Büros
ID K0538Büroimmobilie - Bonn, Endenich - K0538
Endenich, 53123, Bonn, Nordrhein-Westfalen
Provisionspflichtig: bei Anmietung 3 Netto-Monatsmieten zzgl. gesetzlicher Umsatzsteuer.** der Wert kann je nach Vertragslaufzeit variieren.
Kontaktieren Sie uns für den Preis
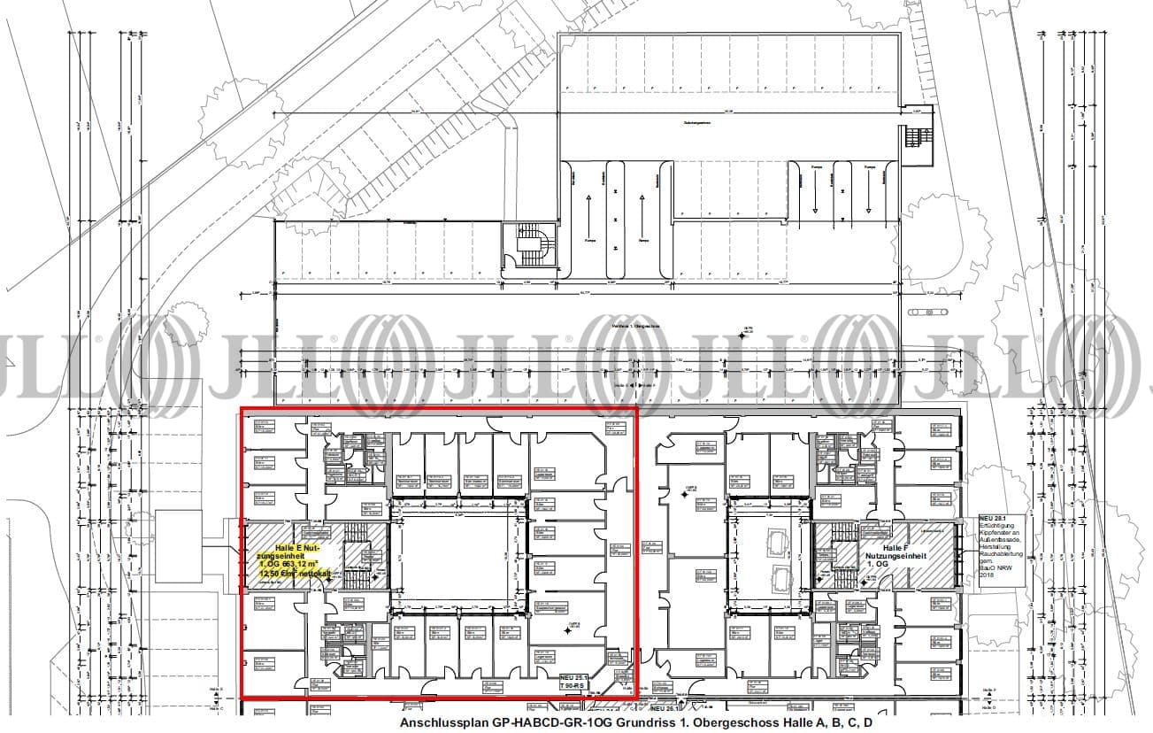
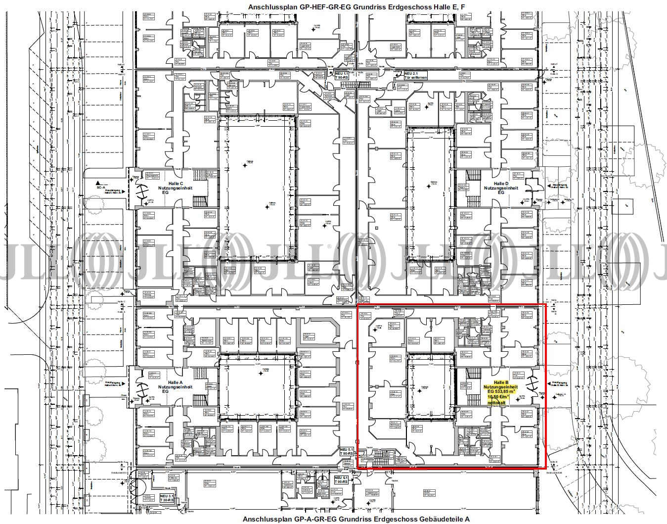
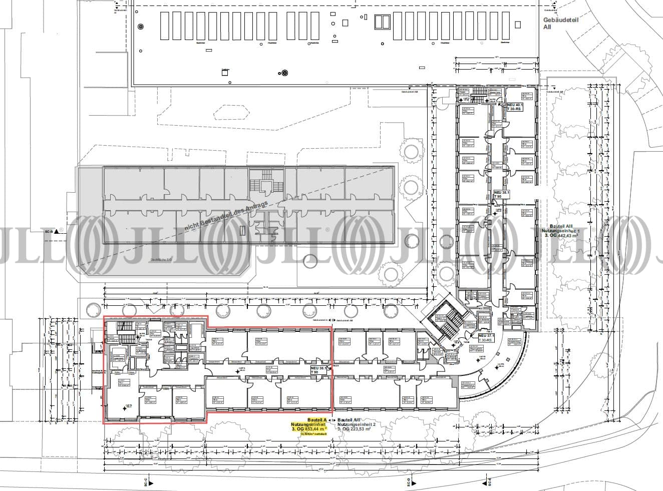
- Fläche190 - 4.619 m²
- VerfügbarkeitSofort
- Objekt
- Ausstattung
- Lage und Verkehrsanbindung
- Grundrisse
- Exposé herunterladen
- Ihr Kontakt
- Anfrage senden
Objekt
Das Gebäude liegt direkt zur Rochusstraße und garantiert damit beste Sichtbarkeit. Durch die Revitalisierung im Jahr 2021 eröffnet sich Im Inneren ein modernes Flächenkonzept mit lichtdurchfluteten Büro- und Aufenthaltsflächen. Der beste Ausblick ist hier garantiert. Die Büroflächen in den Kreuzer Höfen bieten auf Wunsch großzügige Co-Working-Spaces für Teamarbeit und gleichzeitig ruhige Rückzugsorte.
Verfügbare Fläche
Lage und Verkehrsanbindung
Das Objekt befindet sich in Bonn im Stadtteil Duisdorf in einem Geschäfts- und Wohnviertel. Die Kreuzer Höfe überzeugen durch eine hervorragende Anbindung an die Innenstadt und die A 565. Es verkehren acht Buslinien sowie eine S-Bahnlinie an Haltestellen in der unmittelbaren Umgebung. Auch das Umfeld bietet Naherholungsqualität. Das direkt angrenzende Messdorfer Feld lädt zu Spaziergängen ein.
- Hauptbahnhof, Hauptbahnhof, Fahrzeit: 12 min
- Bus, Häuschensweg Linien 3,4,139, Gehzeit: 10 min
- Bundesautobahn, A 59, Fahrzeit: 11 min
- Bundesautobahn, A 555, Fahrzeit: 8 min
- Bundesautobahn, A 562, Fahrzeit: 12 min
- Flughafen, Köln/Bonn, Fahrzeit: 17 min
Ihr Kontakt

Bartosz Olszewski
Ihr Kontakt



