Büros
ID K0520Aktualisiert
Büroimmobilie - Köln, Neustadt-Nord - K0520
Neustadt-Nord, 50672, Köln, Nordrhein-Westfalen
Provisionspflichtig: bei Anmietung 3 Netto-Monatsmieten zzgl. gesetzlicher Umsatzsteuer.** der Wert kann je nach Vertragslaufzeit variieren.
30 € / m²
- Fläche755 - 5.197 m²
- VerfügbarkeitSofort
- Objekt
- Ausstattung
- Lage und Verkehrsanbindung
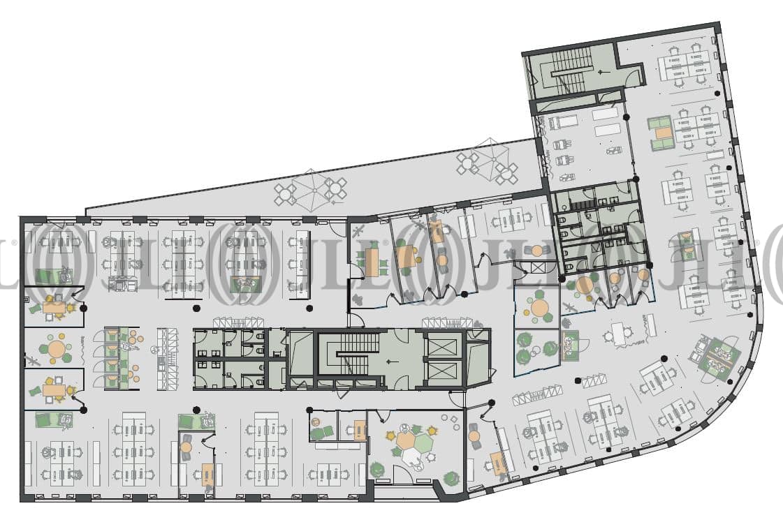
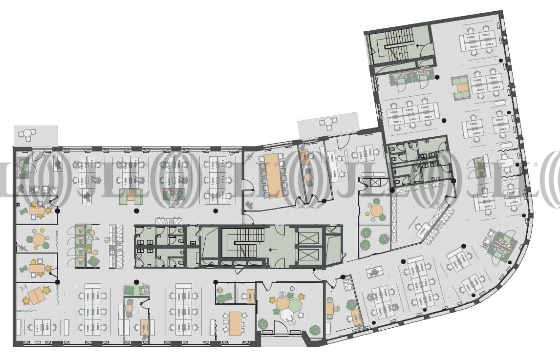
- Grundrisse
- Exposé herunterladen
- Ihr Kontakt
- Anfrage senden
Objekt
Der 2019 fertig gestellte Neubau von dem Kölner Architekturbüro caspar zeichnet sich durch eine klare Architektursprache aus. Die Erschließung zum Gebäude erfolgt über einen repräsentativen Eingang vom Friesenplatz aus. Die hochwertige Ausstattung sieht unter anderem Duschen für sportliche Mieter, sowie Parkettböden in allen Bürobereichen vor. Die Etagen 2.-6. verfügen über Balkone bzw. Terrassen. Das Erdgeschoss wird als Gastronomiefläche durch den Mieter Peter Pane genutzt. Das Angebot wird durch eine objekteigene Tiefgarage abgerundet, die über Elektroanschlüsse für E-Autos, sowie Stellplätze für E-Bikes verfügt.
Zertifizierungen
Energieausweis
DGNB: GoldFür diese Liegenschaft liegt ein Bedarfsausweis vom 18.03.2021 vom Eigentümer/Vermieter vor. Die wesentlichen Energieträger der Liegenschaft sind Fernwärme, Nahwärme, Strom. Der Endenergiebedarf Strom beträgt 40 kWh/(m²*a). Der Endenergiebedarf Wärme beträgt 99 kWh/(m²*a).
Verfügbare Fläche
Lage und Verkehrsanbindung
Das Objekt liegt in der Kölner City direkt am Friesenplatz. Die zentrale Lage an den Kölner Ringen ermöglicht ein schnelles und bequemes Erreichen aller wichtigen lokalen und überregionalen Verkehrsanbindungen. Der Standort liegt zwischen dem zum Wohnen und Arbeiten sehr beliebten Belgischen Viertel und dem Friesenviertel mit seinem großen gastronomischen Angebot. Eine Vielfalt an Geschäften, Restaurants, Cafés und Hotels rund um das Objekt lassen keine Wünsche offen. Dienstleister des täglichen Bedarfs befinden sich in der Nähe.
- Hauptbahnhof, Köln Hbf, Fahrzeit: 8 min
- Straßenbahn/Tram, Friesenplatz 3, 4, 5, 12, 15, 19, Gehzeit: 1 min
- Bus, Friesenplatz 172, Gehzeit: 1 min
- Bundesautobahn, A 1, Fahrzeit: 9 min
- Bundesautobahn, A 57, Fahrzeit: 5 min
- Flughafen, Köln/Bonn, Fahrzeit: 17 min
Ihr Kontakt

Alexandra Zimmermann
Ihr Kontakt















