Büros
ID K0518Provisionsfrei
Büroimmobilie - Köln, Altstadt-Nord - K0518
Altstadt-Nord, 50667, Köln, Nordrhein-Westfalen
21 € - 22 € / m²
- Fläche880 - 2.310 m²
- VerfügbarkeitSofort
- Objekt
- Ausstattung
- Lage und Verkehrsanbindung
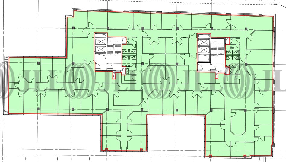
- Grundrisse
- Exposé herunterladen
- Ihr Kontakt
- Anfrage senden
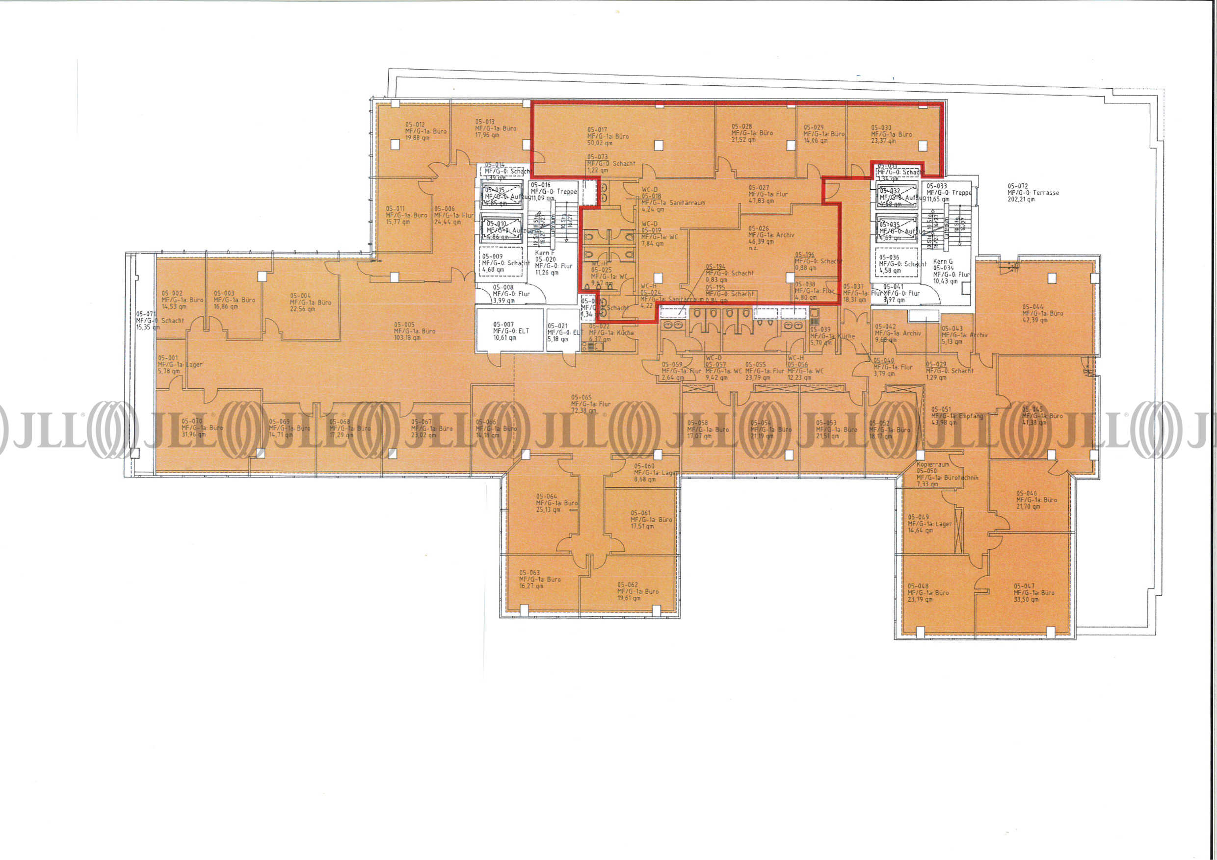
Objekt
Die Neumarkt Galerie ist ein etabliertes Geschäftsgebäude im Herzen von Köln mit einer Gesamtfläche von ca. 16.500 Quadratmetern. Das Objekt beherbergt eine Vielzahl von Geschäften, Gastronomiebetrieben und Dienstleistern und profitiert von seiner zentralen Innenstadtlage.
Zur Vermietung stehen moderne Büroflächen im 4. und 5. Obergeschoss. Diese Etagen befinden sich oberhalb des Geschäftsbereichs und bieten eine ruhige Arbeitsatmosphäre. Die Räume sind mit bodentiefen Fenstern ausgestattet, die für optimale Lichtverhältnisse sorgen. Flexible Raumaufteilungen ermöglichen individuelle Gestaltungsmöglichkeiten, während moderne Glastrennwände für eine zeitgemäße Optik und funktionale Abgrenzung sorgen.
Ein besonderes Merkmal ist die Dachterrasse mit Blick über Köln, einschließlich Sicht auf den Dom. Diese Fläche eignet sich für Pausen, Besprechungen oder Veranstaltungen.
Zur Vermietung stehen moderne Büroflächen im 4. und 5. Obergeschoss. Diese Etagen befinden sich oberhalb des Geschäftsbereichs und bieten eine ruhige Arbeitsatmosphäre. Die Räume sind mit bodentiefen Fenstern ausgestattet, die für optimale Lichtverhältnisse sorgen. Flexible Raumaufteilungen ermöglichen individuelle Gestaltungsmöglichkeiten, während moderne Glastrennwände für eine zeitgemäße Optik und funktionale Abgrenzung sorgen.
Ein besonderes Merkmal ist die Dachterrasse mit Blick über Köln, einschließlich Sicht auf den Dom. Diese Fläche eignet sich für Pausen, Besprechungen oder Veranstaltungen.
Zertifizierungen
Energieausweis
Für diese Liegenschaft liegt ein Bedarfsausweis vom 20.07.2022 vom Eigentümer/Vermieter vor. Die wesentlichen Energieträger der Liegenschaft sind KWK, Strom. Endenergiebedarf: 140,8 kWh/(m²*a)Verfügbare Fläche
Lage und Verkehrsanbindung
Der Neumarkt, zentral in der Kölner Innenstadt gelegen, ist der größte Platz der Rheinmetropole und blickt auf eine nahezu 1000-jährige Geschichte zurück. Ursprünglich im 11. Jahrhundert als Marktplatz gegründet, diente er über die Jahrhunderte abwechselnd als Vieh-, Exerzier- und Paradeplatz sowie als Theaterbühne. Heute hat sich seine Bedeutung zu einem modernen Verkehrsknotenpunkt und lebendigen Stadtzentrum gewandelt. Verschiedene Buslinien sowie Straßen- und U-Bahnen durchqueren den historischen Standort und machen ihn zu einem zentralen Verkehrsknotenpunkt. Besondere Standortvorteile ergeben sich durch die zentrale Lage sowie die hohen Passantenströme aus den erstklassigen Einzelhandelslagen Schildergasse, Mittelstraße und Breite Straße. Die Neumarkt Galerie wurde 2013 umfassend renoviert. Die modernen Büroflächen befinden sich im zur Richmodisstraße/Am Alten Posthof ausgerichteten Gebäudeteil. Der Neumarkt vereint heute erfolgreich historisches Erbe mit moderner Urbanität als belebtes Geschäfts- und Wohnviertel sowie wichtiger Veranstaltungsort.
- Hauptbahnhof, Köln, Fahrzeit: 5 min
- Straßenbahn/Tram, Neumarkt 1, 3, 4, 7, 9, 14, 16,18, Gehzeit: 2 min
- Bus, Neumarkt 136, 146, Gehzeit: 2 min
- Bundesautobahn, A 57, Fahrzeit: 8 min
- Bundesautobahn, A 1, Fahrzeit: 14 min
- Flughafen, Köln/Bonn, Fahrzeit: 16 min
Ihr Kontakt

Martin Vass
Ihr Kontakt














