Büros
ID K0455Büroimmobilie - Köln, Raderberg - K0455
Raderberg, 50968, Köln, Nordrhein-Westfalen
Provisionspflichtig: bei Anmietung 3 Netto-Monatsmieten zzgl. gesetzlicher Umsatzsteuer.** der Wert kann je nach Vertragslaufzeit variieren.
25 € / m²
- Fläche260 - 1.573 m²
- VerfügbarkeitAuf Anfrage
- Objekt
- Ausstattung
- Lage und Verkehrsanbindung
- Grundrisse
- Exposé herunterladen
- Ihr Kontakt
- Anfrage senden
Objekt
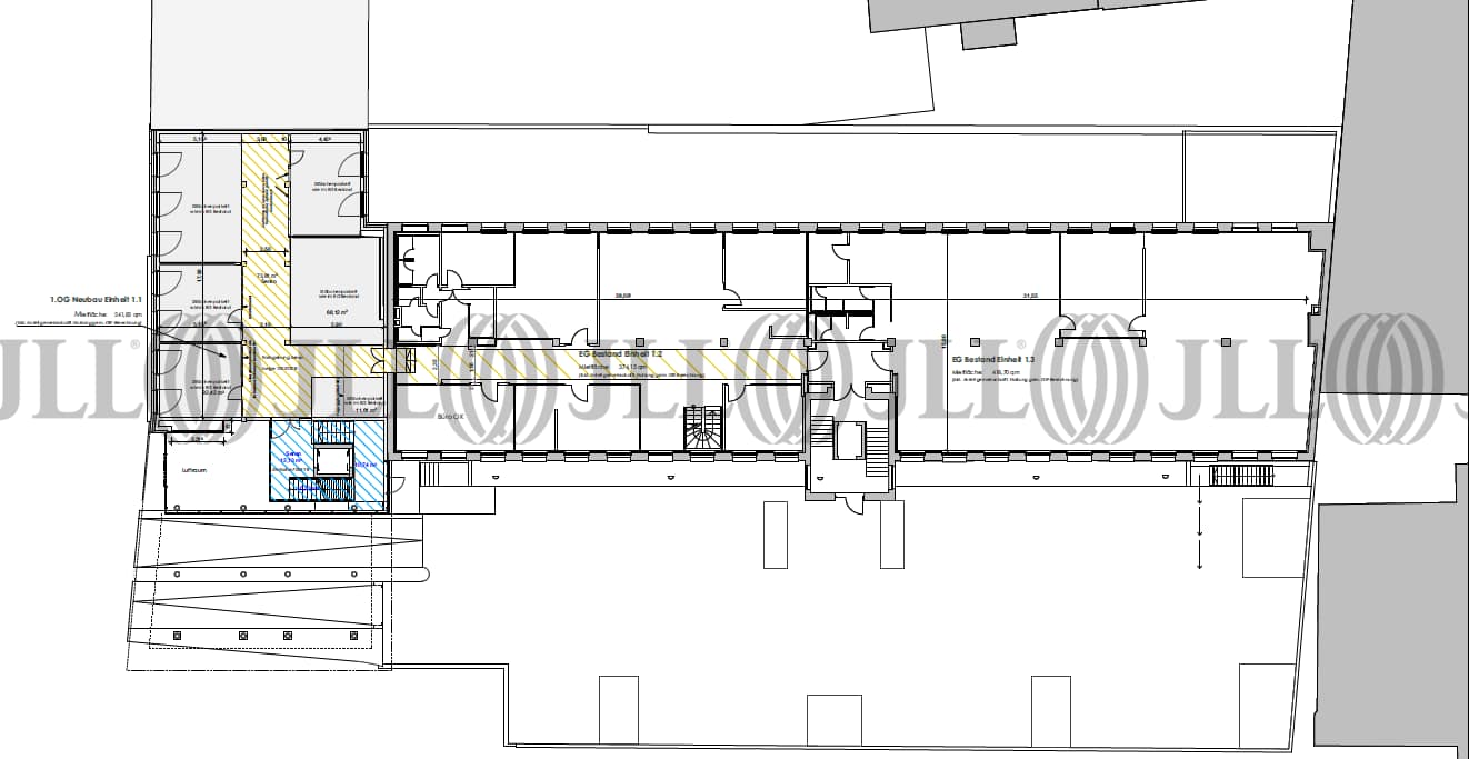
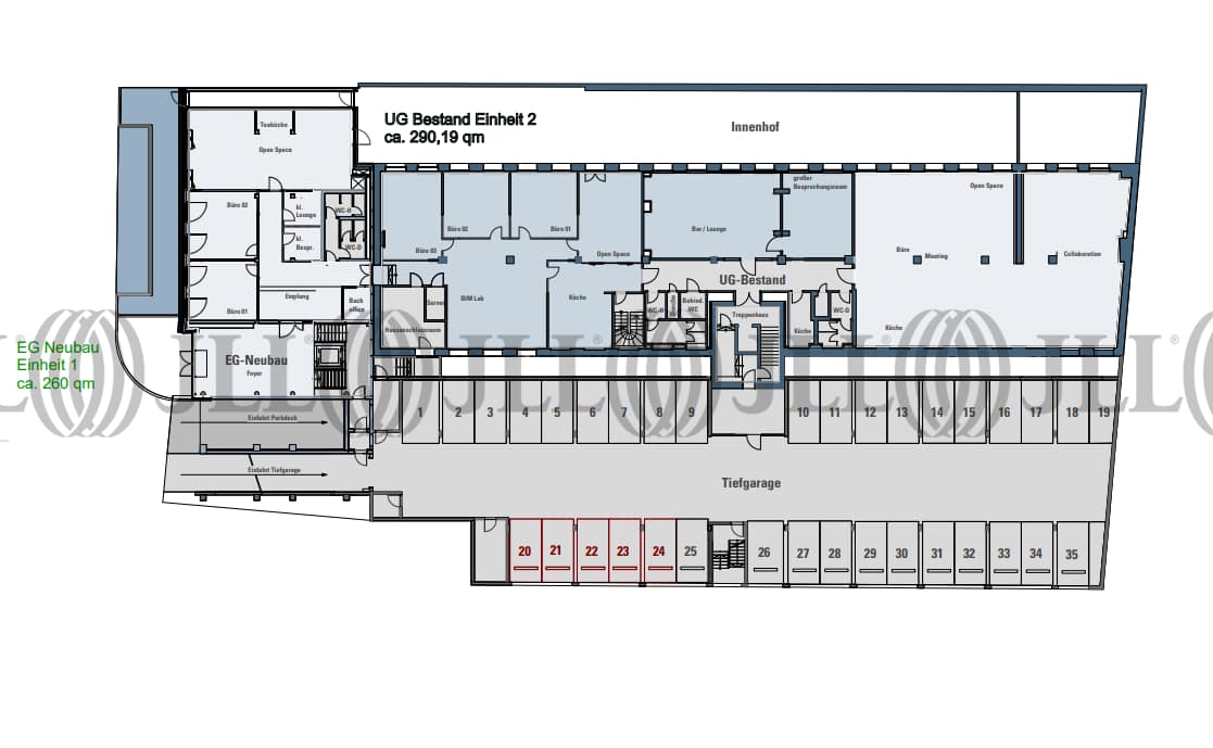
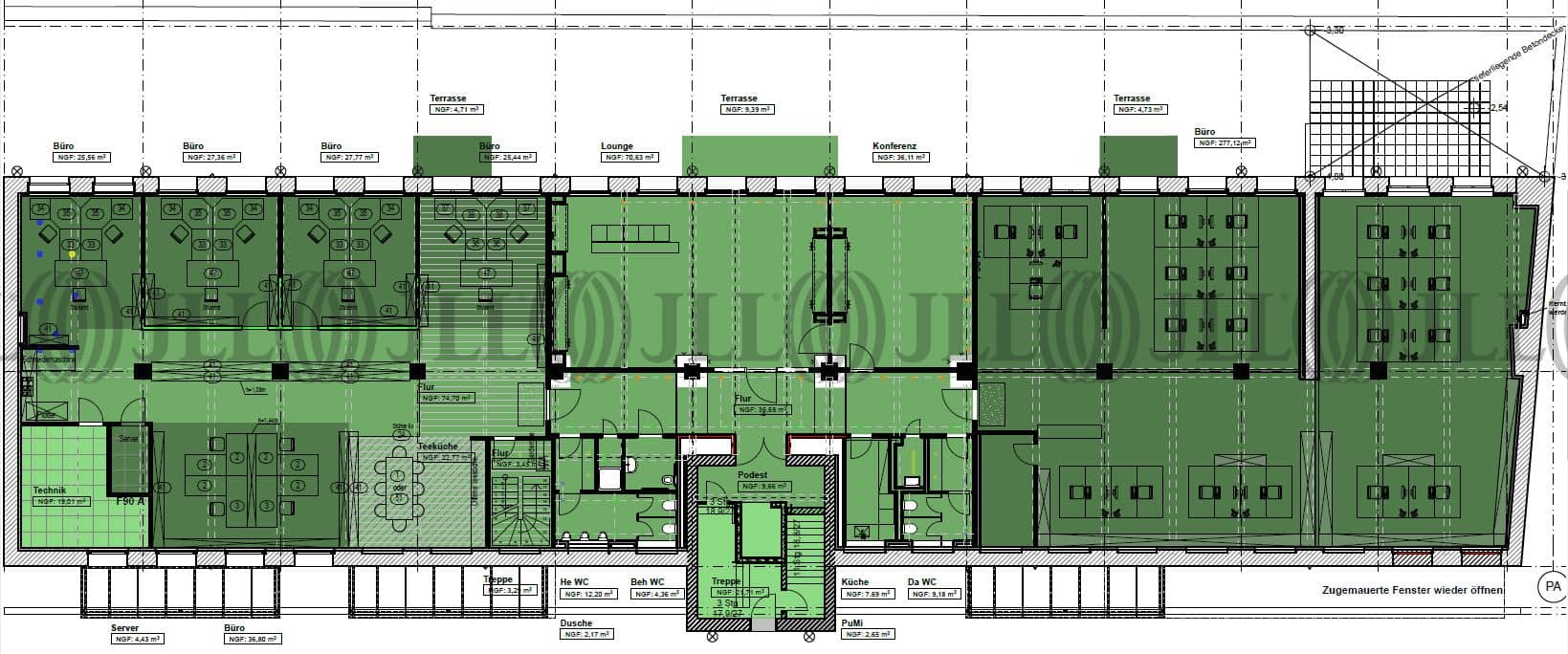
Die Loft-artige Bestandsimmobilie, die bereits 2013 umfangreich saniert und mit hohen Decken versehen worden, ist nahtlos mit einem angrenzenden Neubau erweitert worden, wodurch ein umfangreiches Areal mit modernen Büroflächen entstanden ist. Der im Jahr 2021 fertiggestellte Neubau kommt mit Kühldecken und entspricht allen Anforderungen eines modernen Bürogebäudes, inkl. Photovoltaikanlagen. Im Souterrain der Bestandsimmobilie liegt ein Lounge- und Konferenzbereich, der an einer Terrasse angrenzt. Dieser Bereich steht zur zusätzlichen Anmietung für die eigene Nutzung nach Absprache zur Verfügung. Zusätzlich dazu bietet der Neubau eine Dachterrasse, die ebenfalls in Absprache genutzt werden kann.
Zertifizierungen
Energieausweis
Für diese Liegenschaft liegt ein Bedarfsausweis vom 16.10.2023 vom Eigentümer/Vermieter vor. Die wesentlichen Energieträger der Liegenschaft sind Fernwärme, gasförmige Biomasse, Nahwärme, Strom. Endenergiebedarf: 89,1 kWh/(m²*a)Verfügbare Fläche
Lage und Verkehrsanbindung
Die Liegenschaft befindet sich in unmittelbarer Nähe der beliebten Kölner Südstadt und des Stadtteils Bayenthal, was ein attraktives Wohnumfeld und eine lebhafte Nachbarschaft bietet. Die Anbindung an die Kölner Innenstadt sowie die umliegenden Autobahnen ist hervorragend und ermöglicht eine bequeme und schnelle Erreichbarkeit. In der unmittelbaren Umgebung, insbesondere entlang der Bonner Straße, finden Sie eine Vielzahl von Geschäften des täglichen Bedarfs, die Ihren Einkaufsbedürfnissen gerecht werden. Zudem erwarten Sie dort eine breite Auswahl an Restaurants, Cafés und gastronomischen Einrichtungen, um Ihren Gaumen zu verwöhnen. Dienstleister des täglichen Bedarfs, wie beispielsweise Apotheken oder Supermärkte, sind ebenso in unmittelbarer Nähe zu finden, um Ihren Alltag bequem zu gestalten.
- Flughafen, Köln/Bonn, Fahrzeit: 17 min
- Bundesautobahn, A 1, Fahrzeit: 12 min
- Bundesautobahn, A 4, Fahrzeit: 6 min
- Bundesautobahn, A 555, Fahrzeit: 6 min
- Bundesautobahn, A 59, Fahrzeit: 12 min
- Bus, Bayenthal Marktstraße 132, 133, Gehzeit: 2 min
- Straßenbahn/Tram, Bonner Wall, Linie 17, Gehzeit: 8 min
Ihr Kontakt

Angela Azzarito
Ihr Kontakt
















